New Homes » Kansai » Hyogo Prefecture » Kobe Suma-ku


Hyogo Prefecture, Kobe Suma-ku,
Subway Seishin ・ Yamanote Line "Myohoji" a 10-minute multi-Iminami walk 1 minute bus
Site about more than 43 square meters. All four compartment. Two all houses Garage. Parks and convenience stores located in the very near. Now if various color select Allowed (water around such as outer wall and kitchen, Flooring, etc.). Architecture at the color of your choice
☆ (A No. land): corner lot par yang per. (B ・ D No. place): East and West both sides road. (C No. land): excavation Garage 2 cars ☆ Detailed plan view of each item of land. Please selectable facilities and outer wall, etc. with your favorite color (due date specified Yes)! ☆ Please feel free to contact us for purchasing modified or mortgage, etc.!
Features pickup
Pre-ground survey / See the mountain / Yang per good / A quiet residential area / Around traffic fewer / Or more before road 6m / Urban neighborhood / Mu front building / Good view / City gas / Located on a hill / Maintained sidewalk / Building plan example there
Event information
Local guide Board (Please be sure to ask in advance) schedule / Now open
Price
17,560,000 yen ~ 24,030,000 yen
Building coverage, floor area ratio
Building coverage 40%, Floor-area ratio 80%
Sales compartment
4 compartments
Total number of compartments
4 compartments
Land area
145.18 sq m ~ 154.05 sq m (43.91 tsubo ~ 46.59 tsubo) (measured)
Driveway burden-road
East on public roads About 15m, West road about 6m. Asphaltic pavement
Land situation
Vacant lot
Construction completion time
October 2013
Address
Hyogo Prefecture, Kobe Suma-ku, Tainohataminami cho
Traffic
Subway Seishin ・ Yamanote Line "Myohoji" a 10-minute multi-Iminami walk 1 minute bus
Related links
[Related Sites of this company]
Contact
(Yes) Estate Myodani TEL: 0800-805-3978 [Toll free] mobile phone ・ Also available from PHS
Caller ID is not notified
Please contact the "saw SUUMO (Sumo)"
If it does not lead, If the real estate company
Land of the right form
Ownership
Building condition
With
Time delivery
Consultation
Land category
Residential land
Use district
One low-rise
Overview and notices
Facilities: Kansai Electric Power Co., Public Water Supply, This sewage, Osaka Gas Co., Ltd.
Company profile
<Employer ・ Marketing alliance (mediated)> Governor of Hyogo Prefecture (2) No. 010968 (with) Estate Myodani Yubinbango654-0152 Kobe Suma-ku, Higashiochiai 2-17-1 Sun City Suma Myodani


Construction completion expected view
Construction completion expected view

Local land photo

Local land photo. East side Local (10 May 2013) Shooting
East side Local (10 May 2013) Shooting

Local land photo. West Local (10 May 2013) Shooting
West Local (10 May 2013) Shooting

Local photos, including front road

Local photos, including front road. Contact surface on the east side road about 15m Local (10 May 2013) Shooting Bus stop side blindfold planned installation
Contact surface on the east side road about 15m Local (10 May 2013) Shooting Bus stop side blindfold planned installation

Local photos, including front road. Contact surface on the west side road about 8m Local (10 May 2013) Shooting
Contact surface on the west side road about 8m Local (10 May 2013) Shooting

Other

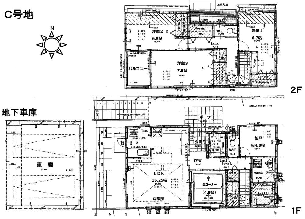
Other. C No. land Plan view 4LDK + storeroom Excavation garage with two LDK16.25 Pledge, Storage is also rich southwest-facing balcony
C No. land Plan view 4LDK + storeroom Excavation garage with two LDK16.25 Pledge, Storage is also rich southwest-facing balcony

Other. C No. land Elevation
C No. land Elevation

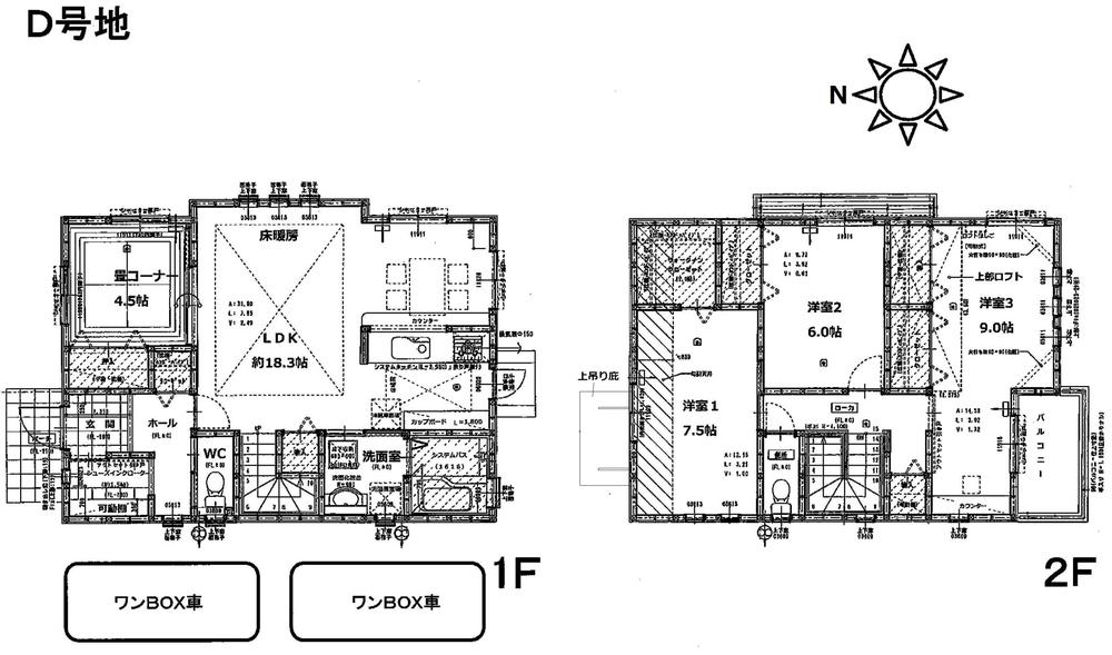
Other. D No. land Plan view
D No. land Plan view

Other. D No. land Elevation
D No. land Elevation



Location