New Homes » Kansai » Hyogo Prefecture » Kobe Tarumi-ku
 
| | Kobe-shi, Hyogo Tarumi-ku, 兵庫県神戸市垂水区 |
| JR Sanyo Line "Tarumi" walk 11 minutes JR山陽本線「垂水」歩11分 |
| ☆ JR Tarumi Station ・ Sanyo Higashi-Tarumi Station land of each 10-minute walk Newly built single-family two-story condominium start ☆ Among the quiet and living good streets while walking distance to the station, South-facing bright and comfortable housing. Luxurious mansion also enhance specification equipment ☆JR垂水駅・山陽東垂水駅各徒歩10分の地 新築戸建2階建て分譲開始☆駅まで徒歩圏ながら閑静で暮らし良い街並みの中、南向きの明るく快適な住宅。設備も充実仕様の贅沢な邸 |
| 2-story, Facing south, LDK18 tatami mats or more, Parking two Allowed, Face-to-face kitchen, Flat terrain, Year Available, 2 along the line more accessible, System kitchen, Bathroom Dryer, Yang per good, All room storage, Siemens south road, A quiet residential area, Around traffic fewerese-style room, Shaping land, Washbasin with shower, Barrier-free, Toilet 2 places, Bathroom 1 tsubo or more, South balcony, Warm water washing toilet seat, loft, Underfloor Storage, The window in the bathroom, TV monitor interphone, Ventilation good, Walk-in closet, All rooms are two-sided lighting 2階建、南向き、LDK18畳以上、駐車2台可、対面式キッチン、平坦地、年内入居可、2沿線以上利用可、システムキッチン、浴室乾燥機、陽当り良好、全居室収納、南側道路面す、閑静な住宅地、周辺交通量少なめ、和室、整形地、シャワー付洗面台、バリアフリー、トイレ2ヶ所、浴室1坪以上、南面バルコニー、温水洗浄便座、ロフト、床下収納、浴室に窓、TVモニタ付インターホン、通風良好、ウォークインクロゼット、全室2面採光 |
Features pickup 特徴ピックアップ | | Year Available / Parking two Allowed / 2 along the line more accessible / LDK18 tatami mats or more / Facing south / System kitchen / Bathroom Dryer / Yang per good / All room storage / Siemens south road / A quiet residential area / Around traffic fewer / Japanese-style room / Shaping land / Washbasin with shower / Face-to-face kitchen / Barrier-free / Toilet 2 places / Bathroom 1 tsubo or more / 2-story / South balcony / Warm water washing toilet seat / loft / Underfloor Storage / The window in the bathroom / TV monitor interphone / Ventilation good / Walk-in closet / All rooms are two-sided lighting / Flat terrain 年内入居可 /駐車2台可 /2沿線以上利用可 /LDK18畳以上 /南向き /システムキッチン /浴室乾燥機 /陽当り良好 /全居室収納 /南側道路面す /閑静な住宅地 /周辺交通量少なめ /和室 /整形地 /シャワー付洗面台 /対面式キッチン /バリアフリー /トイレ2ヶ所 /浴室1坪以上 /2階建 /南面バルコニー /温水洗浄便座 /ロフト /床下収納 /浴室に窓 /TVモニタ付インターホン /通風良好 /ウォークインクロゼット /全室2面採光 /平坦地 | Price 価格 | | 43,800,000 yen 4380万円 | Floor plan 間取り | | 4LDK + S (storeroom) 4LDK+S(納戸) | Units sold 販売戸数 | | 1 units 1戸 | Land area 土地面積 | | 162.18 sq m (49.05 tsubo) (Registration) 162.18m2(49.05坪)(登記) | Building area 建物面積 | | 105.29 sq m (31.85 tsubo) (measured) 105.29m2(31.85坪)(実測) | Driveway burden-road 私道負担・道路 | | Nothing, South 3.5m width 無、南3.5m幅 | Completion date 完成時期(築年月) | | December 2013 2013年12月 | Address 住所 | | Hyogo Prefecture, Kobe Tarumi-ku Yamate 3 兵庫県神戸市垂水区山手3 | Traffic 交通 | | JR Sanyo Line "Tarumi" walk 11 minutes Sanyo Electric Railway Main Line "Higashitarumi" walk 10 minutes JR山陽本線「垂水」歩11分 山陽電鉄本線「東垂水」歩10分
| Related links 関連リンク | | [Related Sites of this company] 【この会社の関連サイト】 | Person in charge 担当者より | | Person in charge of real-estate and building Tasaki Tatsuya Age: 30s 担当者宅建田崎 竜也年齢:30代 | Contact お問い合せ先 | | TEL: 0800-603-8561 [Toll free] mobile phone ・ Also available from PHS Caller ID is not notified Please contact the "saw SUUMO (Sumo)" If it does not lead, If the real estate company TEL:0800-603-8561【通話料無料】携帯電話・PHSからもご利用いただけます 発信者番号は通知されません 「SUUMO(スーモ)を見た」と問い合わせください つながらない方、不動産会社の方は
| Building coverage, floor area ratio 建ぺい率・容積率 | | 60% ・ 150% 60%・150% | Time residents 入居時期 | | Consultation 相談 | Land of the right form 土地の権利形態 | | Ownership 所有権 | Structure and method of construction 構造・工法 | | Wooden 2-story 木造2階建 | Use district 用途地域 | | One middle and high 1種中高 | Overview and notices その他概要・特記事項 | | Contact: Tasaki Tatsuya, Facilities: Public Water Supply, This sewage, Building confirmation number: No. J12-20813, Parking: car space 担当者:田崎 竜也、設備:公営水道、本下水、建築確認番号:第J12-20813号、駐車場:カースペース | Company profile 会社概要 | | <Mediation> Governor of Hyogo Prefecture (2) Article 011 259 No. Act Kobe Co. Yubinbango655-0027 Kobe City, Hyogo Prefecture Tarumi-ku, Kanda-cho, 2-40 Isobe building first floor <仲介>兵庫県知事(2)第011259号アクト神戸(株)〒655-0027 兵庫県神戸市垂水区神田町2-40 磯部ビル1階 |
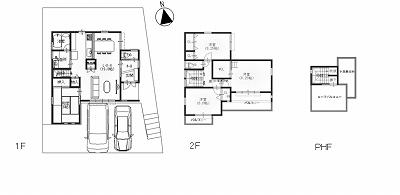
Floor plan間取り図  43,800,000 yen, 4LDK + S (storeroom), Land area 162.18 sq m , Building area 105.29 sq m 2 storey 4SLDK south-facing with many housed in a good location per yang, LDK has become a spacious floor plan with 19 Pledge.
4380万円、4LDK+S(納戸)、土地面積162.18m2、建物面積105.29m2 2階建ての4SLDK南向きで陽当たり良好な立地で収納も多く、LDKは19帖とゆったりとした間取りになっています。
 Local appearance photo
現地外観写真
 Living
リビング
 Kitchen
キッチン
Shopping centreショッピングセンター  Levante Tarumi 2 to Ichibankan 821m
レバンテ垂水2番館まで821m
 Other introspection
その他内観
Primary school小学校  901m to Kobe Municipal Takamaru Elementary School
神戸市立高丸小学校まで901m
 Same specifications photos (Other introspection)
同仕様写真(その他内観)
Government office役所  668m until Kobe Tarumi Ward
神戸市垂水区役所まで668m
Park公園  1005m to Tarumi Sports Garden
垂水スポーツガーデンまで1005m
Location
|