New Homes » Kansai » Hyogo Prefecture » Kobe Tarumi-ku


Kobe-shi, Hyogo Tarumi-ku,
JR Sanyo Line "Tarumi" walk 11 minutes
Facing south! Yang per good! Walk from JR "Tarumi Station" 11 minutes! ! There are housed in the whole room, loft, Walk-in closet so you can use the room spacious also available
■ The proximity of the station walk 11 minutes every day of life more convenient ■ Also easy access to the 2 wayside available and the city center ■ Bright house wrapped in plenty of sunlight ■ Your family spacious living room that everyone is comfortable and welcoming ■ Happy walk-in closet in the family of hobbies
Features pickup
Parking two Allowed / 2 along the line more accessible / LDK18 tatami mats or more / System kitchen / Yang per good / All room storage / Face-to-face kitchen / 2-story / South balcony / Walk-in closet / All room 6 tatami mats or more
Price
43,800,000 yen
Floor plan
4LDK
Units sold
1 units
Land area
162.18 sq m (registration)
Building area
105.29 sq m (registration)
Driveway burden-road
Nothing
Completion date
November 2013
Address
Hyogo Prefecture, Kobe Tarumi-ku Yamate 3
Traffic
JR Sanyo Line "Tarumi" walk 11 minutes
Sanyo Electric Railway Main Line "San'yotarumi" walk 11 minutes
Related links
[Related Sites of this company]
Person in charge
Person in charge of Jincheng Faith Age: 20 Daigyokai experience: Nice to meet you 5 years! It is Jincheng of the act. My motto is the position of our customers, Looking property becomes the eyes! is. With any matters, Please consult. We will also let you cooperate in our best in everything.
Contact
TEL: 0800-601-4985 [Toll free] mobile phone ・ Also available from PHS
Caller ID is not notified
Please contact the "saw SUUMO (Sumo)"
If it does not lead, If the real estate company
Building coverage, floor area ratio
60% ・ 150%
Time residents
Consultation
Land of the right form
Ownership
Structure and method of construction
Wooden 2-story
Use district
One middle and high
Overview and notices
Contact: Jincheng Faith, Facilities: Public Water Supply, This sewage, Parking: car space
Company profile
<Mediation> Governor of Hyogo Prefecture (4) No. 010337 (Ltd.) Act west branch Yubinbango655-0039 Kobe Tarumi Ward Tarumi Kasumigaoka 1-2-2


Local appearance photo

Local appearance photo. South-facing balcony is to brighten up your family
South-facing balcony is to brighten up your family

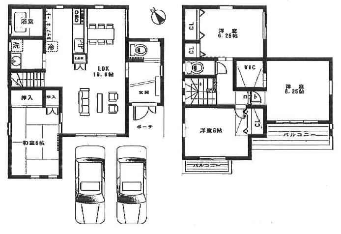
Floor plan

Floor plan. 43,800,000 yen, 4LDK, Land area 162.18 sq m , Building area 105.29 sq m parking two possible this breadth is attractive !!
43,800,000 yen, 4LDK, Land area 162.18 sq m , Building area 105.29 sq m parking two possible this breadth is attractive !!

Kitchen

Kitchen. Big face-to-face kitchen with a valuable white
Big face-to-face kitchen with a valuable white

Living

Living. Living room facing the face-to-face kitchen is born conversation of family
Living room facing the face-to-face kitchen is born conversation of family

Bathroom

Bathroom. Also get tired spacious bathroom!
Also get tired spacious bathroom!

View photos from the dwelling unit

View photos from the dwelling unit. The view overlooking the Akashi Strait Bridge!
The view overlooking the Akashi Strait Bridge!



Location