New Homes » Kansai » Hyogo Prefecture » Kobe Tarumi-ku
 
| | Kobe-shi, Hyogo Tarumi-ku, 兵庫県神戸市垂水区 |
| Subway Seishin ・ Yamanote Line "university city" bus 5 minutes Manabigaoka 4-chome, walk 3 minutes 地下鉄西神・山手線「学園都市」バス5分学が丘4丁目歩3分 |
| Corresponding to the flat-35S, Solar power system, Parking two Allowed, LDK18 tatami mats or more, Super close, System kitchen, Bathroom Dryer, Yang per good, All room storage, A quiet residential area, LDK15 tatami フラット35Sに対応、太陽光発電システム、駐車2台可、LDK18畳以上、スーパーが近い、システムキッチン、浴室乾燥機、陽当り良好、全居室収納、閑静な住宅地、LDK15畳 |
| ■ 3 Gochi is equipped with solar panels ■ Good living environment in a quiet residential area ■ There is an outdoor outlet for electric vehicles ■3号地は太陽光発電パネル付です■閑静な住宅街で住環境良好■電気自動車用屋外コンセントあります |
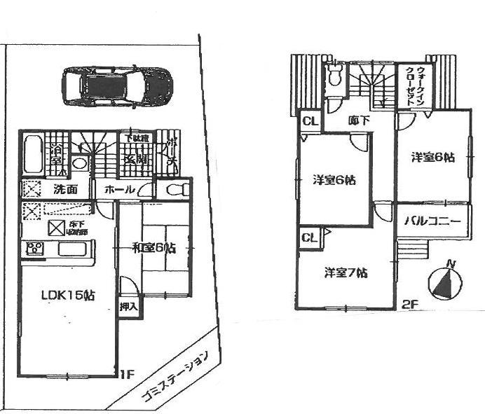
Features pickup 特徴ピックアップ | | Corresponding to the flat-35S / Solar power system / Parking two Allowed / Super close / System kitchen / Bathroom Dryer / Yang per good / All room storage / A quiet residential area / LDK15 tatami mats or more / Japanese-style room / Washbasin with shower / Face-to-face kitchen / Toilet 2 places / 2-story / Double-glazing / Warm water washing toilet seat / Underfloor Storage / The window in the bathroom / TV monitor interphone / All living room flooring / Water filter フラット35Sに対応 /太陽光発電システム /駐車2台可 /スーパーが近い /システムキッチン /浴室乾燥機 /陽当り良好 /全居室収納 /閑静な住宅地 /LDK15畳以上 /和室 /シャワー付洗面台 /対面式キッチン /トイレ2ヶ所 /2階建 /複層ガラス /温水洗浄便座 /床下収納 /浴室に窓 /TVモニタ付インターホン /全居室フローリング /浄水器 | Price 価格 | | 25,800,000 yen ・ 27,800,000 yen 2580万円・2780万円 | Floor plan 間取り | | 4LDK 4LDK | Units sold 販売戸数 | | 2 units 2戸 | Total units 総戸数 | | 3 units 3戸 | Land area 土地面積 | | 100 sq m ・ 100.01 sq m (30.24 tsubo ・ 30.25 tsubo) (Registration) 100m2・100.01m2(30.24坪・30.25坪)(登記) | Building area 建物面積 | | 90.72 sq m ・ 93.96 sq m (27.44 tsubo ・ 28.42 square meters) 90.72m2・93.96m2(27.44坪・28.42坪) | Completion date 完成時期(築年月) | | April 2014 early schedule 2014年4月上旬予定 | Address 住所 | | Hyogo Prefecture, Kobe City Tarumi Ward Manabigaoka 4-21-2 兵庫県神戸市垂水区学が丘4-21-2 | Traffic 交通 | | Subway Seishin ・ Yamanote Line "university city" bus 5 minutes Manabigaoka 4-chome, walk 3 minutes 地下鉄西神・山手線「学園都市」バス5分学が丘4丁目歩3分
| Related links 関連リンク | | [Related Sites of this company] 【この会社の関連サイト】 | Person in charge 担当者より | | Rep Sugaya MinoruHiroshi Age: 20 Daigyokai Experience: 3 years Hamakaze fragrant full of a variety of charm from the sea side to the lush mountain side in Kobe, I will do my best to look forward to meeting with everyone! Please feel free to contact us if you have any questions concerning real estate. 担当者菅家 稔弘年齢:20代業界経験:3年浜風薫る海側から緑豊かな山側まで様々な魅力溢れる神戸で、皆様との出会いを楽しみに頑張ります!不動産に関する疑問等ございましたらお気軽にお問い合わせください。 | Contact お問い合せ先 | | TEL: 0120958-330 [Toll free] Please contact the "saw SUUMO (Sumo)" TEL:0120958-330【通話料無料】「SUUMO(スーモ)を見た」と問い合わせください | Building coverage, floor area ratio 建ぺい率・容積率 | | Kenpei rate: 50%, Volume ratio: 100% 建ペい率:50%、容積率:100% | Time residents 入居時期 | | April 2014 early schedule 2014年4月上旬予定 | Land of the right form 土地の権利形態 | | Ownership 所有権 | Use district 用途地域 | | One low-rise 1種低層 | Overview and notices その他概要・特記事項 | | Person in charge: Sugaya MinoruHiroshi, Building confirmation number: No. 25199 担当者:菅家 稔弘、建築確認番号:第25199号 | Company profile 会社概要 | | <Mediation> Governor of Hyogo Prefecture (7) No. 008990 No. Co-op Housing Corporation real estate section Yubinbango655-0013 Kobe City, Hyogo Prefecture Tarumi-ku, Fukuda 3-2-12 <仲介>兵庫県知事(7)第008990号コープ住宅(株)不動産部〒655-0013 兵庫県神戸市垂水区福田3-2-12 |
Floor plan間取り図  (No. 2 locations), Price 25,800,000 yen, 4LDK, Land area 100.01 sq m , Building area 93.96 sq m
(2号地)、価格2580万円、4LDK、土地面積100.01m2、建物面積93.96m2
 (No. 3 locations), Price 27,800,000 yen, 4LDK, Land area 100 sq m , Building area 90.72 sq m
(3号地)、価格2780万円、4LDK、土地面積100m2、建物面積90.72m2
Location
|