New Homes » Kansai » Hyogo Prefecture » Kobe Tarumi-ku
 
| | Kobe-shi, Hyogo Tarumi-ku, 兵庫県神戸市垂水区 |
| Subway Seishin ・ Yamanote Line "university city" bus 5 minutes Manabigaoka 4-chome, walk 3 minutes 地下鉄西神・山手線「学園都市」バス5分学が丘4丁目歩3分 |
| ☆ Tarumi-ku [Manabigaoka 4-chome] Newly built detached in 3 subdivisions ☆ Living conveniently located in the surrounding facilities enhancement, Possibility becoming two parking. ☆垂水区【学が丘4丁目】にて新築戸建3区画分譲☆周辺施設充実で生活便利な立地、駐車2台可能となっております。 |
| 2-story, Facing south, Corner lot, Or more before road 6m, Parking two Allowed, Super close, Corresponding to the flat-35S, Solar power system, LDK18 tatami mats or more, System kitchen, Bathroom Dryer, Yang per good, All room storage, Siemens south road, A quiet residential areaese-style room, Washbasin with shower, Face-to-face kitchen, Toilet 2 places, 2 or more sides balcony, South balcony, Zenshitsuminami direction, Warm water washing toilet seat, Underfloor Storage, The window in the bathroom, Ventilation good, Walk-in closet, All room 6 tatami mats or more, Water filter, City gas, All rooms are two-sided lighting 2階建、南向き、角地、前道6m以上、駐車2台可、スーパーが近い、フラット35Sに対応、太陽光発電システム、LDK18畳以上、システムキッチン、浴室乾燥機、陽当り良好、全居室収納、南側道路面す、閑静な住宅地、和室、シャワー付洗面台、対面式キッチン、トイレ2ヶ所、2面以上バルコニー、南面バルコニー、全室南向き、温水洗浄便座、床下収納、浴室に窓、通風良好、ウォークインクロゼット、全居室6畳以上、浄水器、都市ガス、全室2面採光 |
Features pickup 特徴ピックアップ | | Corresponding to the flat-35S / Solar power system / Parking two Allowed / LDK18 tatami mats or more / Super close / Facing south / System kitchen / Bathroom Dryer / Yang per good / All room storage / Siemens south road / A quiet residential area / Or more before road 6m / Corner lot / Japanese-style room / Washbasin with shower / Face-to-face kitchen / Toilet 2 places / 2-story / 2 or more sides balcony / South balcony / Zenshitsuminami direction / Warm water washing toilet seat / Underfloor Storage / The window in the bathroom / Ventilation good / Walk-in closet / All room 6 tatami mats or more / Water filter / City gas / All rooms are two-sided lighting フラット35Sに対応 /太陽光発電システム /駐車2台可 /LDK18畳以上 /スーパーが近い /南向き /システムキッチン /浴室乾燥機 /陽当り良好 /全居室収納 /南側道路面す /閑静な住宅地 /前道6m以上 /角地 /和室 /シャワー付洗面台 /対面式キッチン /トイレ2ヶ所 /2階建 /2面以上バルコニー /南面バルコニー /全室南向き /温水洗浄便座 /床下収納 /浴室に窓 /通風良好 /ウォークインクロゼット /全居室6畳以上 /浄水器 /都市ガス /全室2面採光 | Price 価格 | | 25,800,000 yen ~ 27,800,000 yen 2580万円 ~ 2780万円 | Floor plan 間取り | | 4LDK ~ 4LDK + S (storeroom) 4LDK ~ 4LDK+S(納戸) | Units sold 販売戸数 | | 3 units 3戸 | Land area 土地面積 | | 100 sq m ~ 107.27 sq m (30.24 tsubo ~ 32.44 tsubo) (Registration) 100m2 ~ 107.27m2(30.24坪 ~ 32.44坪)(登記) | Building area 建物面積 | | 90.72 sq m ~ 93.96 sq m (27.44 tsubo ~ 28.42 tsubo) (measured) 90.72m2 ~ 93.96m2(27.44坪 ~ 28.42坪)(実測) | Driveway burden-road 私道負担・道路 | | South road width about 6m East side road width 6m 南側公道幅員約6m 東側公道幅員6m | Completion date 完成時期(築年月) | | April 2014 early schedule 2014年4月上旬予定 | Address 住所 | | Kobe City, Hyogo Prefecture Tarumi-ku Manabigaoka 4 兵庫県神戸市垂水区学が丘4 | Traffic 交通 | | Subway Seishin ・ Yamanote Line "university city" bus 5 minutes Manabigaoka 4-chome, walk 3 minutes 地下鉄西神・山手線「学園都市」バス5分学が丘4丁目歩3分
| Related links 関連リンク | | [Related Sites of this company] 【この会社の関連サイト】 | Person in charge 担当者より | | Rep Makotofuji Koji Tarumi born of Tarumi grew up. Suggestions of precisely because I love this town. Please let me help you the most in the sale or purchase of your hope. baseball ・ marathon ・ Triathlon, etc., I like that move the body, I will do my best in the light footwork. 担当者眞藤 浩司垂水生まれの垂水育ち。この街が好きだからこそのご提案。お客様のご希望を一番に売却や購入のお手伝いをさせて頂きます。野球・マラソン・トライアスロン等、体を動かす事が好きで、軽いフットワークで頑張ります。 | Contact お問い合せ先 | | TEL: 0800-603-8561 [Toll free] mobile phone ・ Also available from PHS Caller ID is not notified Please contact the "saw SUUMO (Sumo)" If it does not lead, If the real estate company TEL:0800-603-8561【通話料無料】携帯電話・PHSからもご利用いただけます 発信者番号は通知されません 「SUUMO(スーモ)を見た」と問い合わせください つながらない方、不動産会社の方は
| Most price range 最多価格帯 | | 27 million yen (3 units) 2700万円台(3戸) | Building coverage, floor area ratio 建ぺい率・容積率 | | Kenpei rate: 50%, Volume ratio: 100% 建ペい率:50%、容積率:100% | Time residents 入居時期 | | April 2014 early schedule 2014年4月上旬予定 | Land of the right form 土地の権利形態 | | Ownership 所有権 | Use district 用途地域 | | One low-rise 1種低層 | Land category 地目 | | Residential land 宅地 | Overview and notices その他概要・特記事項 | | Contact: Makotofuji Koji, Building confirmation number: Building Products Kobe No. 25199 Building Products Kobe No. 25200 Building Products Kobe No. 25001 担当者:眞藤 浩司、建築確認番号:住建神戸第25199号 住建神戸第25200号 住建神戸第25001号 | Company profile 会社概要 | | <Mediation> Governor of Hyogo Prefecture (2) Article 011 259 No. Act Kobe Co. Yubinbango655-0027 Kobe City, Hyogo Prefecture Tarumi-ku, Kanda-cho, 2-40 Isobe building first floor <仲介>兵庫県知事(2)第011259号アクト神戸(株)〒655-0027 兵庫県神戸市垂水区神田町2-40 磯部ビル1階 |
 Local photos, including front road
前面道路含む現地写真
 Same specifications photos (appearance)
同仕様写真(外観)
 Same specifications photos (living)
同仕様写真(リビング)
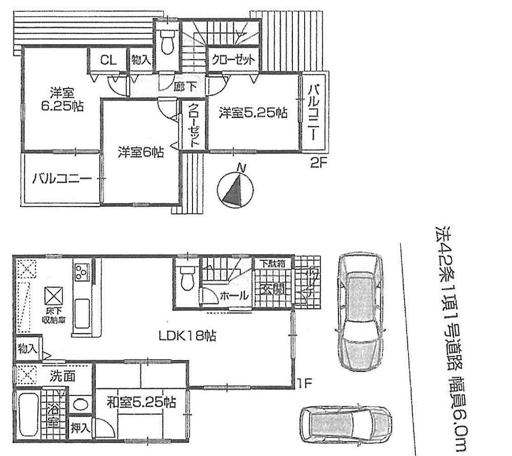
Floor plan間取り図  (No. 1 point), Price 26,300,000 yen, 4LDK, Land area 107.27 sq m , Building area 93.72 sq m
(1号地)、価格2630万円、4LDK、土地面積107.27m2、建物面積93.72m2
 Same specifications photo (bathroom)
同仕様写真(浴室)
 Same specifications photo (kitchen)
同仕様写真(キッチン)
Shopping centreショッピングセンター  739m until Bull mail Mai Tamon
ブルメール舞多聞まで739m
 Same specifications photos (Other introspection)
同仕様写真(その他内観)
Floor plan間取り図  (No. 2 locations), Price 25,800,000 yen, 4LDK+S, Land area 100.01 sq m , Building area 93.96 sq m
(2号地)、価格2580万円、4LDK+S、土地面積100.01m2、建物面積93.96m2
Supermarketスーパー  Toho store until Manabigaoka shop 163m
トーホーストア学が丘店まで163m
Floor plan間取り図  (No. 3 locations), Price 27,800,000 yen, 4LDK, Land area 100 sq m , Building area 90.72 sq m
(3号地)、価格2780万円、4LDK、土地面積100m2、建物面積90.72m2
Drug storeドラッグストア  Drag Segami Mai Tamon 1404m to shop
ドラッグセガミ舞多聞店まで1404m
Junior high school中学校  987m to Kobe Municipal Tamon Higashi Junior High School
神戸市立多聞東中学校まで987m
Primary school小学校  497m to Kobe Municipal Tamon Higashi Elementary School
神戸市立多聞東小学校まで497m
Kindergarten ・ Nursery幼稚園・保育園  387m to Kobe Municipal Tamon sunflower kindergarten
神戸市立多聞ひまわり幼稚園まで387m
Hospital病院  1165m to Kobe 掖済 meeting hospital
神戸掖済会病院まで1165m
Police station ・ Police box警察署・交番  Tarumi 772m to police station
垂水警察署まで772m
Location
|