New Homes » Kansai » Hyogo Prefecture » Kobe Tarumi-ku
 
| | Kobe-shi, Hyogo Tarumi-ku, 兵庫県神戸市垂水区 |
| JR Sanyo Line "Tarumi" 10 minutes estate KitaAyumi 2 minutes by bus JR山陽本線「垂水」バス10分団地北歩2分 |
| ☆ Tarumi-ku [Chidorigaoka 3-chome] Newly built detached 4 subdivisions with a solar power generation at ☆ Living conveniently located in the surrounding facilities enhancement, Possibility becoming two parking. ☆垂水区【千鳥が丘3丁目】にて太陽光発電付の新築戸建4区画分譲☆周辺施設充実で生活便利な立地、駐車2台可能となっております。 |
| 2-story, Southwestward, Land 50 square meters or more, Or more before road 6m, Parking two Allowed, Super close, Solar power system, It is close to golf course, System kitchen, Bathroom Dryer, Yang per good, All room storage, Siemens south road, LDK15 tatami mats or moreese-style room, Washbasin with shower, Face-to-face kitchen, Toilet 2 places, South balcony, Warm water washing toilet seat, The window in the bathroom, Ventilation good, All rooms are two-sided lighting 2階建、南西向き、土地50坪以上、前道6m以上、駐車2台可、スーパーが近い、太陽光発電システム、ゴルフ場が近い、システムキッチン、浴室乾燥機、陽当り良好、全居室収納、南側道路面す、LDK15畳以上、和室、シャワー付洗面台、対面式キッチン、トイレ2ヶ所、南面バルコニー、温水洗浄便座、浴室に窓、通風良好、全室2面採光 |
Features pickup 特徴ピックアップ | | Solar power system / Parking two Allowed / Land 50 square meters or more / It is close to golf course / Super close / System kitchen / Bathroom Dryer / Yang per good / All room storage / Siemens south road / LDK15 tatami mats or more / Or more before road 6m / Japanese-style room / Washbasin with shower / Face-to-face kitchen / Toilet 2 places / 2-story / South balcony / Warm water washing toilet seat / The window in the bathroom / Ventilation good / Southwestward / All rooms are two-sided lighting 太陽光発電システム /駐車2台可 /土地50坪以上 /ゴルフ場が近い /スーパーが近い /システムキッチン /浴室乾燥機 /陽当り良好 /全居室収納 /南側道路面す /LDK15畳以上 /前道6m以上 /和室 /シャワー付洗面台 /対面式キッチン /トイレ2ヶ所 /2階建 /南面バルコニー /温水洗浄便座 /浴室に窓 /通風良好 /南西向き /全室2面採光 | Price 価格 | | 25,800,000 yen ~ 26,800,000 yen 2580万円 ~ 2680万円 | Floor plan 間取り | | 4LDK 4LDK | Units sold 販売戸数 | | 3 units 3戸 | Land area 土地面積 | | 129.42 sq m ~ 190.38 sq m (registration) 129.42m2 ~ 190.38m2(登記) | Building area 建物面積 | | 94.77 sq m ~ 98.41 sq m (measured) 94.77m2 ~ 98.41m2(実測) | Driveway burden-road 私道負担・道路 | | Southwest side road width about 6m 南西側公道幅員約6m | Completion date 完成時期(築年月) | | January 2014 early schedule 2014年1月上旬予定 | Address 住所 | | Hyogo Prefecture, Kobe City Tarumi Ward Chidorigaoka 3 兵庫県神戸市垂水区千鳥が丘3 | Traffic 交通 | | JR Sanyo Line "Tarumi" 10 minutes estate KitaAyumi 2 minutes by bus JR山陽本線「垂水」バス10分団地北歩2分
| Related links 関連リンク | | [Related Sites of this company] 【この会社の関連サイト】 | Person in charge 担当者より | | Rep Makotofuji Koji Tarumi born of Tarumi grew up. Suggestions of precisely because I love this town. Please let me help you the most in the sale or purchase of your hope. baseball ・ marathon ・ Triathlon, etc., I like that move the body, I will do my best in the light footwork. 担当者眞藤 浩司垂水生まれの垂水育ち。この街が好きだからこそのご提案。お客様のご希望を一番に売却や購入のお手伝いをさせて頂きます。野球・マラソン・トライアスロン等、体を動かす事が好きで、軽いフットワークで頑張ります。 | Contact お問い合せ先 | | TEL: 0800-603-8561 [Toll free] mobile phone ・ Also available from PHS Caller ID is not notified Please contact the "saw SUUMO (Sumo)" If it does not lead, If the real estate company TEL:0800-603-8561【通話料無料】携帯電話・PHSからもご利用いただけます 発信者番号は通知されません 「SUUMO(スーモ)を見た」と問い合わせください つながらない方、不動産会社の方は
| Most price range 最多価格帯 | | 26 million yen (3 units) 2600万円台(3戸) | Building coverage, floor area ratio 建ぺい率・容積率 | | Kenpei rate: 50%, Volume ratio: 100% 建ペい率:50%、容積率:100% | Time residents 入居時期 | | January 2014 early schedule 2014年1月上旬予定 | Land of the right form 土地の権利形態 | | Ownership 所有権 | Use district 用途地域 | | One dwelling 1種住居 | Land category 地目 | | Residential land 宅地 | Overview and notices その他概要・特記事項 | | Contact: Makotofuji Koji, Building confirmation number: 11111 担当者:眞藤 浩司、建築確認番号:11111 | Company profile 会社概要 | | <Mediation> Governor of Hyogo Prefecture (2) Article 011 259 No. Act Kobe Co. Yubinbango655-0027 Kobe City, Hyogo Prefecture Tarumi-ku, Kanda-cho, 2-40 Isobe building first floor <仲介>兵庫県知事(2)第011259号アクト神戸(株)〒655-0027 兵庫県神戸市垂水区神田町2-40 磯部ビル1階 |
Local appearance photo現地外観写真  Local (12 May 2013) Shooting
現地(2013年12月)撮影
Local photos, including front road前面道路含む現地写真  Local (12 May 2013) Shooting
現地(2013年12月)撮影
 Same specifications photos (living)
同仕様写真(リビング)
Floor plan間取り図  (No. 1 point), Price 25,800,000 yen, 4LDK, Land area 129.42 sq m , Building area 95.58 sq m
(1号地)、価格2580万円、4LDK、土地面積129.42m2、建物面積95.58m2
 Same specifications photo (bathroom)
同仕様写真(浴室)
 Same specifications photo (kitchen)
同仕様写真(キッチン)
Shopping centreショッピングセンター  Shopping Plaza to Espa Seiryodai 1330m
ショッピングプラザエスパ星陵台まで1330m
 Same specifications photos (Other introspection)
同仕様写真(その他内観)
 The entire compartment Figure
全体区画図
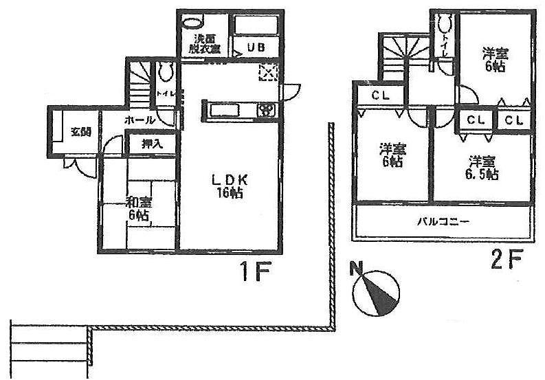
Floor plan間取り図  (No. 2 locations), Price 25,800,000 yen, 4LDK, Land area 140.63 sq m , Building area 98.41 sq m
(2号地)、価格2580万円、4LDK、土地面積140.63m2、建物面積98.41m2
Supermarketスーパー  Toho store until Kamitakamaru shop 344m
トーホーストア上高丸店まで344m
 Same specifications photos (Other introspection)
同仕様写真(その他内観)
Floor plan間取り図  (No. 4 locations), Price 26,800,000 yen, 4LDK, Land area 190.38 sq m , Building area 94.77 sq m
(4号地)、価格2680万円、4LDK、土地面積190.38m2、建物面積94.77m2
Drug storeドラッグストア  1219m until Arca drag Seiryodai shop
アルカドラッグ星陵台店まで1219m
Home centerホームセンター  1313m to Agro Garden Kobe Seiryodai shop
アグロガーデン神戸星陵台店まで1313m
Junior high school中学校  1021m to Kobe City Fukuda junior high school
神戸市立福田中学校まで1021m
Primary school小学校  420m to Kobe Municipal Chidorigaoka Elementary School
神戸市立千鳥が丘小学校まで420m
Hospital病院  1713m to Kobe 掖済 meeting hospital
神戸掖済会病院まで1713m
Location
|