2013December
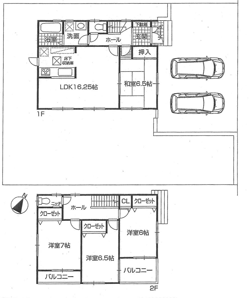
26,800,000 yen, 4LDK, 99.22 sq m
New Homes » Kansai » Hyogo Prefecture » Miki City
 
| | Hyogo Prefecture Miki 兵庫県三木市 |
| Shintetsu Ao Line "Hironogorufujomae" walk 13 minutes 神戸電鉄粟生線「広野ゴルフ場前」歩13分 |
Features pickup 特徴ピックアップ | | Corresponding to the flat-35S / Parking two Allowed / Land 50 square meters or more / System kitchen / Bathroom Dryer / All room storage / LDK15 tatami mats or more / Washbasin with shower / Toilet 2 places / Bathroom 1 tsubo or more / 2-story / Zenshitsuminami direction / The window in the bathroom / Dish washing dryer / Water filter フラット35Sに対応 /駐車2台可 /土地50坪以上 /システムキッチン /浴室乾燥機 /全居室収納 /LDK15畳以上 /シャワー付洗面台 /トイレ2ヶ所 /浴室1坪以上 /2階建 /全室南向き /浴室に窓 /食器洗乾燥機 /浄水器 | Price 価格 | | 26,800,000 yen 2680万円 | Floor plan 間取り | | 4LDK 4LDK | Units sold 販売戸数 | | 1 units 1戸 | Total units 総戸数 | | 1 units 1戸 | Land area 土地面積 | | 220.95 sq m (registration) 220.95m2(登記) | Building area 建物面積 | | 99.22 sq m 99.22m2 | Driveway burden-road 私道負担・道路 | | Nothing, East 5.9m width 無、東5.9m幅 | Completion date 完成時期(築年月) | | December 2013 2013年12月 | Address 住所 | | Hyogo Prefecture Miki Midorigaokachonaka 2 兵庫県三木市緑が丘町中2 | Traffic 交通 | | Shintetsu Ao Line "Hironogorufujomae" walk 13 minutes 神戸電鉄粟生線「広野ゴルフ場前」歩13分
| Person in charge 担当者より | | Rep Okamoto 担当者岡本 | Contact お問い合せ先 | | TEL: 0800-601-6313 [Toll free] mobile phone ・ Also available from PHS Caller ID is not notified Please contact the "saw SUUMO (Sumo)" If it does not lead, If the real estate company TEL:0800-601-6313【通話料無料】携帯電話・PHSからもご利用いただけます 発信者番号は通知されません 「SUUMO(スーモ)を見た」と問い合わせください つながらない方、不動産会社の方は
| Time residents 入居時期 | | Consultation 相談 | Land of the right form 土地の権利形態 | | Ownership 所有権 | Structure and method of construction 構造・工法 | | Wooden 2-story 木造2階建 | Use district 用途地域 | | One low-rise 1種低層 | Overview and notices その他概要・特記事項 | | Contact: Okamoto, Facilities: Public Water Supply, This sewage, City gas, Building confirmation number: Jukenkita No. 25012, Parking: Garage 担当者:岡本、設備:公営水道、本下水、都市ガス、建築確認番号:住建北第25012号、駐車場:車庫 | Company profile 会社概要 | | <Mediation> Governor of Hyogo Prefecture (1) No. 350427 (Ltd.) Good line housing Yubinbango673-0404 Hyogo Prefecture Miki Omura 163 <仲介>兵庫県知事(1)第350427号(株)グッドラインハウジング〒673-0404 兵庫県三木市大村163 |
Floor plan間取り図  26,800,000 yen, 4LDK, Land area 220.95 sq m , Building area 99.22 sq m
2680万円、4LDK、土地面積220.95m2、建物面積99.22m2
Local appearance photo現地外観写真  Local (11 May 2013) Shooting
現地(2013年11月)撮影
 Local (11 May 2013) Shooting
現地(2013年11月)撮影
 Local (11 May 2013) Shooting
現地(2013年11月)撮影
 Local (11 May 2013) Shooting
現地(2013年11月)撮影
 Local (11 May 2013) Shooting
現地(2013年11月)撮影
Location
|