2014March
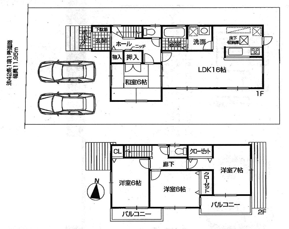
20.8 million yen, 4LDK, 95.58 sq m
New Homes » Kansai » Hyogo Prefecture » Miki City
 
| | Hyogo Prefecture Miki 兵庫県三木市 |
| Shintetsu Ao Line "freshwater clam" walk 11 minutes 神戸電鉄粟生線「志染」歩11分 |
Features pickup 特徴ピックアップ | | Parking two Allowed / It is close to golf course / Bathroom Dryer / LDK15 tatami mats or more / Toilet 2 places / Bathroom 1 tsubo or more / Zenshitsuminami direction / The window in the bathroom 駐車2台可 /ゴルフ場が近い /浴室乾燥機 /LDK15畳以上 /トイレ2ヶ所 /浴室1坪以上 /全室南向き /浴室に窓 | Price 価格 | | 20.8 million yen 2080万円 | Floor plan 間取り | | 4LDK 4LDK | Units sold 販売戸数 | | 1 units 1戸 | Total units 総戸数 | | 1 units 1戸 | Land area 土地面積 | | 151.85 sq m 151.85m2 | Building area 建物面積 | | 95.58 sq m 95.58m2 | Driveway burden-road 私道負担・道路 | | Nothing, West 11.9m width 無、西11.9m幅 | Completion date 完成時期(築年月) | | March 2014 2014年3月 | Address 住所 | | Hyogo Prefecture Miki Shijimichonakajiyugaoka 3 兵庫県三木市志染町中自由が丘3 | Traffic 交通 | | Shintetsu Ao Line "freshwater clam" walk 11 minutes 神戸電鉄粟生線「志染」歩11分
| Person in charge 担当者より | | Rep Okamoto 担当者岡本 | Contact お問い合せ先 | | TEL: 0800-601-6313 [Toll free] mobile phone ・ Also available from PHS Caller ID is not notified Please contact the "saw SUUMO (Sumo)" If it does not lead, If the real estate company TEL:0800-601-6313【通話料無料】携帯電話・PHSからもご利用いただけます 発信者番号は通知されません 「SUUMO(スーモ)を見た」と問い合わせください つながらない方、不動産会社の方は
| Building coverage, floor area ratio 建ぺい率・容積率 | | Fifty percent ・ Hundred percent 50%・100% | Time residents 入居時期 | | Consultation 相談 | Land of the right form 土地の権利形態 | | Ownership 所有権 | Structure and method of construction 構造・工法 | | Wooden 2-story 木造2階建 | Use district 用途地域 | | Two low-rise 2種低層 | Overview and notices その他概要・特記事項 | | Contact: Okamoto, Facilities: Public Water Supply, This sewage, City gas, Building confirmation number: Jukenkita Miki No. 25031, Parking: Garage 担当者:岡本、設備:公営水道、本下水、都市ガス、建築確認番号:住建北三木第25031号、駐車場:車庫 | Company profile 会社概要 | | <Mediation> Governor of Hyogo Prefecture (1) No. 350427 (Ltd.) Good line housing Yubinbango673-0404 Hyogo Prefecture Miki Omura 163 <仲介>兵庫県知事(1)第350427号(株)グッドラインハウジング〒673-0404 兵庫県三木市大村163 |
Floor plan間取り図  20.8 million yen, 4LDK, Land area 151.85 sq m , Building area 95.58 sq m
2080万円、4LDK、土地面積151.85m2、建物面積95.58m2
Compartment figure区画図  20.8 million yen, 4LDK, Land area 151.85 sq m , Building area 95.58 sq m
2080万円、4LDK、土地面積151.85m2、建物面積95.58m2
Location
|