109.11 sq m ~ 133.55 sq m
New Homes » Kansai » Hyogo Prefecture » Nishinomiya
 
| | Nishinomiya, Hyogo Prefecture 兵庫県西宮市 |
| Hankyu Imazu Line "door Yakujin" walk 16 minutes 阪急今津線「門戸厄神」歩16分 |
Features pickup 特徴ピックアップ | | Super close / Yang per good / Or more before road 6m / Leafy residential area / City gas スーパーが近い /陽当り良好 /前道6m以上 /緑豊かな住宅地 /都市ガス | Price 価格 | | Undecided 未定 | Building coverage, floor area ratio 建ぺい率・容積率 | | Ken Pay 60%, Volume rate of 200% 建ペイ率60%、容積率200% | Sales compartment 販売区画数 | | 3 compartment 3区画 | Total number of compartments 総区画数 | | 3 compartment 3区画 | Land area 土地面積 | | 109.11 sq m ~ 133.55 sq m 109.11m2 ~ 133.55m2 | Land situation 土地状況 | | Vacant lot 更地 | Address 住所 | | Nishinomiya, Hyogo Prefecture Okadayama 兵庫県西宮市岡田山 | Traffic 交通 | | Hankyu Imazu Line "door Yakujin" walk 16 minutes 阪急今津線「門戸厄神」歩16分
| Related links 関連リンク | | [Related Sites of this company] 【この会社の関連サイト】 | Contact お問い合せ先 | | Co., Ltd. Home bank services TEL: 0800-808-7892 [Toll free] mobile phone ・ Also available from PHS Caller ID is not notified Please contact the "saw SUUMO (Sumo)" If it does not lead, If the real estate company (株)ホームバンクサービスTEL:0800-808-7892【通話料無料】携帯電話・PHSからもご利用いただけます 発信者番号は通知されません 「SUUMO(スーモ)を見た」と問い合わせください つながらない方、不動産会社の方は
| Sale schedule 販売スケジュール | | Regard sale timing, We will report as soon as they are determined. ※ price ・ Units sold is undecided. ※ Acts that lead to secure the contract or reservation of the application and the application order to sale can not be absolutely. 販売時期に関しましては、決定次第報告いたします。※価格・販売戸数は未定です。※販売開始まで契約または予約の申込および申込順位の確保につながる行為は一切できません。 | Land of the right form 土地の権利形態 | | Ownership 所有権 | Building condition 建築条件 | | With 付 | Land category 地目 | | Residential land 宅地 | Use district 用途地域 | | One middle and high 1種中高 | Overview and notices その他概要・特記事項 | | Facilities: Kansai Electric Power Co., Public Water Supply, This sewage, City gas 設備:関西電力、公営水道、本下水、都市ガス | Company profile 会社概要 | | <Mediation> Governor of Hyogo Prefecture (1) No. 204150 (Ltd.) Home bank services Yubinbango663-8214 Nishinomiya, Hyogo Prefecture Imazuakebono cho 2-20 <仲介>兵庫県知事(1)第204150号(株)ホームバンクサービス〒663-8214 兵庫県西宮市今津曙町2-20 |
 The entire compartment Figure
全体区画図
Building plan example (Perth ・ appearance)建物プラン例(パース・外観)  Building plan example (image Perth)
建物プラン例(イメージパース)
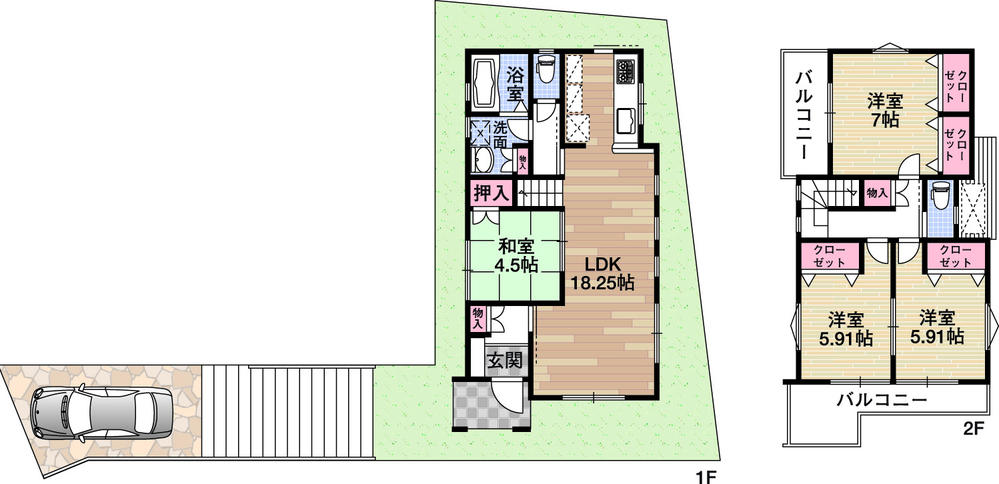
Other building plan exampleその他建物プラン例  Building plan example (No. 3 place) building area of about 97.60 sq m
建物プラン例(3号地)建物面積約97.60m2
Building plan example (introspection photo)建物プラン例(内観写真)  Example of construction
施工例
 Example of construction
施工例
Location
|