New Homes » Kansai » Hyogo Prefecture » Sanda
 
| | Hyogo Prefecture Sanda 兵庫県三田市 |
| Shintetsu Kōen-Toshi Line "Woody Town Chūō Station" walk 7 minutes 神戸電鉄公園都市線「ウッディタウン中央」歩7分 |
| Elementary school is very close to peace of mind to child-rearing can be building conditional residential land as a new 22 city blocks in the popular subdivision as a regional reblogged 10 compartment appeared. Wide residential land that has been appointed is available for purchase from 13.47 million yen 小学校がすぐ近く安心して子育てできる地域として人気の分譲地に新しく22街区として建築条件付宅地が10区画登場しました。整えられた広い宅地が1347万円よりお買い求め可能です |
| Smart Town of total 240 sections of the 7-minute walk from the Woody Town Central Station. Elementary school is very close to peace of mind to child-rearing can be building conditional residential land as a new 22 city blocks in the popular subdivision as a regional reblogged 10 compartment appeared. Wide residential land that has been appointed is available for purchase from 13.47 million yen. Aiming to "child-rearing advanced city", Safety and security ・ We are rooting for child-rearing in the high-quality service, Child-rearing ・ In the city Sanda of child-rearing well-equipped educational environment, Do not advance the My home plan of a dream? ウッディータウン中央駅まで徒歩7分の総240区画のスマートタウン。小学校がすぐ近く安心して子育てできる地域として人気の分譲地に新しく22街区として建築条件付宅地が10区画登場しました。整えられた広い宅地が1347万円よりお買い求め可能です。「子育て先進都市」をめざし、安全安心・質の高いサービスで子育てを応援している、子育て・教育環境の整った子育ての街三田市で、夢のマイホーム計画を進めませんか? |
Seller comments 売主コメント | | 22-69 No. land ・ Reference Plan 22-69号地・参考プラン | Local guide map 現地案内図 | | Local guide map 現地案内図 | Features pickup 特徴ピックアップ | | 2 along the line more accessible / Land 50 square meters or more / It is close to golf course / It is close to the city / Yang per good / Siemens south road / A quiet residential area / Around traffic fewer / Or more before road 6m / Corner lot / Starting station / Shaping land / City gas / Flat terrain / Development subdivision in / Readjustment land within 2沿線以上利用可 /土地50坪以上 /ゴルフ場が近い /市街地が近い /陽当り良好 /南側道路面す /閑静な住宅地 /周辺交通量少なめ /前道6m以上 /角地 /始発駅 /整形地 /都市ガス /平坦地 /開発分譲地内 /区画整理地内 | Event information イベント情報 | | Model house (please make a reservation beforehand) schedule / During the public time / 10:00 ~ 17:00 pastel colors there is a model house that is to produce a fresh space to the person subdivision within. Your reference to embody the My Home plan, Come, please visit. モデルハウス(事前に必ず予約してください)日程/公開中時間/10:00 ~ 17:00当分譲地内にパステルカラーが爽やかな空間を演出しているモデルハウスがございます。マイホーム計画を具体化するご参考に、是非ご見学ください。 | Property name 物件名 | | P-con Mita Yurinokidai P-con三田ゆりのき台 | Price 価格 | | 13,470,000 yen ~ 16.8 million yen 1347万円 ~ 1680万円 | Building coverage, floor area ratio 建ぺい率・容積率 | | Building coverage 50% floor space index 100% 建ぺい率50% 容積率100% | Sales compartment 販売区画数 | | 10 compartment 10区画 | Total number of compartments 総区画数 | | 16 compartment 16区画 | Land area 土地面積 | | 177.83 sq m ~ 219.86 sq m 177.83m2 ~ 219.86m2 | Land situation 土地状況 | | Vacant lot 更地 | Construction completion time 造成完了時期 | | 2012. November already completed (21 city blocks) / 2013 May already completed (22 city blocks) 平成24年11月完成済み(21街区)/平成25年5月完成済み(22街区) | Address 住所 | | Hyogo Prefecture Sanda Yurinokidai 4-22 No. 117 兵庫県三田市ゆりのき台4-22番117他 | Traffic 交通 | | Shintetsu Kōen-Toshi Line "Woody Town Chūō Station" walk 7 minutes JR Fukuchiyama Line "Shinmita" bus 13 minutes Pinggu Ayumi Ohashi 9 minutes 神戸電鉄公園都市線「ウッディタウン中央」歩7分 JR福知山線「新三田」バス13分平谷大橋歩9分
| Related links 関連リンク | | [Related Sites of this company] 【この会社の関連サイト】 | Contact お問い合せ先 | | P-con Udditaun Information Center TEL: 0210-5910-25 [Toll free] (mobile phone ・ Also available from PHS. ) Please contact the "saw SUUMO (Sumo)" P-conウッディタウンインフォメーションセンターTEL:0210-5910-25【通話料無料】(携帯電話・PHSからもご利用いただけます。)「SUUMO(スーモ)を見た」と問い合わせください | Sale schedule 販売スケジュール | | Walk up to Woody Town Central Station 7 minutes, A 5-minute walk from the elementary school, Total 240 compartment Smart Town. Elementary school is very close to peace of mind to child-rearing can be building conditional residential land as a new 22 city blocks in the popular subdivision as a regional reblogged 10 compartment appeared. Wide residential land that has been appointed is in sales than 13,470,000 yen. Aiming to "child-rearing advanced city", Safety and security ・ We are rooting for child-rearing in the high-quality service, Child-rearing ・ In the city Sanda of child-rearing well-equipped educational environment, Do not advance the My home plan of a dream? ウッディータウン中央駅まで徒歩7分、小学校まで徒歩5分、総240区画のスマートタウン。小学校がすぐ近く安心して子育てできる地域として人気の分譲地に新しく22街区として建築条件付宅地が10区画登場しました。整えられた広い宅地が1347万円より販売中です。「子育て先進都市」をめざし、安全安心・質の高いサービスで子育てを応援している、子育て・教育環境の整った子育ての街三田市で、夢のマイホーム計画を進めませんか? | Most price range 最多価格帯 | | 15 million yen ・ 16 million yen (each 3 compartment) 1500万円台・1600万円台(各3区画) | Expenses 諸費用 | | Water contribution 300,000 yen 水道分担金 300000円 | Land of the right form 土地の権利形態 | | Ownership 所有権 | Building condition 建築条件 | | With 付 | Time delivery 引き渡し時期 | | Consultation 相談 | Land category 地目 | | Residential land 宅地 | Use district 用途地域 | | One low-rise 1種低層 | Overview and notices その他概要・特記事項 | | Facilities: Sanda public water supply / Sanda public sewer / Osaka Gas Co., Ltd. / Kansai Electric Power Co., Ltd. / NTT West Corp., Development permit number: omitted for completion already, District plans: Hokusetsu Mita Udditaun district plan / Sanda new urban landscape planning / There streetscape guidelines compliance matters 設備:三田市公共上水道/三田市公共下水道/大阪ガス(株)/関西電力(株)/NTT西日本(株)、開発許可番号:完成済のため省略、地区計画等:北摂三田ウッディタウン地区計画/三田市新市街地景観計画/街並みガイドライン遵守事項あり | Company profile 会社概要 | | <Seller> Minister of Land, Infrastructure and Transport (11) No. 002093 Land, Infrastructure and Construction Co., Ltd. Yubinbango534-0024 Osaka-shi, Osaka Miyakojima-ku Higashinoda cho 2-9-7 <売主>国土交通大臣(11)第002093号国土建設(株)〒534-0024 大阪府大阪市都島区東野田町2-9-7 |
Local photos, including front road前面道路含む現地写真  There are Yurinokidai elementary school in the vicinity of the subdivision, It has echoed fun likely voice of children. Local (06 May 2013) Shooting
分譲地の近くにゆりのき台小学校があり、子供たちの楽しそうな声がこだましています。現地(2013年06月)撮影
Model house photoモデルハウス写真  Family of the second living Ya "study space", "Mrs. Corner" of wife, Husband "study", etc., I will be happy to help you realize the space of a dream.
家族の第2のリビング「スタディスペース」や、奥様の「ミセスコーナー」、ご主人の「書斎」など、夢の空間を実現するお手伝いをさせていただきます。
 There is also the model house of which you can experience the performance and potential of the housing. Please be on your tour received your reference by all means.
住宅の性能や可能性をご体感いただけるモデルハウスもございます。是非ご見学いただきご参考にしてください。
 Consideration of the privacy and ventilation installation has been blind shutter, etc., You actually can see also commitment equipment.
プライバシーと通風などを考慮し設置されたブラインドシャッター等、こだわりの設備も実際にご覧いただけます。
Building plan example (exterior photos)建物プラン例(外観写真)  Of course, two parking, We offer a high-performance 2 × 4 with a large garden house.
2台駐車はもちろん、広い庭のある高性能2×4の住宅をご提案いたします。
The entire compartment Figure全体区画図  Walk to the station 7 minutes, A 5-minute walk from the elementary school, Smart Town birth of the total 240 compartment. Joint condominium project of the leading house builders eight companies.
駅まで徒歩7分、小学校まで徒歩5分、総240区画のスマートタウン誕生。大手ハウスメーカー8社の共同分譲プロジェクト。
Local guide map現地案内図  Shintetsu Kōen-Toshi Line 7-minute walk from the "Woody Town Chūō Station" in the starting station. "Osaka" station ・ "Sannomiya" to the station, Comfortable commute of speedy and clear. Also enhance bus system from the bus terminal.
神戸電鉄公園都市線始発駅の「ウッディタウン中央」まで徒歩7分。「大阪」駅・「三宮」駅へ、スピーディかつゆとりの快適通勤。バスターミナルからのバス系統も充実。
Access view交通アクセス図  Than local Chugoku Expressway ・ Rokko North toll road "Kobe Sanda" about 14 minutes by car to interchange (about 5200m)
現地より中国自動車道・六甲北有料道路「神戸三田」インターチェンジまで車で約14分(約5200m)
Park公園  100m until Yurinokidai park
ゆりのき台公園まで100m
Primary school小学校  Yurinokidai 50m to elementary school
ゆりのき台小学校まで50m
Station駅  Udditaun 620m to the central station
ウッディタウン中央駅まで620m
Shopping centreショッピングセンター  Century RIVA! 755m to
センチュリーRIVA!まで755m
Model house photoモデルハウス写真  Garden development that was based on the guidelines. And, It is a model house of calm some impression in consideration of the privacy and day.
ガイドラインに基づいた庭づくり。そして、プライバシーや日当たりを考慮した落ち着きある印象のモデルハウスです。
Hospital病院  2500m to Mita City Hospital
三田市民病院まで2500m
Shopping centreショッピングセンター  Century Plaza up to 520m
センチュリープラザまで520m
Junior high school中学校  Yurinokidai 1700m until junior high school
ゆりのき台中学校まで1700m
Park公園  150m to Pinggu River green space
平谷川緑地まで150m
Route map路線図  Comfortable transportation network linking the city and the city
都市とまちをむすぶ快適な交通ネットワーク
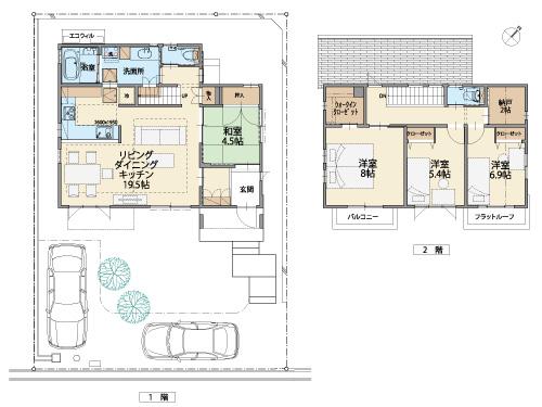
Building plan example (floor plan)建物プラン例(間取り図)  Building plan example (22-67 No. land ・ Reference Plan) 3LDK + S, Land price 15,120,000 yen, Land area 182.5 sq m , Building price 22,980,000 yen, Building area 110.95 sq m
建物プラン例(22-67号地・参考プラン)3LDK+S、土地価格1512万円、土地面積182.5m2、建物価格2298万円、建物面積110.95m2
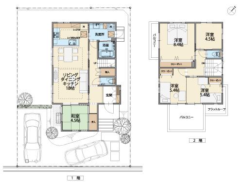
 Building plan example (22-68 No. land ・ Reference Plan) 3LDK + S, Land price 15,120,000 yen, Land area 182.43 sq m , Building price 23,880,000 yen, Building area 115.1 sq m
建物プラン例(22-68号地・参考プラン)3LDK+S、土地価格1512万円、土地面積182.43m2、建物価格2388万円、建物面積115.1m2
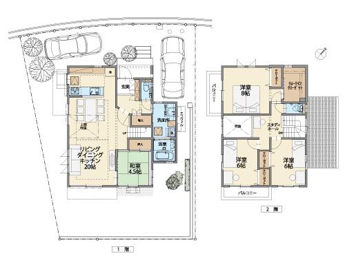
 Building plan example (22-69 No. land ・ Reference Plan) 3LDK + S, Land price 13,590,000 yen, Land area 182.89 sq m , Building price 23,260,000 yen, Building area 112.17 sq m
建物プラン例(22-69号地・参考プラン)3LDK+S、土地価格1359万円、土地面積182.89m2、建物価格2326万円、建物面積112.17m2
Otherその他  House building of Pikon, which proceeds in the slogan "Let's make a house like their own will want to live.". Taking advantage of superior tenderness to the structure system and the wooden house life that 2x4 construction method has designed Building 1 1 buildings cherish. «Design section»
「自分たちが住みたくなるような家を作ろう」というかけ声で進められるピーコンの住まい造り。2x4工法という優れた構造システムと木造住宅の生活への優しさをを生かして1棟1棟大切に設計しています。≪設計部≫
 By performing the field control and in-house inspection directly in-house, It is the construction work that satisfies the demand for high quality and economic efficiency. Also after delivery, In cooperation with the responsible group companies have to deliver the peace of mind in the after-sales and inspection of up to 20 years.
現場管理と社内検査を直接自社で行うことで、高品質と経済性を両立させた建築工事を行っています。また引き渡し後は、担当のグループ会社と連携し20年後までのアフターや点検で安心をお届けしています。
Building plan example (floor plan)建物プラン例(間取り図)  Yurinokidai 50m to elementary school
ゆりのき台小学校まで50m
Location
|