New Homes » Kansai » Hyogo Prefecture » Takarazuka


Takarazuka, Hyogo
Hankyu Imazu Line "Sakasegawa" walk 18 minutes
Property name
Central Park City Sakasegawa
Price
37,900,000 yen ~ 45,280,000 yen
Floor plan
3LDK ・ 4LDK + 3S (storeroom) parking two Allowed
Units sold
10 units
Total units
79 units
Land area
100 sq m ~ 122.68 sq m
Building area
94.48 sq m ~ 110.66 sq m
Driveway burden-road
Road width: 5m ・ 6m, Asphaltic pavement, No driveway burden
Completion date
Early August 2013
Address
Takarazuka, Hyogo Obama 2-1
Traffic
Hankyu Imazu Line "Sakasegawa" walk 18 minutes
Hankyu Takarazuka Line "Kiyoshi Kojin" walk 21 minutes
Hankyu Takarazuka Line "Takarazuka" walk 31 minutes
Related links
[Related Sites of this company]
Contact
Nomura builders TEL: 0120-62-5588 [Toll free] Please contact the "saw SUUMO (Sumo)"
Sale schedule
First-come-first-served basis during the reception!
Event information
Local tours (Please be sure to ask in advance) schedule / Every Saturday and Sunday time / 10:00 ~ 20:00 "every weekend a limited time event" night OPEN until 21:00! (Final acceptance 20:00) night model house tour, Your family you are interested by all means Please come on the reservation. December is scheduled to be held also Christmas events! We will coming soon.
Most price range
39 million yen (10 units)
Building coverage, floor area ratio
Building coverage: 60%, Volume ratio: 200%
Time residents
Immediate available
Land of the right form
Ownership
Structure and method of construction
Wooden (2 × 4 construction method)
Use district
Semi-industrial
Land category
Residential land
Overview and notices
Building confirmation number: No. Wazaken認 No. H25-00301
Company profile
<Employer ・ Seller> Minister of Land, Infrastructure and Transport (3) No. 005973 (company) Osaka Building Lots and Buildings Transaction Business Association (Corporation) Kinki district Real Estate Fair Trade Council member Nomura construction company head office Yubinbango576-0016 Osaka Katano Hoshida 4-16-5


Sale already cityscape photo

Sale already cityscape photo. Hankyu Imazu Line largest, Town of the total 79 compartments. Family-friendly advanced Eco-Town.
Hankyu Imazu Line largest, Town of the total 79 compartments. Family-friendly advanced Eco-Town.

Sale already cityscape photo. Installing the lighting of the entire mansion LED outside 構計 picture. Warm light wraps your family every day along with the increase the crime prevention. (Local shooting)
Installing the lighting of the entire mansion LED outside 構計 picture. Warm light wraps your family every day along with the increase the crime prevention. (Local shooting)

Local appearance photo

Local appearance photo. Soft natural texture, Outer wall with the texture of the German equity SENS. To thoroughly genuine intention to use the thermo-wood and the Netherlands produced bricks to accent. Also SENS will deliver the high non-flammable. (Local model Room No. 7 locations)
Soft natural texture, Outer wall with the texture of the German equity SENS. To thoroughly genuine intention to use the thermo-wood and the Netherlands produced bricks to accent. Also SENS will deliver the high non-flammable. (Local model Room No. 7 locations)

Kitchen

Kitchen. Consider the housework flow line, Placed in the straight from the bathroom to the kitchen. (No. 46 locations)
Consider the housework flow line, Placed in the straight from the bathroom to the kitchen. (No. 46 locations)

Living

Living. There is a dream what to be fulfilled because Nomura builders have put a force on the design. You can see a house that combines the uniqueness and convenience in local. (Local model room No. 46 locations)
There is a dream what to be fulfilled because Nomura builders have put a force on the design. You can see a house that combines the uniqueness and convenience in local. (Local model room No. 46 locations)

Living. High ceiling of about 4m of living top. It captures full because the light from the south set up a window to the part. Now comfortable space so you also given the spread of the field of view as well as lighting surface. (Local model room No. 46 locations)
High ceiling of about 4m of living top. It captures full because the light from the south set up a window to the part. Now comfortable space so you also given the spread of the field of view as well as lighting surface. (Local model room No. 46 locations)

Living. Shape that was easy-to-use cleaner living adjacent to the tatami corner. (No. 7 locations)
Shape that was easy-to-use cleaner living adjacent to the tatami corner. (No. 7 locations)

Living. Always living stairs family of sign is felt. (No. 7 locations)
Always living stairs family of sign is felt. (No. 7 locations)

Receipt

Receipt. Large capacity super NANDO. Off-season clothing and equipment also collectively housed.
Large capacity super NANDO. Off-season clothing and equipment also collectively housed.

Kitchen

Kitchen. Stylish kitchen floating luxury. (No. 7 locations)
Stylish kitchen floating luxury. (No. 7 locations)

Wash basin, toilet

Wash basin, toilet. Powder Room. (No. 46 locations)
Powder Room. (No. 46 locations)

Local appearance photo
Local appearance photo

Bathroom
Bathroom

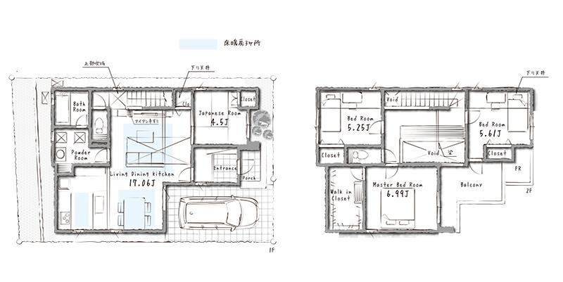
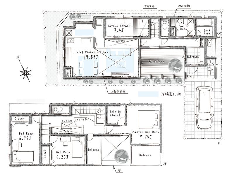
Floor plan
Floor plan

Floor plan
Floor plan

Floor plan
Floor plan

Floor plan
Floor plan

Floor plan
Floor plan

Station

station. 1400m to Sakasegawa Station
1400m to Sakasegawa Station

Kindergarten ・ Nursery

kindergarten ・ Nursery. 440m until the chick nursery
440m until the chick nursery

Primary school

Primary school. Municipal Mizzah until elementary school 610m
Municipal Mizzah until elementary school 610m

Other Equipment

Other Equipment. Outer wall also safe after 30 years of high durability! Because plastering finishing material cured with aging, Do not worry about peeling. Also maintenance costs will be cheaper after who you live because even unnecessary repainting.
Outer wall also safe after 30 years of high durability! Because plastering finishing material cured with aging, Do not worry about peeling. Also maintenance costs will be cheaper after who you live because even unnecessary repainting.

Other Equipment. We are using the Venice made of plaster on the inner wall in the standard. Dew condensation suppression ・ Antibacterial anti-virus ・ Anti-allergic ・ Fire-safety ・ Excellent cleaning properties. Since the 100% natural material is gentle to the body.
We are using the Venice made of plaster on the inner wall in the standard. Dew condensation suppression ・ Antibacterial anti-virus ・ Anti-allergic ・ Fire-safety ・ Excellent cleaning properties. Since the 100% natural material is gentle to the body.

Power generation ・ Hot water equipment

Power generation ・ Hot water equipment. To save power generation per year 57000 yen by using a gas!
To save power generation per year 57000 yen by using a gas!

Local guide map
Local guide map

Local guide map
Local guide map

Other Equipment

Other Equipment. Floor heating correspondence of live natural eco. Also easy to clean with a wax-free! Can you grain also feel firm in the wide flooring. Also adopted by the standard natural solid flooring! Warmth of wood, Scent is enjoyable precisely because natural. inner wall [Stucco] Of natural materials house will be completed, combined with the.
Floor heating correspondence of live natural eco. Also easy to clean with a wax-free! Can you grain also feel firm in the wide flooring. Also adopted by the standard natural solid flooring! Warmth of wood, Scent is enjoyable precisely because natural. inner wall [Stucco] Of natural materials house will be completed, combined with the.

Power generation ・ Hot water equipment

Power generation ・ Hot water equipment. Overwhelmingly nook hot water type is popular. It will be warm from the feet. Is also glad characterized is not danced dust when in use. Even with all day in winter, In gas prices in floor heating fee deals!
Overwhelmingly nook hot water type is popular. It will be warm from the feet. Is also glad characterized is not danced dust when in use. Even with all day in winter, In gas prices in floor heating fee deals!

Cooling and heating ・ Air conditioning

Cooling and heating ・ Air conditioning. Bathroom heating, Clothes dryer, Bathroom ventilation, The work of the four roles of cool breeze operation! In particular, preliminary heating would like to recommend. In about 16 yen even if the heating operation 30 minutes before bathing, You can prevent the cold winter of heat shock.
Bathroom heating, Clothes dryer, Bathroom ventilation, The work of the four roles of cool breeze operation! In particular, preliminary heating would like to recommend. In about 16 yen even if the heating operation 30 minutes before bathing, You can prevent the cold winter of heat shock.

The entire compartment Figure

The entire compartment Figure. Compartment figure
Compartment figure

Junior high school

Junior high school. City Takarazuka until junior high school 110m
City Takarazuka until junior high school 110m

Park

park. 450m to Suehiro Central Park
450m to Suehiro Central Park

Shopping centre

Shopping centre. To Apia Sakasegawa 1320m
To Apia Sakasegawa 1320m

Supermarket

Supermarket. Hankyu to Oasis 630m
Hankyu to Oasis 630m

Other Environmental Photo

Other Environmental Photo. 430m until EDION
430m until EDION

Other Environmental Photo. 70m until the Municipal Sports Center
70m until the Municipal Sports Center



Location