New Homes » Kansai » Hyogo Prefecture » Takarazuka
 
| | Takarazuka, Hyogo 兵庫県宝塚市 |
| Hankyu Takarazuka Line "Yamamoto" walk 5 minutes 阪急宝塚線「山本」歩5分 |
| ■ Open house! Year 12 / 28 ・ 29 to the! The beginning of the year 1 / 4 ・ From 5 ■ Century 21 Kinki housing distribution ・ Please leave it to our regional manager! ■ Contact free dial 0800-600-0668 ■オープンハウス!年内12/28・29まで!年明け1/4・5から■センチュリー21近畿住宅流通・地域担当の私達にお任せください!■お問合わせは無料ダイヤル0800-600-0668 |
| ◆ Please consult anything to the staff of because there many properties also not listed community to Sumo! ◆ Our sales staff, please be assured that is the qualified person of the mortgage advisors and residential construction coordinator! "Good hit yang" in ◇ south park «features of the property» glad to washing love of wife ◇ equipment of "south-facing wide balcony" ◇ enhance "LDK floor heating," "dishwasher", "bathroom heater dryer" ◆スーモに掲載されていない物件も多数ございますので地域密着の担当スタッフに何でもご相談ください!◆弊社の営業スタッフは住宅ローンアドバイザー及び住宅建築コーディネーターの有資格者ですのでご安心ください!≪物件の特徴≫◇南側公園で『陽当たり良し』◇洗濯好きの奥様に嬉しい『南向きワイドバルコニー』◇充実の設備『LDK床暖房』『食器洗い乾燥機』『浴室暖房乾燥機』 |
Features pickup 特徴ピックアップ | | Pre-ground survey / Parking two Allowed / Immediate Available / System kitchen / Bathroom Dryer / All room storage / LDK15 tatami mats or more / Or more before road 6m / Japanese-style room / Mist sauna / Washbasin with shower / Face-to-face kitchen / Security enhancement / Toilet 2 places / Bathroom 1 tsubo or more / South balcony / Otobasu / Warm water washing toilet seat / TV monitor interphone / City gas / Attic storage 地盤調査済 /駐車2台可 /即入居可 /システムキッチン /浴室乾燥機 /全居室収納 /LDK15畳以上 /前道6m以上 /和室 /ミストサウナ /シャワー付洗面台 /対面式キッチン /セキュリティ充実 /トイレ2ヶ所 /浴室1坪以上 /南面バルコニー /オートバス /温水洗浄便座 /TVモニタ付インターホン /都市ガス /屋根裏収納 | Event information イベント情報 | | Local guide Board (Please be sure to ask in advance) schedule / During the public time / 11:00 ~ 21:00 現地案内会(事前に必ずお問い合わせください)日程/公開中時間/11:00 ~ 21:00 | Price 価格 | | 38,800,000 yen 3880万円 | Floor plan 間取り | | 4LDK 4LDK | Units sold 販売戸数 | | 1 units 1戸 | Total units 総戸数 | | 4 units 4戸 | Land area 土地面積 | | 113.9 sq m (34.45 tsubo) (Registration) 113.9m2(34.45坪)(登記) | Building area 建物面積 | | 102.95 sq m (31.14 square meters) 102.95m2(31.14坪) | Driveway burden-road 私道負担・道路 | | Nothing 無 | Completion date 完成時期(築年月) | | June 2013 2013年6月 | Address 住所 | | Takarazuka, Hyogo Hirai 6 兵庫県宝塚市平井6 | Traffic 交通 | | Hankyu Takarazuka Line "Yamamoto" walk 5 minutes Hankyu Takarazuka Line "Hibarigaoka Hanayashiki" walk 16 minutes JR Fukuchiyama Line "Kawanishi Ikeda" walk 21 minutes 阪急宝塚線「山本」歩5分 阪急宝塚線「雲雀丘花屋敷」歩16分 JR福知山線「川西池田」歩21分
| Related links 関連リンク | | [Related Sites of this company] 【この会社の関連サイト】 | Person in charge 担当者より | | Person in charge of real-estate and building FP Watanabe Akihiko Age: 30 Daigyokai Experience: 13 years in charge are to customers who are "thank you" is pleased, We run around every day to be able to suggestions that were in each of your home. The person who worries in the mortgage from house hunting novice how, Any person who is also Please feel free to contact us. 担当者宅建FP渡辺 明彦年齢:30代業界経験:13年担当させて頂いたお客様の『ありがとう』が嬉しくて、それぞれのご家庭にあったご提案をできるよう日々走り回っています。家探し初心者方から住宅ローンでお悩みの方、どんな方でもお気軽にご相談下さい。 | Contact お問い合せ先 | | TEL: 0800-600-0668 [Toll free] mobile phone ・ Also available from PHS Caller ID is not notified Please contact the "saw SUUMO (Sumo)" If it does not lead, If the real estate company TEL:0800-600-0668【通話料無料】携帯電話・PHSからもご利用いただけます 発信者番号は通知されません 「SUUMO(スーモ)を見た」と問い合わせください つながらない方、不動産会社の方は
| Building coverage, floor area ratio 建ぺい率・容積率 | | 60% ・ 200% 60%・200% | Time residents 入居時期 | | Immediate available 即入居可 | Land of the right form 土地の権利形態 | | Ownership 所有権 | Structure and method of construction 構造・工法 | | Wooden 2-story (framing method) 木造2階建(軸組工法) | Use district 用途地域 | | One middle and high 1種中高 | Overview and notices その他概要・特記事項 | | Contact: Watanabe Akihiko, Facilities: Public Water Supply, This sewage, City gas, Parking: car space 担当者:渡辺 明彦、設備:公営水道、本下水、都市ガス、駐車場:カースペース | Company profile 会社概要 | | <Mediation> governor of Osaka (2) the first 053,115 No. Century 21 (Ltd.) Kinki housing distribution Yubinbango573-0005 Hirakata, Osaka Ikenomiya 2-2-15 <仲介>大阪府知事(2)第053115号センチュリー21(株)近畿住宅流通〒573-0005 大阪府枚方市池之宮2-2-15 |
Local appearance photo現地外観写真  Local photos (appearance)
現地写真(外観)
Livingリビング  Local photos (living) Unnecessary and easy care wax!
現地写真(リビング) ワックス不要でお手入れ簡単!
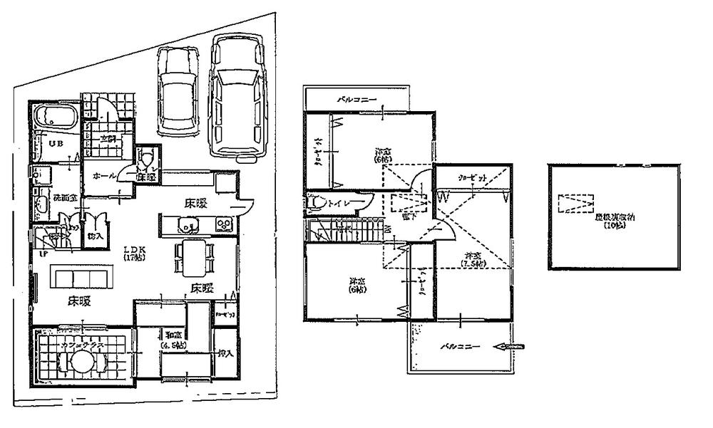
Floor plan間取り図  38,800,000 yen, 4LDK, Land area 113.9 sq m , Building area 102.95 sq m parking two
3880万円、4LDK、土地面積113.9m2、建物面積102.95m2 駐車2台
Kitchenキッチン  Local photo (kitchen) Slide storage! Water purifier with shower!
現地写真(キッチン) スライド収納!浄水器付シャワー!
Bathroom浴室  Local photo (bathroom) Bathroom heating dryer! Warm bath!
現地写真(浴室) 浴室暖房乾燥機!保温浴槽!
Other introspectionその他内観  Local photos (Western-style)
現地写真(洋室)
 Local photos (Western-style)
現地写真(洋室)
Other Equipmentその他設備  Local photos (basin)
現地写真(洗面)
 Local photos (toilet)
現地写真(トイレ)
Entrance玄関  Local photos (entrance)
現地写真(玄関)
Cooling and heating ・ Air conditioning冷暖房・空調設備  Local photo (bathroom heating dryer)
現地写真(浴室暖房乾燥機)
 Local photo (bathroom heating dryer remote control)
現地写真(浴室暖房乾燥機リモコン)
 Local photo (floor heating remote control)
現地写真(床暖房リモコン)
Security equipment防犯設備  Local photos (color monitor intercom)
現地写真(カラーモニターインターホン)
Junior high school中学校  Takarazuka Municipal Minamihibarigaoka until junior high school 764m
宝塚市立南ひばりガ丘中学校まで764m
Primary school小学校  Takarazuka 1175m until the Municipal Nagao Elementary School
宝塚市立長尾小学校まで1175m
Location
|