New Homes » Kanto » Kanagawa Prefecture » Aiko Gun
 
| | Kanagawa Prefecture Aiko Gun Aikawa 神奈川県愛甲郡愛川町 |
| Odawara Line Odakyu "Hon-Atsugi" 35 minutes Ayumi Sakuradai 6 minutes by bus 小田急小田原線「本厚木」バス35分桜台歩6分 |
| With solar power system! Newly built single-family 4 buildings Year Available, System kitchen, All room storageese-style room, Washbasin with shower, Toilet 2 places, Bathroom 1 tsubo or more, 2-story, Double-glazing, Otobasu, Warm water washing 太陽光発電システム付!新築戸建4棟 年内入居可、システムキッチン、全居室収納、和室、シャワー付洗面台、トイレ2ヶ所、浴室1坪以上、2階建、複層ガラス、オートバス、温水洗 |
| Nakatsu Elementary School 795m Aikawa Higashi Junior High School 2171m Aikawa Tatsunaka Tsunan nursery 357m Kumasaka Surgery Respiratory Medicine clinic 609m Aikawa Municipal Nakatsu nursery 734m Year Available, System kitchen, All room storageese-style room, Washbasin with shower, Toilet 2 places, Bathroom 1 tsubo or more, 2-story, Double-glazing, Otobasu, Warm water washing toilet seat, Underfloor Storage, The window in the bathroom, TV monitor interphone, Water filter, Flat terrain 中津小学校795m 愛川東中学校2171m 愛川町立中津南保育園357m 熊坂外科呼吸器科医院609m 愛川町立中津保育園734m 年内入居可、システムキッチン、全居室収納、和室、シャワー付洗面台、トイレ2ヶ所、浴室1坪以上、2階建、複層ガラス、オートバス、温水洗浄便座、床下収納、浴室に窓、TVモニタ付インターホン、浄水器、平坦地 |
Features pickup 特徴ピックアップ | | Year Available / System kitchen / All room storage / Japanese-style room / Washbasin with shower / Toilet 2 places / Bathroom 1 tsubo or more / 2-story / Double-glazing / Otobasu / Warm water washing toilet seat / Underfloor Storage / The window in the bathroom / TV monitor interphone / Water filter / Flat terrain 年内入居可 /システムキッチン /全居室収納 /和室 /シャワー付洗面台 /トイレ2ヶ所 /浴室1坪以上 /2階建 /複層ガラス /オートバス /温水洗浄便座 /床下収納 /浴室に窓 /TVモニタ付インターホン /浄水器 /平坦地 | Price 価格 | | 18,800,000 yen 1880万円 | Floor plan 間取り | | 4LDK 4LDK | Units sold 販売戸数 | | 1 units 1戸 | Land area 土地面積 | | 115.75 sq m (registration) 115.75m2(登記) | Building area 建物面積 | | 90.72 sq m (measured) 90.72m2(実測) | Driveway burden-road 私道負担・道路 | | Road width: 4.35m 道路幅:4.35m | Completion date 完成時期(築年月) | | September 2013 2013年9月 | Address 住所 | | Kanagawa Prefecture Aiko Gun Aikawa Nakatsu 神奈川県愛甲郡愛川町中津 | Traffic 交通 | | Odawara Line Odakyu "Hon-Atsugi" 35 minutes Ayumi Sakuradai 6 minutes by bus 小田急小田原線「本厚木」バス35分桜台歩6分
| Person in charge 担当者より | | Rep Takaura Atsushi Age: 40 Daigyokai Experience: 20 years My Home Purchase There are pitfalls, but is a lifetime of shopping. We can not fail. Knowledge and experience does not lose to anyone. Kindly carefully because I will explain, It will help you find the My home together. 担当者高浦 敦年齢:40代業界経験:20年マイホーム購入は思わぬ落とし穴がありますが一生のお買い物です。失敗するわけにはいきません。知識と経験は誰にも負けません。親切丁寧にご説明いたしますので、一緒にマイホームを見つけましょう。 | Contact お問い合せ先 | | TEL: 0800-603-8480 [Toll free] mobile phone ・ Also available from PHS Caller ID is not notified Please contact the "saw SUUMO (Sumo)" If it does not lead, If the real estate company TEL:0800-603-8480【通話料無料】携帯電話・PHSからもご利用いただけます 発信者番号は通知されません 「SUUMO(スーモ)を見た」と問い合わせください つながらない方、不動産会社の方は
| Building coverage, floor area ratio 建ぺい率・容積率 | | Kenpei rate: 60%, Volume ratio: 200% 建ペい率:60%、容積率:200% | Time residents 入居時期 | | Consultation 相談 | Land of the right form 土地の権利形態 | | Ownership 所有権 | Structure and method of construction 構造・工法 | | Wooden 2-story 木造2階建 | Use district 用途地域 | | One middle and high 1種中高 | Land category 地目 | | Residential land 宅地 | Other limitations その他制限事項 | | Irregular land 不整形地 | Overview and notices その他概要・特記事項 | | Contact: Takaura Atsushi, Building confirmation number: 108761 担当者:高浦 敦、建築確認番号:108761 | Company profile 会社概要 | | <Mediation> Kanagawa Governor (2) Article 026 475 issue (stock) residence of square HOMESyubinbango252-0231 Sagamihara, Kanagawa Prefecture, Chuo-ku, Sagamihara 5-1-2A <仲介>神奈川県知事(2)第026475号(株)住まいの広場HOMES〒252-0231 神奈川県相模原市中央区相模原5-1-2A |
 Local appearance photo
現地外観写真
 Living
リビング
 Kitchen
キッチン
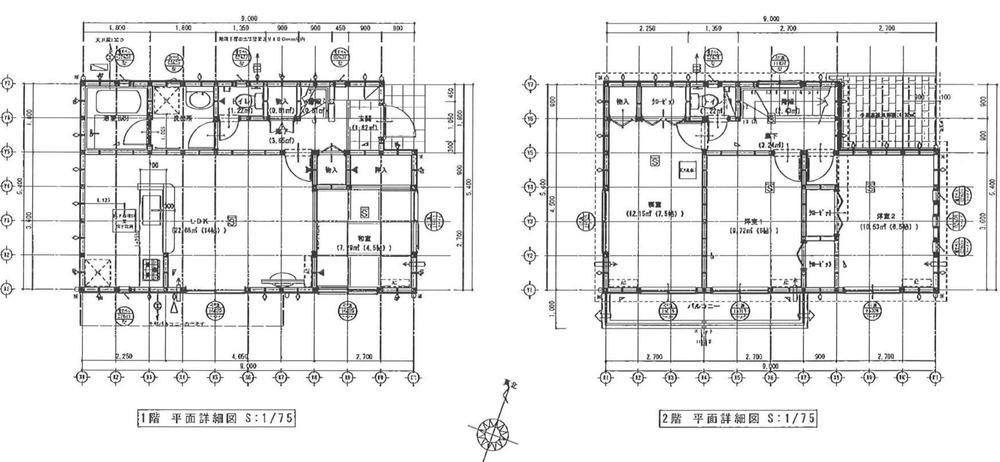
Floor plan間取り図  (2 ●), Price 18,800,000 yen, 4LDK, Land area 115.75 sq m , Building area 90.72 sq m
(2●)、価格1880万円、4LDK、土地面積115.75m2、建物面積90.72m2
 Local appearance photo
現地外観写真
 Bathroom
浴室
 Non-living room
リビング以外の居室
 Entrance
玄関
 Wash basin, toilet
洗面台・洗面所
 Receipt
収納
 Toilet
トイレ
 Local photos, including front road
前面道路含む現地写真
 Balcony
バルコニー
Kindergarten ・ Nursery幼稚園・保育園  Aikawa Tatsunaka Tsunan to nursery school 357m
愛川町立中津南保育園まで357m
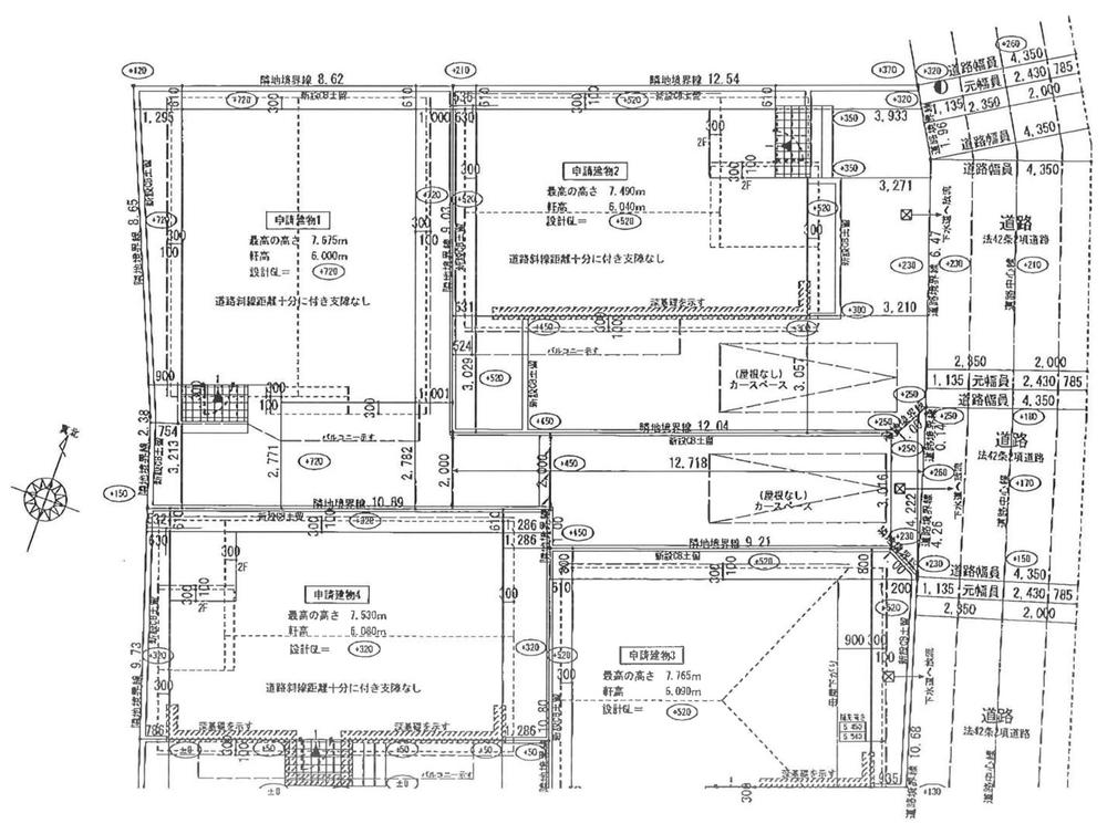
 The entire compartment Figure
全体区画図
 Local appearance photo
現地外観写真
 Non-living room
リビング以外の居室
Hospital病院  609m until Kumasaka Surgery Respiratory Medicine Clinic
熊坂外科呼吸器科医院まで609m
 Non-living room
リビング以外の居室
Kindergarten ・ Nursery幼稚園・保育園  Aikawa Municipal Nakatsu to nursery 734m
愛川町立中津保育園まで734m
 Non-living room
リビング以外の居室
Location
|