New Homes » Kanto » Kanagawa Prefecture » Aiko Gun


Kanagawa Prefecture Aiko Gun Aikawa
Odawara Line Odakyu "Hon-Atsugi" bus 35 Bunhara HakuAyumi 3 minutes
Development subdivision remaining 3 compartment of all 6 compartment. The building is a free plan.
■ See the mountain ■ Summer resort ■ Yang per good ■ Siemens south road ■ Land 45 square meters or more ■ Super close ■ A quiet residential area ■ Corner lot ■ Shaping land ■ Leafy residential area ■ Good view ■ Development subdivision in ■ Building plan example there
Features pickup
Immediate delivery Allowed / See the mountain / Super close / Summer resort / Yang per good / Siemens south road / A quiet residential area / Corner lot / Shaping land / Leafy residential area / Good view / Development subdivision in / Building plan example there
Event information
Local sales meeting schedule / It is a subdivision of the total 6 compartment remaining 3 compartment in public. The building is a free plan. Car navigation system Setting thank you in the vicinity of the Aiko Gun Aikawa Hanbara 1711-10.
Price
5 million yen ~ 5.5 million yen
Building coverage, floor area ratio
Kenpei rate: 40%, Volume ratio: 60%
Sales compartment
3 compartment
Total number of compartments
6 compartment
Land area
150 sq m ~ 150.01 sq m (45.37 tsubo ~ 45.37 tsubo) (Registration)
Land situation
Vacant lot
Address
Kanagawa Prefecture Aiko Gun Aikawa Hanbara
Traffic
Odawara Line Odakyu "Hon-Atsugi" bus 35 Bunhara HakuAyumi 3 minutes
Related links
[Related Sites of this company]
Contact
TEL: 0800-808-5242 [Toll free] mobile phone ・ Also available from PHS
Caller ID is not notified
Please contact the "saw SUUMO (Sumo)"
If it does not lead, If the real estate company
Land of the right form
Ownership
Building condition
With
Time delivery
Immediate delivery allowed
Land category
Residential land
Use district
One low-rise
Overview and notices
Facilities: Public Water Supply, This sewage, Individual LPG
Company profile
<Mediation> Governor of Kanagawa Prefecture (4) The 022,018 Gominami Takeshi Construction (Ltd.) Yubinbango243-0014 Atsugi City, Kanagawa Prefecture Asahimachi 5-46-17


Local land photo

Local land photo. Local (10 May 2013) Shooting
Local (10 May 2013) Shooting

Other building plan example

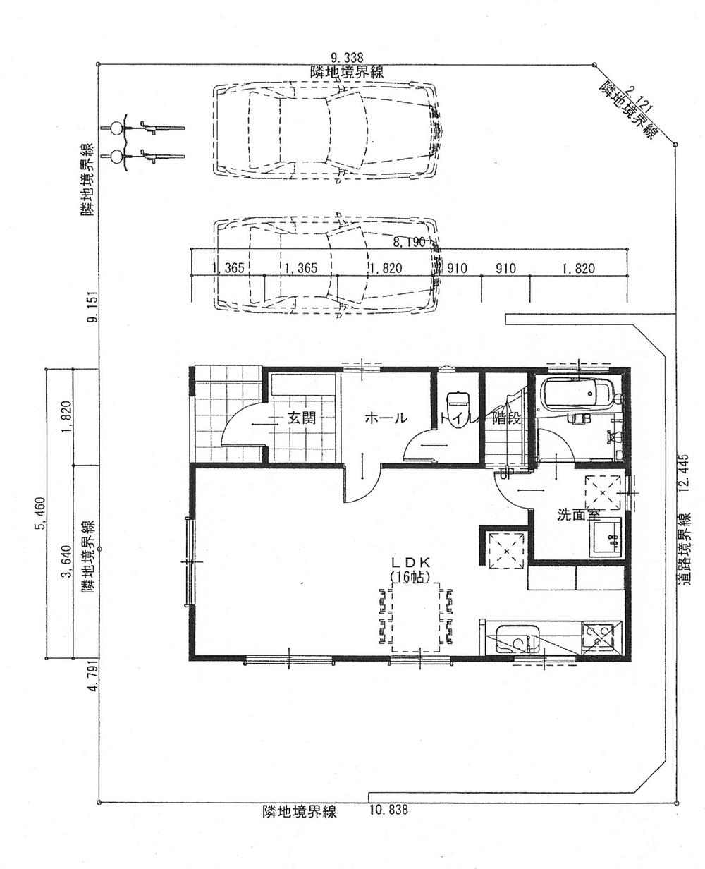
Other building plan example. Building plan example ( No. 5 areas ・ First floor) building price 12,790,000 yen, Building area 86.94 sq m (26.3 square meters), Land area 150 sq m (45.37 square meters)
Building plan example ( No. 5 areas ・ First floor) building price 12,790,000 yen, Building area 86.94 sq m (26.3 square meters), Land area 150 sq m (45.37 square meters)

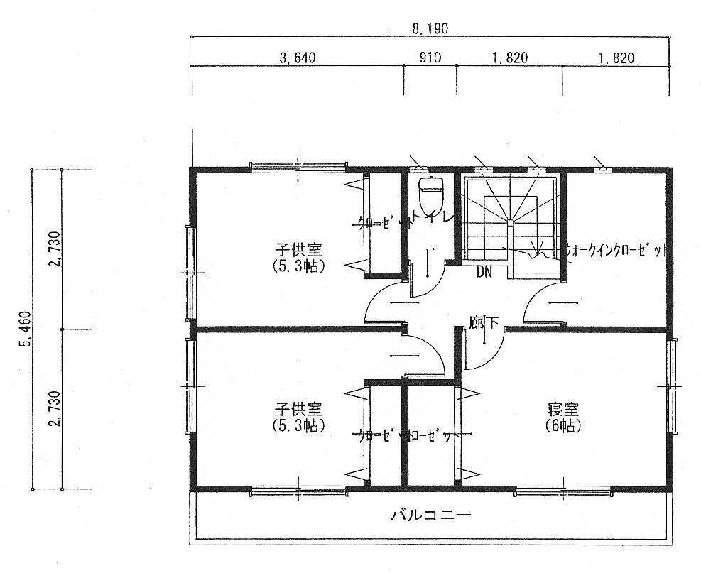
Other building plan example. Building plan example ( No. 5 areas ・ Second floor) Building 26.3 square meters), Land area 150 sq m (45.37 square meters)
Building plan example ( No. 5 areas ・ Second floor) Building 26.3 square meters), Land area 150 sq m (45.37 square meters)

Local land photo

Local land photo. Local (10 May 2013) Shooting
Local (10 May 2013) Shooting

Local photos, including front road

Local photos, including front road. Local (10 May 2013) Shooting
Local (10 May 2013) Shooting

Local land photo

Local land photo. Local (10 May 2013) Shooting
Local (10 May 2013) Shooting

Local land photo. Local (10 May 2013) Shooting
Local (10 May 2013) Shooting



Location