New Homes » Kanto » Kanagawa Prefecture » Aiko Gun
 
| | Kanagawa Prefecture Aiko Gun Aikawa 神奈川県愛甲郡愛川町 |
| Odakyu Odawara Line "Hon-Atsugi" 25 minutes Kasugadai chome walk 2 minutes by bus 小田急小田原線「本厚木」バス25分春日台一丁目歩2分 |
| A quiet residential area, City gas, Leafy residential area, All room 6 tatami mats or more, Parking two Allowed, LDK15 tatami mats or more, System kitchen, All room storage, Or more before road 6mese-style room, Washbasin with shower, Face-to-face kitchen 閑静な住宅地、都市ガス、緑豊かな住宅地、全居室6畳以上、駐車2台可、LDK15畳以上、システムキッチン、全居室収納、前道6m以上、和室、シャワー付洗面台、対面式キッチン |
| A quiet residential area, City gas, Leafy residential area, All room 6 tatami mats or more, Parking two Allowed, LDK15 tatami mats or more, System kitchen, All room storage, Or more before road 6mese-style room, Washbasin with shower, Face-to-face kitchen, Toilet 2 places, Bathroom 1 tsubo or more, 2-story, Southeast direction, Double-glazing, Warm water washing toilet seat, Underfloor Storage, TV monitor interphone, Mu front building 閑静な住宅地、都市ガス、緑豊かな住宅地、全居室6畳以上、駐車2台可、LDK15畳以上、システムキッチン、全居室収納、前道6m以上、和室、シャワー付洗面台、対面式キッチン、トイレ2ヶ所、浴室1坪以上、2階建、東南向き、複層ガラス、温水洗浄便座、床下収納、TVモニタ付インターホン、前面棟無 |
Features pickup 特徴ピックアップ | | Parking two Allowed / System kitchen / All room storage / A quiet residential area / LDK15 tatami mats or more / Or more before road 6m / Japanese-style room / Washbasin with shower / Face-to-face kitchen / Toilet 2 places / Bathroom 1 tsubo or more / 2-story / Southeast direction / Double-glazing / Warm water washing toilet seat / Underfloor Storage / TV monitor interphone / Leafy residential area / Mu front building / All room 6 tatami mats or more / City gas 駐車2台可 /システムキッチン /全居室収納 /閑静な住宅地 /LDK15畳以上 /前道6m以上 /和室 /シャワー付洗面台 /対面式キッチン /トイレ2ヶ所 /浴室1坪以上 /2階建 /東南向き /複層ガラス /温水洗浄便座 /床下収納 /TVモニタ付インターホン /緑豊かな住宅地 /前面棟無 /全居室6畳以上 /都市ガス | Price 価格 | | 25,800,000 yen 2580万円 | Floor plan 間取り | | 4LDK 4LDK | Units sold 販売戸数 | | 2 units 2戸 | Total units 総戸数 | | 2 units 2戸 | Land area 土地面積 | | 138.18 sq m ・ 139.83 sq m (41.79 tsubo ・ 42.29 tsubo) (Registration) 138.18m2・139.83m2(41.79坪・42.29坪)(登記) | Building area 建物面積 | | 104.75 sq m (31.68 tsubo) (measured) 104.75m2(31.68坪)(実測) | Completion date 完成時期(築年月) | | 2013 end of November 2013年11月末 | Address 住所 | | Kanagawa Prefecture Aiko Gun Aikawa Kasugadai 3-1-3 神奈川県愛甲郡愛川町春日台3-1-3 | Traffic 交通 | | Odakyu Odawara Line "Hon-Atsugi" 25 minutes Kasugadai chome walk 2 minutes by bus JR Sagami Line "Vanden" walk 82 minutes JR Sagami Line "original Toma" walk 72 minutes 小田急小田原線「本厚木」バス25分春日台一丁目歩2分 JR相模線「番田」歩82分 JR相模線「原当麻」歩72分
| Related links 関連リンク | | [Related Sites of this company] 【この会社の関連サイト】 | Person in charge 担当者より | | Rep Tabata Age: 20 Daigyokai Experience: I am trying the best that you tell to one early customers three years latest information 担当者田畑年齢:20代業界経験:3年最新の情報を一早くお客様にお伝えする事を一番心掛けております | Contact お問い合せ先 | | TEL: 0800-603-9816 [Toll free] mobile phone ・ Also available from PHS Caller ID is not notified Please contact the "saw SUUMO (Sumo)" If it does not lead, If the real estate company TEL:0800-603-9816【通話料無料】携帯電話・PHSからもご利用いただけます 発信者番号は通知されません 「SUUMO(スーモ)を見た」と問い合わせください つながらない方、不動産会社の方は
| Building coverage, floor area ratio 建ぺい率・容積率 | | Kenpei rate: 50%, Volume ratio: 100% 建ペい率:50%、容積率:100% | Time residents 入居時期 | | Consultation 相談 | Land of the right form 土地の権利形態 | | Ownership 所有権 | Use district 用途地域 | | One low-rise 1種低層 | Land category 地目 | | Residential land 宅地 | Other limitations その他制限事項 | | Quasi-fire zones 準防火地域 | Overview and notices その他概要・特記事項 | | Contact: Tabata, Building confirmation number: the H25 building certification No. KBI01819 担当者:田畑、建築確認番号:第H25確認建築KBI01819号 | Company profile 会社概要 | | <Marketing alliance (agency)> Governor of Kanagawa Prefecture (1) No. 027366 (Corporation) All Japan Real Estate Association (Corporation) metropolitan area real estate Fair Trade Council member Ishii housing (Ltd.) Yubinbango243-0813 Atsugi City, Kanagawa Prefecture Tsumadahigashi 3-10-13 <販売提携(代理)>神奈川県知事(1)第027366号(公社)全日本不動産協会会員 (公社)首都圏不動産公正取引協議会加盟石井ハウジング(株)〒243-0813 神奈川県厚木市妻田東3-10-13 |
Local appearance photo現地外観写真  Local (11 May 2013) shooting Building 2
現地(2013年11月)撮影2号棟
Local photos, including front road前面道路含む現地写真  Local (11 May 2013) Shooting
現地(2013年11月)撮影
Kitchenキッチン  Local (11 May 2013) Shooting Building 2
現地(2013年11月)撮影 2号棟
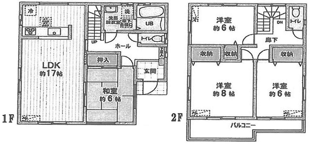
Floor plan間取り図  (1), Price 25,800,000 yen, 4LDK, Land area 138.18 sq m , Building area 104.75 sq m
(1)、価格2580万円、4LDK、土地面積138.18m2、建物面積104.75m2
Livingリビング  Indoor (11 May 2013) Shooting Building 2
室内(2013年11月)撮影 2号棟
Bathroom浴室  Indoor (11 May 2013) Shooting
室内(2013年11月)撮影
Non-living roomリビング以外の居室  Indoor (11 May 2013) Shooting
室内(2013年11月)撮影
Wash basin, toilet洗面台・洗面所  Indoor (11 May 2013) Shooting
室内(2013年11月)撮影
Balconyバルコニー  Local (11 May 2013) Shooting
現地(2013年11月)撮影
Supermarketスーパー  Inageya Co., Ltd.
いなげや
Location
|