New Homes » Kanto » Kanagawa Prefecture » Aiko Gun
 
| | Kanagawa Prefecture Aiko Gun Aikawa 神奈川県愛甲郡愛川町 |
| Odawara Line Odakyu "Hon-Atsugi" bus 30 Bunhigashi Nakamae walk 3 minutes 小田急小田原線「本厚木」バス30分東中前歩3分 |
| The rest 1 building! ☆ 4LDK of making you loose more than six quires all room ☆ ◆ Car space two Allowed! Living environment enhancement ◆ Flat 35S subject property 残り1棟です!☆全居室6帖以上のゆったりしたつくりの4LDK☆◆カースペース2台可!住環境充実◆フラット35S対象物件 |
| Parking two Allowed, System kitchen, Washbasin with shower, Face-to-face kitchen, Toilet 2 places, 2-story, TV monitor interphone, All room 6 tatami mats or more 駐車2台可、システムキッチン、シャワー付洗面台、対面式キッチン、トイレ2ヶ所、2階建、TVモニタ付インターホン、全居室6畳以上 |
Features pickup 特徴ピックアップ | | Parking two Allowed / System kitchen / Washbasin with shower / Face-to-face kitchen / Toilet 2 places / 2-story / TV monitor interphone / All room 6 tatami mats or more 駐車2台可 /システムキッチン /シャワー付洗面台 /対面式キッチン /トイレ2ヶ所 /2階建 /TVモニタ付インターホン /全居室6畳以上 | Price 価格 | | 19,800,000 yen 1980万円 | Floor plan 間取り | | 4LDK 4LDK | Units sold 販売戸数 | | 1 units 1戸 | Land area 土地面積 | | 111.59 sq m 111.59m2 | Building area 建物面積 | | 94.4 sq m 94.4m2 | Completion date 完成時期(築年月) | | December 2013 schedule 2013年12月予定 | Address 住所 | | Kanagawa Prefecture Aiko Gun Aikawa Kasugadai 2 神奈川県愛甲郡愛川町春日台2 | Traffic 交通 | | Odawara Line Odakyu "Hon-Atsugi" bus 30 Bunhigashi Nakamae walk 3 minutes 小田急小田原線「本厚木」バス30分東中前歩3分
| Related links 関連リンク | | [Related Sites of this company] 【この会社の関連サイト】 | Person in charge 担当者より | | Rep Sugimoto Ryoji age: we are a looking for properties delight customers with suggestions that unlike the 30's other real estate agent. Please leave. 担当者杉本 良二年齢:30代他の不動産屋と違ったご提案でお客様に喜んで頂ける物件探しをしています。おまかせ下さい。 | Contact お問い合せ先 | | TEL: 0800-602-4998 [Toll free] mobile phone ・ Also available from PHS Caller ID is not notified Please contact the "saw SUUMO (Sumo)" If it does not lead, If the real estate company TEL:0800-602-4998【通話料無料】携帯電話・PHSからもご利用いただけます 発信者番号は通知されません 「SUUMO(スーモ)を見た」と問い合わせください つながらない方、不動産会社の方は
| Time residents 入居時期 | | Consultation 相談 | Land of the right form 土地の権利形態 | | Ownership 所有権 | Use district 用途地域 | | One low-rise 1種低層 | Overview and notices その他概要・特記事項 | | Contact: Sugimoto Ryoji, Building confirmation number: the HPA-13-05809-1 other 担当者:杉本 良二、建築確認番号:第HPA-13-05809-1 他 | Company profile 会社概要 | | <Mediation> Minister of Land, Infrastructure and Transport (1) the first 008,392 No. Century 21 Taise housing Corporation Atsugi headquarters Yubinbango243-0018 Atsugi City, Kanagawa Prefecture Nakamachi 4-16-6 <仲介>国土交通大臣(1)第008392号センチュリー21タイセーハウジング(株)厚木本社〒243-0018 神奈川県厚木市中町4-16-6 |
Local appearance photo現地外観写真  Local (10 May 2013) shooting ◎ car space two Allowed! ◎ elementary school 3-minute walk, Kindergarten is a 1-minute walk ☆
現地(2013年10月)撮影◎カースペース2台可!◎小学校徒歩3分、幼稚園徒歩1分です☆
Same specifications photos (living)同仕様写真(リビング)  Example of construction Pair glass ・ 24-hour ventilation system ☆
施工例 ペアガラス・24時間換気システム☆
Same specifications photo (kitchen)同仕様写真(キッチン)  Example of construction System kitchen ・ With under-floor storage
施工例 システムキッチン・床下収納付
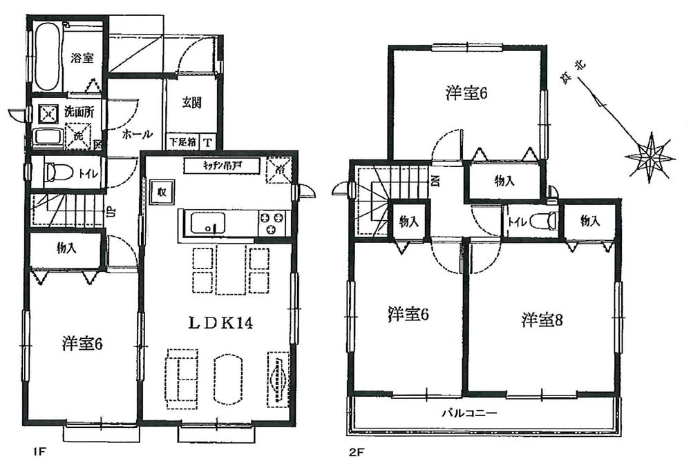
Floor plan間取り図  (1 Building), Price 19,800,000 yen, 4LDK, Land area 111.59 sq m , Building area 94.4 sq m
(1号棟)、価格1980万円、4LDK、土地面積111.59m2、建物面積94.4m2
 Local appearance photo
現地外観写真
Same specifications photo (bathroom)同仕様写真(浴室)  Example of construction
施工例
Local photos, including front road前面道路含む現地写真  Front road spacious!
前面道路広々!
Kindergarten ・ Nursery幼稚園・保育園  Kasugadai 20m to kindergarten
春日台幼稚園まで20m
 The entire compartment Figure
全体区画図
 Local photos, including front road
前面道路含む現地写真
Primary school小学校  Aikawa Municipal Nakatsu second elementary school up to 200m
愛川町立中津第二小学校まで200m
Supermarketスーパー  690m until Inageya ina21 Aikawa Kasugadai shop
いなげやina21愛川春日台店まで690m
Junior high school中学校  Aikawa 930m to stand Aikawa Nakahara junior high school
愛川町立愛川中原中学校まで930m
Location
|