2013September
18,800,000 yen, 4LDK, 90.72 sq m
New Homes » Kanto » Kanagawa Prefecture » Aiko Gun
 
| | Kanagawa Prefecture Aiko Gun Aikawa 神奈川県愛甲郡愛川町 |
| Odawara Line Odakyu "Hon-Atsugi" bus 23 minutes Ayumi Sakuradai 5 minutes 小田急小田原線「本厚木」バス23分桜台歩5分 |
| Parking two Allowed 駐車2台可 |
Features pickup 特徴ピックアップ | | Parking two Allowed 駐車2台可 | Price 価格 | | 18,800,000 yen 1880万円 | Floor plan 間取り | | 4LDK 4LDK | Units sold 販売戸数 | | 1 units 1戸 | Total units 総戸数 | | 4 units 4戸 | Land area 土地面積 | | 115.75 sq m (35.01 tsubo) (measured) 115.75m2(35.01坪)(実測) | Building area 建物面積 | | 90.72 sq m (27.44 tsubo) (measured) 90.72m2(27.44坪)(実測) | Driveway burden-road 私道負担・道路 | | Nothing 無 | Completion date 完成時期(築年月) | | September 2013 2013年9月 | Address 住所 | | Kanagawa Prefecture Aiko Gun Aikawa Nakatsu 神奈川県愛甲郡愛川町中津 | Traffic 交通 | | Odawara Line Odakyu "Hon-Atsugi" bus 23 minutes Ayumi Sakuradai 5 minutes 小田急小田原線「本厚木」バス23分桜台歩5分
| Contact お問い合せ先 | | TEL: 0800-603-1280 [Toll free] mobile phone ・ Also available from PHS Caller ID is not notified Please contact the "saw SUUMO (Sumo)" If it does not lead, If the real estate company TEL:0800-603-1280【通話料無料】携帯電話・PHSからもご利用いただけます 発信者番号は通知されません 「SUUMO(スーモ)を見た」と問い合わせください つながらない方、不動産会社の方は
| Building coverage, floor area ratio 建ぺい率・容積率 | | 60% ・ 200% 60%・200% | Time residents 入居時期 | | Consultation 相談 | Land of the right form 土地の権利形態 | | Ownership 所有権 | Structure and method of construction 構造・工法 | | Wooden 2-story 木造2階建 | Use district 用途地域 | | One middle and high 1種中高 | Overview and notices その他概要・特記事項 | | Facilities: Public Water Supply, This sewage, Individual LPG, Parking: car space 設備:公営水道、本下水、個別LPG、駐車場:カースペース | Company profile 会社概要 | | <Mediation> Governor of Kanagawa Prefecture (11) No. 009457 (the company), Kanagawa Prefecture Building Lots and Buildings Transaction Business Association (Corporation) metropolitan area real estate Fair Trade Council member Japan Housing Corporation real estate sales department Yubinbango243-0017 Atsugi City, Kanagawa Prefecture Sakae 1-17-10 <仲介>神奈川県知事(11)第009457号(社)神奈川県宅地建物取引業協会会員 (公社)首都圏不動産公正取引協議会加盟日本住宅(株)不動産営業部〒243-0017 神奈川県厚木市栄町1-17-10 |
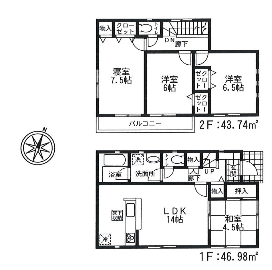
Floor plan間取り図  18,800,000 yen, 4LDK, Land area 115.75 sq m , Building area 90.72 sq m
1880万円、4LDK、土地面積115.75m2、建物面積90.72m2
Supermarketスーパー  465m until Inageya ina21 Aikawa Kasugadai shop
いなげやina21愛川春日台店まで465m
 907m to Super Alps Aikawa shop
スーパーアルプス愛川店まで907m
 Maruetsu to Nakatsu shop 1915m
マルエツ中津店まで1915m
Kindergarten ・ Nursery幼稚園・保育園  Kasugadai 635m to kindergarten
春日台幼稚園まで635m
 Aikawa Municipal Kasugadai to nursery 720m
愛川町立春日台保育園まで720m
 Nakatsu 1139m to kindergarten
中津幼稚園まで1139m
Location
|