New Homes » Kanto » Kanagawa Prefecture » Aiko Gun
 
| | Kanagawa Prefecture Aiko Gun Aikawa 神奈川県愛甲郡愛川町 |
| Odakyu Odawara Line "Hon-Atsugi" 30 minutes stations before walk 4 minutes by bus 小田急小田原線「本厚木」バス30分局前歩4分 |
| The rest 1 building! ☆ It is more than 41 square meters of land room ☆ ◆ Yang per good! Car space two Allowed ◆ South balcony! Super Maruetsu walk 11 minutes 残り1棟です!☆土地ゆとりの41坪以上です☆◆陽当り良好!カースペース2台可◆南面バルコニーです!スーパーマルエツ徒歩11分です |
| Corresponding to the flat-35S, Parking two Allowed, LDK18 tatami mats or more, System kitchen, Bathroom Dryer, All room storage, Corner lotese-style room, Washbasin with shower, Face-to-face kitchen, Security enhancement, Wide balcony, 2-story, Southeast direction, South balcony, Double-glazing, Warm water washing toilet seat, Nantei, Underfloor Storage, TV monitor interphone, Storeroom フラット35Sに対応、駐車2台可、LDK18畳以上、システムキッチン、浴室乾燥機、全居室収納、角地、和室、シャワー付洗面台、対面式キッチン、セキュリティ充実、ワイドバルコニー、2階建、東南向き、南面バルコニー、複層ガラス、温水洗浄便座、南庭、床下収納、TVモニタ付インターホン、納戸 |
Features pickup 特徴ピックアップ | | Corresponding to the flat-35S / Parking two Allowed / LDK18 tatami mats or more / System kitchen / Bathroom Dryer / All room storage / Corner lot / Japanese-style room / Washbasin with shower / Face-to-face kitchen / Security enhancement / Wide balcony / 2-story / Southeast direction / South balcony / Double-glazing / Warm water washing toilet seat / Nantei / Underfloor Storage / TV monitor interphone / Storeroom フラット35Sに対応 /駐車2台可 /LDK18畳以上 /システムキッチン /浴室乾燥機 /全居室収納 /角地 /和室 /シャワー付洗面台 /対面式キッチン /セキュリティ充実 /ワイドバルコニー /2階建 /東南向き /南面バルコニー /複層ガラス /温水洗浄便座 /南庭 /床下収納 /TVモニタ付インターホン /納戸 | Price 価格 | | 25,800,000 yen 2580万円 | Floor plan 間取り | | 4LDK + 2S (storeroom) 4LDK+2S(納戸) | Units sold 販売戸数 | | 1 units 1戸 | Total units 総戸数 | | 2 units 2戸 | Land area 土地面積 | | 140.88 sq m 140.88m2 | Building area 建物面積 | | 99.62 sq m 99.62m2 | Completion date 完成時期(築年月) | | January 2014 will 2014年1月予定 | Address 住所 | | Kanagawa Prefecture Aiko Gun Aikawa Nakatsu 神奈川県愛甲郡愛川町中津 | Traffic 交通 | | Odakyu Odawara Line "Hon-Atsugi" 30 minutes stations before walk 4 minutes by bus 小田急小田原線「本厚木」バス30分局前歩4分
| Related links 関連リンク | | [Related Sites of this company] 【この会社の関連サイト】 | Person in charge 担当者より | | Rep Sugimoto Ryoji age: we are a looking for properties delight customers with suggestions that unlike the 30's other real estate agent. Please leave. 担当者杉本 良二年齢:30代他の不動産屋と違ったご提案でお客様に喜んで頂ける物件探しをしています。おまかせ下さい。 | Contact お問い合せ先 | | TEL: 0800-602-4998 [Toll free] mobile phone ・ Also available from PHS Caller ID is not notified Please contact the "saw SUUMO (Sumo)" If it does not lead, If the real estate company TEL:0800-602-4998【通話料無料】携帯電話・PHSからもご利用いただけます 発信者番号は通知されません 「SUUMO(スーモ)を見た」と問い合わせください つながらない方、不動産会社の方は
| Time residents 入居時期 | | Consultation 相談 | Land of the right form 土地の権利形態 | | Ownership 所有権 | Use district 用途地域 | | One middle and high 1種中高 | Overview and notices その他概要・特記事項 | | Contact: Sugimoto Ryoji, Building confirmation number: No. H25SHC115108 other 担当者:杉本 良二、建築確認番号:第H25SHC115108号他 | Company profile 会社概要 | | <Mediation> Minister of Land, Infrastructure and Transport (1) the first 008,392 No. Century 21 Taise housing Corporation Atsugi headquarters Yubinbango243-0018 Atsugi City, Kanagawa Prefecture Nakamachi 4-16-6 <仲介>国土交通大臣(1)第008392号センチュリー21タイセーハウジング(株)厚木本社〒243-0018 神奈川県厚木市中町4-16-6 |
Local appearance photo現地外観写真  Local (December 2013) shooting ◎ per yang is good ◎ is a car space two Allowed!
現地(2013年12月)撮影◎陽当り良好です◎カースペース2台可です!
Same specifications photo (kitchen)同仕様写真(キッチン)  Example of construction System Kitchen (stainless steel worktop ・ Enamel top stove)
施工例 システムキッチン(ステンレス製ワークトップ・ホーロートップコンロ)
Local appearance photo現地外観写真  Children is also safe in an 8-minute walk from the elementary school ☆
小学校まで徒歩8分でお子様も安心です☆
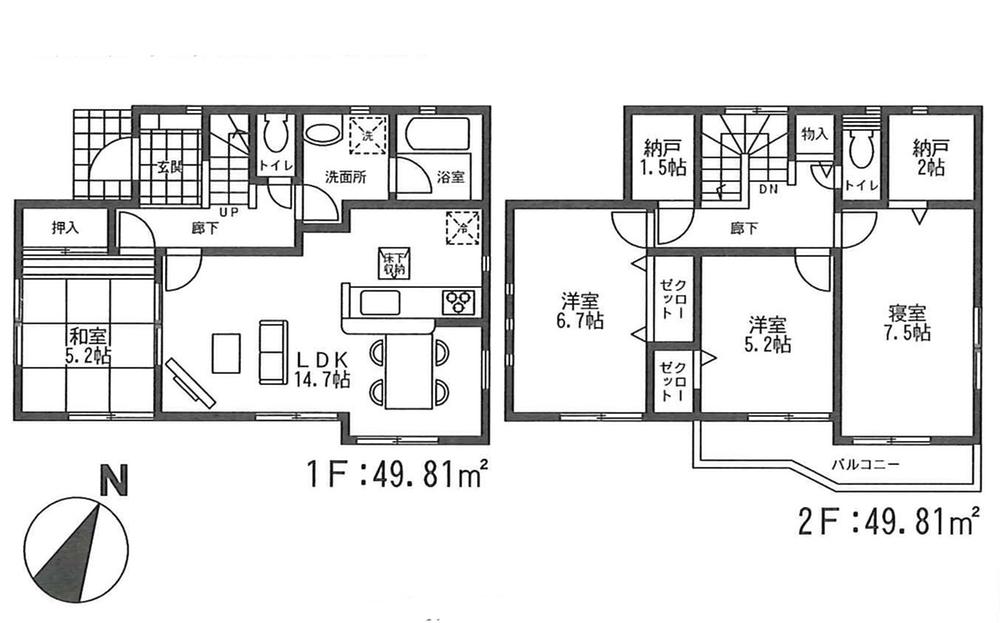
Floor plan間取り図  (1 Building), Price 25,800,000 yen, 4LDK+2S, Land area 140.88 sq m , Building area 99.62 sq m
(1号棟)、価格2580万円、4LDK+2S、土地面積140.88m2、建物面積99.62m2
Same specifications photos (living)同仕様写真(リビング)  Example of construction
施工例
Same specifications photo (bathroom)同仕様写真(浴室)  Example of construction
施工例
 Local photos, including front road
前面道路含む現地写真
Junior high school中学校  Aikawa Municipal Aikawa 1100m to East Junior High School
愛川町立愛川東中学校まで1100m
 The entire compartment Figure
全体区画図
 Local photos, including front road
前面道路含む現地写真
Primary school小学校  Aikawa 600m to stand Nakatsu Elementary School
愛川町立中津小学校まで600m
Location
|