New Homes » Kanto » Kanagawa Prefecture » Ashigarashimo
 
| | Ashigarashimo-gun, Kanagawa Prefecture Yugawara-machi 神奈川県足柄下郡湯河原町 |
| JR Tokaido Line "Manazuru" walk 13 minutes JR東海道本線「真鶴」歩13分 |
| Large garden overlooking the sea in the south, Flat 35 is a newly built single-family of the corresponding specification. Living and first floor Western-style room is with floor heating, There is also a storage enhancement walk-in closet. Parking two Allowed 南に海一望の広い庭、フラット35対応仕様の新築戸建です。リビングと1階洋室は床暖房付、ウォークインクローゼットもあり収納充実。駐車場2台可 |
| Corresponding to the flat-35S, Parking two Allowed, Ocean View, See the mountain, Facing south, System kitchen, LDK18 tatami mats or more, Bathroom Dryer, Yang per good, Around traffic fewer, Garden more than 10 square meters, Home garden, Washbasin with shower, Face-to-face kitchen, Barrier-free, Toilet 2 places, 2-story, South balcony, Warm water washing toilet seat, Nantei, TV monitor interphone, Leafy residential area, Good view, Walk-in closet, All room 6 tatami mats or more, All rooms are two-sided lighting, Flat terrain, New construction フラット35Sに対応、駐車2台可、オーシャンビュー、山が見える、南向き、システムキッチン、LDK18畳以上、浴室乾燥機、陽当り良好、周辺交通量少なめ、庭10坪以上、家庭菜園、シャワー付洗面台、対面式キッチン、バリアフリー、トイレ2ヶ所、2階建、南面バルコニー、温水洗浄便座、南庭、TVモニタ付インターホン、緑豊かな住宅地、眺望良好、ウォークインクロゼット、全居室6畳以上、全室2面採光、平坦地、新築 |
Features pickup 特徴ピックアップ | | Corresponding to the flat-35S / Parking two Allowed / LDK18 tatami mats or more / Ocean View / See the mountain / Facing south / System kitchen / Bathroom Dryer / Yang per good / Around traffic fewer / Garden more than 10 square meters / Home garden / Washbasin with shower / Face-to-face kitchen / Barrier-free / Toilet 2 places / 2-story / South balcony / Warm water washing toilet seat / Nantei / TV monitor interphone / Leafy residential area / Good view / Walk-in closet / All room 6 tatami mats or more / All rooms are two-sided lighting / Flat terrain フラット35Sに対応 /駐車2台可 /LDK18畳以上 /オーシャンビュー /山が見える /南向き /システムキッチン /浴室乾燥機 /陽当り良好 /周辺交通量少なめ /庭10坪以上 /家庭菜園 /シャワー付洗面台 /対面式キッチン /バリアフリー /トイレ2ヶ所 /2階建 /南面バルコニー /温水洗浄便座 /南庭 /TVモニタ付インターホン /緑豊かな住宅地 /眺望良好 /ウォークインクロゼット /全居室6畳以上 /全室2面採光 /平坦地 | Price 価格 | | 32,650,000 yen 3265万円 | Floor plan 間取り | | 4LDK 4LDK | Units sold 販売戸数 | | 1 units 1戸 | Total units 総戸数 | | 2 units 2戸 | Land area 土地面積 | | 175.81 sq m (53.18 tsubo) (measured) 175.81m2(53.18坪)(実測) | Building area 建物面積 | | 100.19 sq m (30.30 tsubo) (measured) 100.19m2(30.30坪)(実測) | Driveway burden-road 私道負担・道路 | | Nothing, North 5m width 無、北5m幅 | Completion date 完成時期(築年月) | | July 2013 2013年7月 | Address 住所 | | Ashigarashimo-gun, Kanagawa Prefecture Yugawara-machi Yoshihama 神奈川県足柄下郡湯河原町吉浜 | Traffic 交通 | | JR Tokaido Line "Manazuru" walk 13 minutes JR東海道本線「真鶴」歩13分
| Related links 関連リンク | | [Related Sites of this company] 【この会社の関連サイト】 | Person in charge 担当者より | | Rep Takao Shiro 担当者高尾 司郎 | Contact お問い合せ先 | | SOY real estate (Ltd.) TEL: 0120-808860 [Toll free] Please contact the "saw SUUMO (Sumo)" SOY不動産(株)TEL:0120-808860【通話料無料】「SUUMO(スーモ)を見た」と問い合わせください | Building coverage, floor area ratio 建ぺい率・容積率 | | 60% ・ 200% 60%・200% | Time residents 入居時期 | | Consultation 相談 | Land of the right form 土地の権利形態 | | Ownership 所有権 | Structure and method of construction 構造・工法 | | Wooden 2-story 木造2階建 | Use district 用途地域 | | One dwelling 1種住居 | Overview and notices その他概要・特記事項 | | Contact: Takao Shiro, Parking: car space 担当者:高尾 司郎、駐車場:カースペース | Company profile 会社概要 | | <Mediation> Shizuoka Governor (1) the first 013,541 No. SOY Real Estate Co., Ltd. Yubinbango413-0038 Atami, Shizuoka Prefecture west Atami-cho 2-1-3 Tohto building first floor <仲介>静岡県知事(1)第013541号SOY不動産(株)〒413-0038 静岡県熱海市西熱海町2-1-3 東都ビル1階 |
Local appearance photo現地外観写真  Local (September 2013) Shooting
現地(2013年9月)撮影
View photos from the dwelling unit住戸からの眺望写真  View from local (September 2013) Shooting
現地からの眺望(2013年9月)撮影
Livingリビング  Living (September 2013) Shooting
リビング(2013年9月)撮影
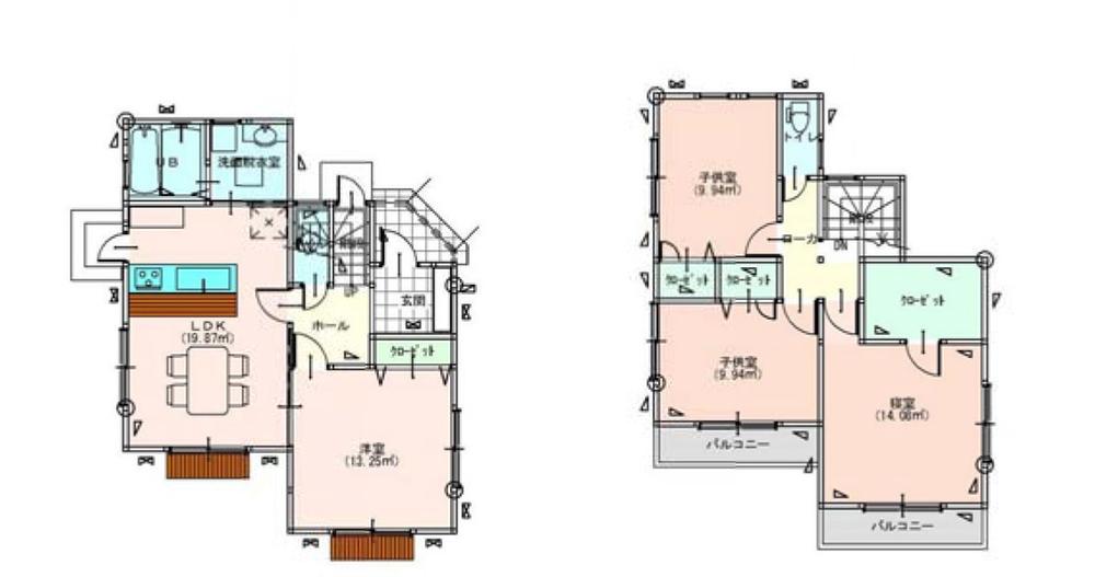
Floor plan間取り図  32,650,000 yen, 4LDK, Land area 175.81 sq m , Building area 100.19 sq m floor plan
3265万円、4LDK、土地面積175.81m2、建物面積100.19m2 間取り図
Livingリビング  Living (September 2013) Shooting
リビング(2013年9月)撮影
Bathroom浴室  Bathroom (September 2013) Shooting
浴室(2013年9月)撮影
Kitchenキッチン  Kitchen (September 2013) Shooting
キッチン(2013年9月)撮影
Non-living roomリビング以外の居室  Western-style (September 2013) Shooting
洋室(2013年9月)撮影
Entrance玄関  Entrance (September 2013) Shooting
玄関(2013年9月)撮影
Wash basin, toilet洗面台・洗面所  Washroom (September 2013) Shooting
洗面所(2013年9月)撮影
Toiletトイレ  Toilet (September 2013) Shooting
トイレ(2013年9月)撮影
Garden庭  Garden (September 2013) Shooting
庭(2013年9月)撮影
Parking lot駐車場  Parking (September 2013) Shooting
駐車場(2013年9月)撮影
Other introspectionその他内観  Walk-in closet (September 2013) Shooting
ウォークインクローゼット(2013年9月)撮影
View photos from the dwelling unit住戸からの眺望写真  View from local (September 2013) Shooting
現地からの眺望(2013年9月)撮影
Other localその他現地  Local (September 2013) Shooting
現地(2013年9月)撮影
Non-living roomリビング以外の居室  Indoor (September 2013) Shooting
室内(2013年9月)撮影
Wash basin, toilet洗面台・洗面所  Indoor (September 2013) Shooting
室内(2013年9月)撮影
Other introspectionその他内観  Indoor (September 2013) Shooting
室内(2013年9月)撮影
 Indoor (September 2013) Shooting
室内(2013年9月)撮影
Location
|