New Homes » Kanto » Kanagawa Prefecture » Atsugi
 
| | Atsugi City, Kanagawa Prefecture 神奈川県厚木市 |
| Odawara Line Odakyu "Hon-Atsugi" walk 22 minutes 小田急小田原線「本厚木」歩22分 |
| This is an introduction from the information net that want to live. Large-scale development is a subdivision. Clean streets a sense of unity is attractive. 住みたい情報ネットからのご紹介です。大型開発分譲地です。統一感のあるきれいな街並みが魅力です。 |
| House hunting in the city that want to live in ・ ・ ・ Please leave the information net that want to live. 住みたい街の家探しは・・・住みたい情報ネットにお任せください。 |
Features pickup 特徴ピックアップ | | System kitchen / Bathroom Dryer / All room storage / Shaping land / Face-to-face kitchen / Barrier-free / Bathroom 1 tsubo or more / 2-story / South balcony / City gas システムキッチン /浴室乾燥機 /全居室収納 /整形地 /対面式キッチン /バリアフリー /浴室1坪以上 /2階建 /南面バルコニー /都市ガス | Price 価格 | | 31,300,000 yen 3130万円 | Floor plan 間取り | | 2LDK 2LDK | Units sold 販売戸数 | | 1 units 1戸 | Total units 総戸数 | | 21 units 21戸 | Land area 土地面積 | | 100.1 sq m (registration) 100.1m2(登記) | Building area 建物面積 | | 94.4 sq m (measured) 94.4m2(実測) | Driveway burden-road 私道負担・道路 | | Nothing, North 4.5m width 無、北4.5m幅 | Completion date 完成時期(築年月) | | January 2014 2014年1月 | Address 住所 | | Atsugi City, Kanagawa Prefecture Tsumadaminami 1 神奈川県厚木市妻田南1 | Traffic 交通 | | Odawara Line Odakyu "Hon-Atsugi" walk 22 minutes Odawara Line Odakyu "Atsugi" walk 28 minutes Odawara Line Odakyu "Ebina" walk 49 minutes 小田急小田原線「本厚木」歩22分 小田急小田原線「厚木」歩28分 小田急小田原線「海老名」歩49分
| Related links 関連リンク | | [Related Sites of this company] 【この会社の関連サイト】 | Person in charge 担当者より | | The second distribution division personnel Hiroki Sato Age: 30 Daigyokai Experience: 8 years I at the time of the guidance, We always kept in mind the "family everyone's point of view.". It is also the father of my own two children, Because feels very meaningful family exchanges through the house. We will come now also not forget the "family eyes". 担当者第2流通事業部 佐藤弘樹年齢:30代業界経験:8年私はご案内の際に、常に「家族皆様の目線」を心掛けております。それは私自身が二児の父親でもあり、住宅を通じての家族交流を大変有意義に感じているからです。これからも「家族目線」を忘れずに参ります。 | Contact お問い合せ先 | | TEL: 0800-603-9093 [Toll free] mobile phone ・ Also available from PHS Caller ID is not notified Please contact the "saw SUUMO (Sumo)" If it does not lead, If the real estate company TEL:0800-603-9093【通話料無料】携帯電話・PHSからもご利用いただけます 発信者番号は通知されません 「SUUMO(スーモ)を見た」と問い合わせください つながらない方、不動産会社の方は
| Building coverage, floor area ratio 建ぺい率・容積率 | | 60% ・ 200% 60%・200% | Time residents 入居時期 | | Consultation 相談 | Land of the right form 土地の権利形態 | | Ownership 所有権 | Structure and method of construction 構造・工法 | | Wooden 2-story 木造2階建 | Use district 用途地域 | | One dwelling 1種住居 | Overview and notices その他概要・特記事項 | | The person in charge: the second Distribution Division Hiroki Sato, Facilities: Public Water Supply, This sewage, City gas, Building confirmation number: 04217, Parking: car space 担当者:第2流通事業部 佐藤弘樹、設備:公営水道、本下水、都市ガス、建築確認番号:04217、駐車場:カースペース | Company profile 会社概要 | | <Mediation> Governor of Tokyo (1) the first 090,169 No. live want information net (Ltd.) Sumitai headquarters Yubinbango194-0013 Machida, Tokyo Haramachida 1-1-3 high stone building the fourth floor <仲介>東京都知事(1)第090169号住みたい情報ネット(株)スミタイ本社〒194-0013 東京都町田市原町田1-1-3 ハイストーンビル4階 |
 Local appearance photo
現地外観写真
 Local photos, including front road
前面道路含む現地写真
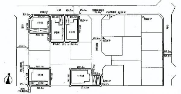
Floor plan間取り図  31,300,000 yen, 2LDK, Land area 100.1 sq m , Building area 94.4 sq m
3130万円、2LDK、土地面積100.1m2、建物面積94.4m2
 Local photos, including front road
前面道路含む現地写真
Other Environmental Photoその他環境写真  Hon-Atsugi until Station 1760m
本厚木駅前まで1760m
 Other local
その他現地
 Other
その他
 Hon-Atsugi until Station 1760m
本厚木駅前まで1760m
 Hon-Atsugi until Station 1760m
本厚木駅前まで1760m
 Hon-Atsugi until Station 1760m
本厚木駅前まで1760m
Location
|