New Homes » Kanto » Kanagawa Prefecture » Atsugi
 
| | Atsugi City, Kanagawa Prefecture 神奈川県厚木市 |
| Odawara Line Odakyu "Hon-Atsugi" 12 minutes Tsumada Ayumi Yakushi 5 minutes by bus 小田急小田原線「本厚木」バス12分妻田薬師歩5分 |
| Walk-in closet, Parking two Allowed, Yang per good, Flat terrainese-style room, All room storage, Washbasin with shower, Toilet 2 places, 2-story, Double-glazing, Warm water washing toilet seat, The window in the bathroom, Interface with a TV monitor ウォークインクロゼット、駐車2台可、陽当り良好、平坦地、和室、全居室収納、シャワー付洗面台、トイレ2ヶ所、2階建、複層ガラス、温水洗浄便座、浴室に窓、TVモニタ付インタ |
| Also there is a walk-in closet of peace who things a lot. 物がたくさんある方も安心のウォークインクローゼットがございます。 |
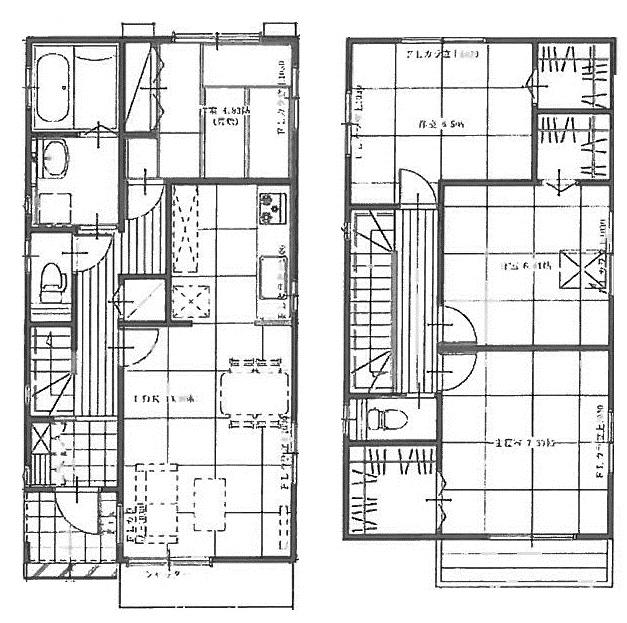
Features pickup 特徴ピックアップ | | Parking two Allowed / Yang per good / All room storage / Japanese-style room / Washbasin with shower / Toilet 2 places / 2-story / Double-glazing / Warm water washing toilet seat / The window in the bathroom / TV monitor interphone / Walk-in closet / Flat terrain 駐車2台可 /陽当り良好 /全居室収納 /和室 /シャワー付洗面台 /トイレ2ヶ所 /2階建 /複層ガラス /温水洗浄便座 /浴室に窓 /TVモニタ付インターホン /ウォークインクロゼット /平坦地 | Price 価格 | | 26,400,000 yen 2640万円 | Floor plan 間取り | | 4LDK 4LDK | Units sold 販売戸数 | | 1 units 1戸 | Total units 総戸数 | | 5 units 5戸 | Land area 土地面積 | | 109 sq m (32.97 square meters) 109m2(32.97坪) | Building area 建物面積 | | 98.4 sq m (29.76 tsubo) (measured) 98.4m2(29.76坪)(実測) | Driveway burden-road 私道負担・道路 | | Nothing 無 | Completion date 完成時期(築年月) | | February 2014 2014年2月 | Address 住所 | | Atsugi City, Kanagawa Prefecture Tsumadanishi 3 神奈川県厚木市妻田西3 | Traffic 交通 | | Odawara Line Odakyu "Hon-Atsugi" 12 minutes Tsumada Ayumi Yakushi 5 minutes by bus Odawara Line Odakyu "Hon-Atsugi" walk 38 minutes Odawara Line Odakyu "Atsugi" walk 47 minutes 小田急小田原線「本厚木」バス12分妻田薬師歩5分 小田急小田原線「本厚木」歩38分 小田急小田原線「厚木」歩47分
| Related links 関連リンク | | [Related Sites of this company] 【この会社の関連サイト】 | Person in charge 担当者より | | Personnel Nishimura Kengo Age: 30 Daigyokai experience: As you say "Thank you" in two years last to smile, It becomes a customer's point of view, We introduce you live to customers' demand. 担当者西村 健吾年齢:30代業界経験:2年最後に笑顔で「ありがとう」と言って頂けるように、お客様の立場になり、お客様の求めるお住まいをご紹介します。 | Contact お問い合せ先 | | TEL: 0800-603-9816 [Toll free] mobile phone ・ Also available from PHS Caller ID is not notified Please contact the "saw SUUMO (Sumo)" If it does not lead, If the real estate company TEL:0800-603-9816【通話料無料】携帯電話・PHSからもご利用いただけます 発信者番号は通知されません 「SUUMO(スーモ)を見た」と問い合わせください つながらない方、不動産会社の方は
| Building coverage, floor area ratio 建ぺい率・容積率 | | 60% ・ 200% 60%・200% | Time residents 入居時期 | | Consultation 相談 | Land of the right form 土地の権利形態 | | Ownership 所有権 | Structure and method of construction 構造・工法 | | Wooden 2-story 木造2階建 | Use district 用途地域 | | One middle and high 1種中高 | Other limitations その他制限事項 | | Regulations have by the Law for the Protection of Cultural Properties, Regulations have by the Landscape Act, Quasi-fire zones 文化財保護法による規制有、景観法による規制有、準防火地域 | Overview and notices その他概要・特記事項 | | Contact: Nishimura Kengo, Facilities: Public Water Supply, This sewage, Individual LPG, Building confirmation number: No. H25SHC115674, Parking: car space 担当者:西村 健吾、設備:公営水道、本下水、個別LPG、建築確認番号:第H25SHC115674号、駐車場:カースペース | Company profile 会社概要 | | <Mediation> Governor of Kanagawa Prefecture (1) No. 027366 (Corporation) All Japan Real Estate Association (Corporation) metropolitan area real estate Fair Trade Council member Ishii housing (Ltd.) Yubinbango243-0813 Atsugi City, Kanagawa Prefecture Tsumadahigashi 3-10-13 <仲介>神奈川県知事(1)第027366号(公社)全日本不動産協会会員 (公社)首都圏不動産公正取引協議会加盟石井ハウジング(株)〒243-0813 神奈川県厚木市妻田東3-10-13 |
Floor plan間取り図  26,400,000 yen, 4LDK, Land area 109 sq m , Building area 98.4 sq m
2640万円、4LDK、土地面積109m2、建物面積98.4m2
Local appearance photo現地外観写真  Local (11 May 2013) Shooting
現地(2013年11月)撮影
Local photos, including front road前面道路含む現地写真  Local (11 May 2013) Shooting
現地(2013年11月)撮影
Shopping centreショッピングセンター  802m to the Toys R Us store Atsugi
トイザらス厚木店まで802m
Supermarketスーパー  York Mart 420m to Atsugi Tsumada shop
ヨークマート厚木妻田店まで420m
 The ・ 809m until the combo Atsugi Tsumada shop
ザ・コンボ厚木妻田店まで809m
Home centerホームセンター  710m to Nitori Atsugi shop
ニトリ厚木店まで710m
Junior high school中学校  1311m to Atsugi Municipal Mutsuai Higashi Junior High School
厚木市立睦合東中学校まで1311m
Primary school小学校  487m to Atsugi Municipal Shimizu Elementary School
厚木市立清水小学校まで487m
Location
|