New Homes » Kanto » Kanagawa Prefecture » Ayase
 
| | Ayase City, Kanagawa Prefecture 神奈川県綾瀬市 |
| Sagami Railway Main Line "Sagamino" 12 minutes Ayase agricultural cooperatives before walk 2 minutes by bus 相鉄本線「さがみ野」バス12分綾瀬農協前歩2分 |
| The rest 1 building! ☆ Spacious LDK16 quires more ☆ All room 6 quires more ☆ ◆ Sunny! Entrance porch ・ Natural stone ・ Entrance mirror ◆ Kitchen hanging cupboard lift down 残り1棟です!☆広々LDK16帖以上☆全居室6帖以上☆◆日当たり良好!玄関ポーチ・天然石・玄関ミラー◆キッチン吊戸棚リフトダウン |
| Parking two Allowed, Facing south, System kitchen, Yang per good, All room storage, LDK15 tatami mats or moreese-style room, Washbasin with shower, Face-to-face kitchen, Toilet 2 places, Bathroom 1 tsubo or more, 2-story, South balcony, Warm water washing toilet seat, Underfloor Storage, TV monitor interphone, All room 6 tatami mats or more, Water filter 駐車2台可、南向き、システムキッチン、陽当り良好、全居室収納、LDK15畳以上、和室、シャワー付洗面台、対面式キッチン、トイレ2ヶ所、浴室1坪以上、2階建、南面バルコニー、温水洗浄便座、床下収納、TVモニタ付インターホン、全居室6畳以上、浄水器 |
Features pickup 特徴ピックアップ | | Parking two Allowed / Facing south / System kitchen / Yang per good / All room storage / LDK15 tatami mats or more / Japanese-style room / Washbasin with shower / Face-to-face kitchen / Toilet 2 places / Bathroom 1 tsubo or more / 2-story / South balcony / Warm water washing toilet seat / Underfloor Storage / TV monitor interphone / All room 6 tatami mats or more / Water filter 駐車2台可 /南向き /システムキッチン /陽当り良好 /全居室収納 /LDK15畳以上 /和室 /シャワー付洗面台 /対面式キッチン /トイレ2ヶ所 /浴室1坪以上 /2階建 /南面バルコニー /温水洗浄便座 /床下収納 /TVモニタ付インターホン /全居室6畳以上 /浄水器 | Price 価格 | | 26,800,000 yen 2680万円 | Floor plan 間取り | | 4LDK 4LDK | Units sold 販売戸数 | | 1 units 1戸 | Land area 土地面積 | | 115.04 sq m 115.04m2 | Building area 建物面積 | | 99.36 sq m 99.36m2 | Completion date 完成時期(築年月) | | November 2013 2013年11月 | Address 住所 | | Ayase City, Kanagawa Prefecture Fukaya 3 神奈川県綾瀬市深谷中3 | Traffic 交通 | | Sagami Railway Main Line "Sagamino" 12 minutes Ayase agricultural cooperatives before walk 2 minutes by bus 相鉄本線「さがみ野」バス12分綾瀬農協前歩2分
| Related links 関連リンク | | [Related Sites of this company] 【この会社の関連サイト】 | Person in charge 担当者より | | Rep Takenoshita In the 30's bright motto vigor: Masato age I am looking for a cordial sincerity rice to your satisfaction Property! Please feel free to contact us. 担当者竹之下 将人年齢:30代明るく元気をモットーに 誠心誠意真心込めてご満足頂ける物件をお探し致します!お気軽にご相談下さい。 | Contact お問い合せ先 | | TEL: 0800-602-4998 [Toll free] mobile phone ・ Also available from PHS Caller ID is not notified Please contact the "saw SUUMO (Sumo)" If it does not lead, If the real estate company TEL:0800-602-4998【通話料無料】携帯電話・PHSからもご利用いただけます 発信者番号は通知されません 「SUUMO(スーモ)を見た」と問い合わせください つながらない方、不動産会社の方は
| Time residents 入居時期 | | Consultation 相談 | Land of the right form 土地の権利形態 | | Ownership 所有権 | Use district 用途地域 | | One dwelling 1種住居 | Overview and notices その他概要・特記事項 | | Contact: Takenoshita Masato, Building confirmation number: first H25SBC- Make 01515Y No. other 担当者:竹之下 将人、建築確認番号:第H25SBC-確01515Y号 他 | Company profile 会社概要 | | <Mediation> Minister of Land, Infrastructure and Transport (1) the first 008,392 No. Century 21 Taise housing Corporation Atsugi headquarters Yubinbango243-0018 Atsugi City, Kanagawa Prefecture Nakamachi 4-16-6 <仲介>国土交通大臣(1)第008392号センチュリー21タイセーハウジング(株)厚木本社〒243-0018 神奈川県厚木市中町4-16-6 |
Local appearance photo現地外観写真  Local (December 2013) shooting ◎ good per yang ☆ ◎ outer wall using the thickness 37mm Asahi Kasei Hebel power board
現地(2013年12月)撮影◎陽当たり良好です☆◎外壁は厚さ37mm旭化成ヘーベルパワーボードを使用
Livingリビング  16 Pledge of leeway!
ゆとりの16帖です!
Kitchenキッチン  Artificial marble counter ・ With under-floor storage
人造大理石カウンター・床下収納付
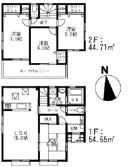
Floor plan間取り図  (5 Building), Price 26,800,000 yen, 4LDK, Land area 115.04 sq m , Building area 99.36 sq m
(5号棟)、価格2680万円、4LDK、土地面積115.04m2、建物面積99.36m2
Bathroom浴室  1 tsubo size ・ Barrier-free type ・ With dryer
1坪サイズ・バリアフリータイプ・乾燥機付
Non-living roomリビング以外の居室  Western style room
洋室
Entrance玄関  Entrance floor
玄関フロア
Receipt収納  Western-style closet
洋室クローゼット
Toiletトイレ  Bidet
ウォシュレット
Parking lot駐車場  Two is Allowed
2台可です
Balconyバルコニー  South roof balcony
南面ルーフバルコニー
Junior high school中学校  747m until Ayase City Ayase junior high school
綾瀬市立綾瀬中学校まで747m
 The entire compartment Figure
全体区画図
Non-living roomリビング以外の居室  Western style room
洋室
Receipt収納  Western-style closet
洋室クローゼット
Primary school小学校  598m until Ayase City Ayase Elementary School
綾瀬市立綾瀬小学校まで598m
Receipt収納  Shoe box
シューズボックス
Location
|