2013December
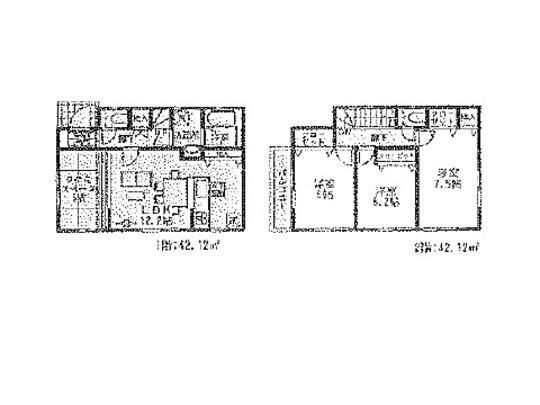
25,800,000 yen, 3LDK, 84.24 sq m
New Homes » Kanto » Kanagawa Prefecture » Ayase
 
| | Ayase City, Kanagawa Prefecture 神奈川県綾瀬市 |
| Sagami Railway Main Line "Kashiwadai" walk 19 minutes 相鉄本線「かしわ台」歩19分 |
Price 価格 | | 25,800,000 yen 2580万円 | Floor plan 間取り | | 3LDK 3LDK | Units sold 販売戸数 | | 1 units 1戸 | Land area 土地面積 | | 100.28 sq m (measured) 100.28m2(実測) | Building area 建物面積 | | 84.24 sq m (measured) 84.24m2(実測) | Driveway burden-road 私道負担・道路 | | Nothing 無 | Completion date 完成時期(築年月) | | December 2013 2013年12月 | Address 住所 | | Ayase City, Kanagawa Prefecture Teraonishi 3 神奈川県綾瀬市寺尾西3 | Traffic 交通 | | Sagami Railway Main Line "Kashiwadai" walk 19 minutes 相鉄本線「かしわ台」歩19分
| Contact お問い合せ先 | | TEL: 0800-805-6230 [Toll free] mobile phone ・ Also available from PHS Caller ID is not notified Please contact the "saw SUUMO (Sumo)" If it does not lead, If the real estate company TEL:0800-805-6230【通話料無料】携帯電話・PHSからもご利用いただけます 発信者番号は通知されません 「SUUMO(スーモ)を見た」と問い合わせください つながらない方、不動産会社の方は
| Building coverage, floor area ratio 建ぺい率・容積率 | | 60% ・ 200% 60%・200% | Time residents 入居時期 | | Consultation 相談 | Land of the right form 土地の権利形態 | | Ownership 所有権 | Structure and method of construction 構造・工法 | | Wooden 2-story 木造2階建 | Use district 用途地域 | | One middle and high 1種中高 | Overview and notices その他概要・特記事項 | | Facilities: Public Water Supply, This sewage, Individual LPG, Building confirmation number: No. 111687, Parking: car space 設備:公営水道、本下水、個別LPG、建築確認番号:111687号、駐車場:カースペース | Company profile 会社概要 | | <Mediation> Minister of Land, Infrastructure and Transport (3) The 006,183 No. housing information Museum Yamato shop Seongnam Construction (Ltd.) Yubinbango242-0012 Yamato-shi, Kanagawa Fukamihigashi 2-1-3 Jonan construction building <仲介>国土交通大臣(3)第006183号住宅情報館 大和店城南建設(株)〒242-0012 神奈川県大和市深見東2-1-3 城南建設ビル |
 Entrance
玄関
 Parking lot
駐車場
Local appearance photo現地外観写真  Building appearance
建物外観
Floor plan間取り図  25,800,000 yen, 3LDK, Land area 100.28 sq m , Building area 84.24 sq m floor plan
2580万円、3LDK、土地面積100.28m2、建物面積84.24m2 間取図
Local appearance photo現地外観写真  Building appearance
建物外観
 Building appearance
建物外観
Location
|