New Homes » Kanto » Kanagawa Prefecture » Chigasaki
 
| | Chigasaki, Kanagawa Prefecture 神奈川県茅ヶ崎市 |
| JR Tokaido Line "Chigasaki" walk 16 minutes JR東海道本線「茅ヶ崎」歩16分 |
| Newly built one detached! Limited Building 1! LDK15 Pledge! There is attic storage! House with solar power system! "Chigasaki" station walk 16 minutes! You can see the neighborhood of the model house. Motomura 4-13-28 car navigation system STE! 新築一戸建!限定1棟!LDK15帖!小屋裏収納あり!太陽光発電システム付住宅!「茅ヶ崎」駅徒歩16分!近隣のモデルハウスをご覧になれます。本村4-13-28カーナビSTE! |
| Newly built one detached! Limited Building 1! LDK15 Pledge! There is attic storage! House with solar power system! "Chigasaki" station walk 16 minutes! You can see the neighborhood of the model house. Contact Motomura ahead of us 4-13-28 car navigation system STE! 新築一戸建!限定1棟!LDK15帖!小屋裏収納あり!太陽光発電システム付住宅!「茅ヶ崎」駅徒歩16分!近隣のモデルハウスをご覧になれます。お問い合わせはお早目に本村4-13-28カーナビSTE! |
Features pickup 特徴ピックアップ | | Solar power system / Pre-ground survey / Year Available / 2 along the line more accessible / Super close / It is close to the city / System kitchen / Bathroom Dryer / Yang per good / All room storage / A quiet residential area / LDK15 tatami mats or more / Around traffic fewer / Starting station / Washbasin with shower / Wide balcony / Barrier-free / Toilet 2 places / Bathroom 1 tsubo or more / 2-story / South balcony / Double-glazing / Underfloor Storage / The window in the bathroom / TV monitor interphone / Ventilation good / All living room flooring / Water filter / City gas / Attic storage 太陽光発電システム /地盤調査済 /年内入居可 /2沿線以上利用可 /スーパーが近い /市街地が近い /システムキッチン /浴室乾燥機 /陽当り良好 /全居室収納 /閑静な住宅地 /LDK15畳以上 /周辺交通量少なめ /始発駅 /シャワー付洗面台 /ワイドバルコニー /バリアフリー /トイレ2ヶ所 /浴室1坪以上 /2階建 /南面バルコニー /複層ガラス /床下収納 /浴室に窓 /TVモニタ付インターホン /通風良好 /全居室フローリング /浄水器 /都市ガス /屋根裏収納 | Price 価格 | | 29,800,000 yen 2980万円 | Floor plan 間取り | | 3LDK 3LDK | Units sold 販売戸数 | | 1 units 1戸 | Total units 総戸数 | | 1 units 1戸 | Land area 土地面積 | | 95.22 sq m (28.80 tsubo) (Registration) 95.22m2(28.80坪)(登記) | Building area 建物面積 | | 81 sq m (24.50 tsubo) (Registration) 81m2(24.50坪)(登記) | Driveway burden-road 私道負担・道路 | | Nothing 無 | Completion date 完成時期(築年月) | | December 2013 2013年12月 | Address 住所 | | Chigasaki, Kanagawa Prefecture Motomura 4 神奈川県茅ヶ崎市本村4 | Traffic 交通 | | JR Tokaido Line "Chigasaki" walk 16 minutes JR Sagami Line "Chigasaki" walk 16 minutes JR東海道本線「茅ヶ崎」歩16分 JR相模線「茅ヶ崎」歩16分
| Person in charge 担当者より | | The person in charge Inoue Hee 予門 Age: 30 Daigyokai experience: I was born and raised in the 10 years Kugenumakaigan. Also I think that if you can tell honestly including Shonan good place and a bad place of. seriously, We are honestly to help customers. First, please feel free to contact. 担当者井上 喜予門年齢:30代業界経験:10年鵠沼海岸で生まれ育ちました。 湘南の良い所と悪い所も含め正直にお伝え出来ればと思っています。 真剣に、正直にお客様のお手伝いをさせて頂いております。 まずはお気軽にご連絡下さい。 | Contact お問い合せ先 | | TEL: 0800-603-0246 [Toll free] mobile phone ・ Also available from PHS Caller ID is not notified Please contact the "saw SUUMO (Sumo)" If it does not lead, If the real estate company TEL:0800-603-0246【通話料無料】携帯電話・PHSからもご利用いただけます 発信者番号は通知されません 「SUUMO(スーモ)を見た」と問い合わせください つながらない方、不動産会社の方は
| Building coverage, floor area ratio 建ぺい率・容積率 | | 60% ・ 200% 60%・200% | Time residents 入居時期 | | Consultation 相談 | Land of the right form 土地の権利形態 | | Ownership 所有権 | Structure and method of construction 構造・工法 | | Wooden 2-story 木造2階建 | Use district 用途地域 | | One middle and high 1種中高 | Other limitations その他制限事項 | | Regulations have by the Law for the Protection of Cultural Properties, Regulations have by the Landscape Act, Quasi-fire zones, Second kind altitude district 文化財保護法による規制有、景観法による規制有、準防火地域、第2種高度地区 | Overview and notices その他概要・特記事項 | | Contact: Inoue Hee 予門, Facilities: Public Water Supply, This sewage, City gas, Building confirmation number: H25SBC- Make 00229M No., Parking: car space 担当者:井上 喜予門、設備:公営水道、本下水、都市ガス、建築確認番号:H25SBC-確00229M号、駐車場:カースペース | Company profile 会社概要 | | <Mediation> Governor of Kanagawa Prefecture (10) No. 009580 (one company) Property distribution management Association (Corporation) metropolitan area real estate Fair Trade Council member Meiji Estate Co., housing Plaza store Yubinbango253-0044 Chigasaki, Kanagawa Prefecture Shinsakae-cho 8-7 <仲介>神奈川県知事(10)第009580号(一社)不動産流通経営協会会員 (公社)首都圏不動産公正取引協議会加盟明治地所(株)ハウジングプラザ店〒253-0044 神奈川県茅ヶ崎市新栄町8-7 |
Local appearance photo現地外観写真  Local (12 May 2013) Shooting
現地(2013年12月)撮影
Kitchenキッチン  Local (112 2013) Shooting
現地(2013年112月)撮影
Livingリビング  Local (12 May 2013) Shooting
現地(2013年12月)撮影
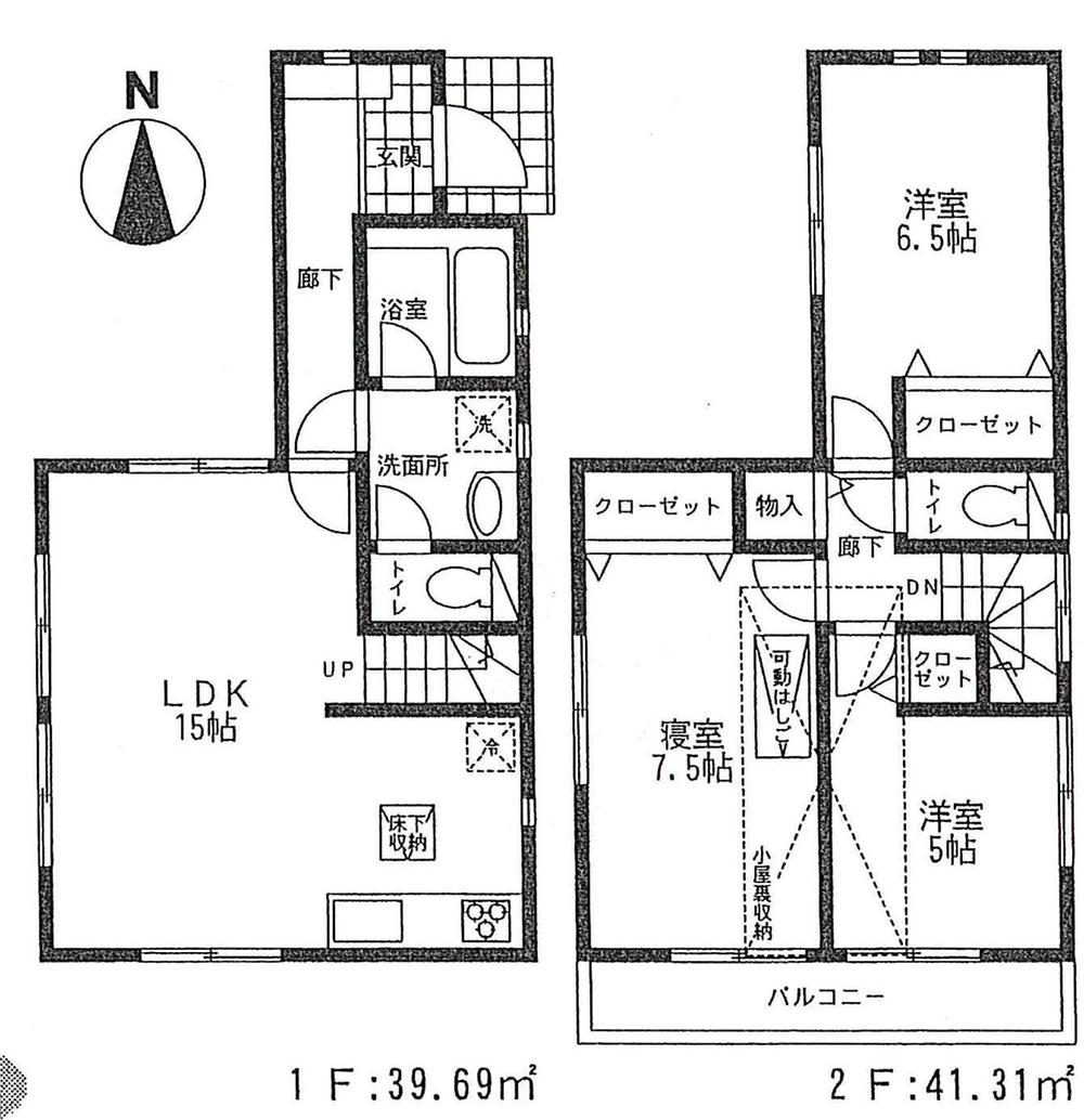
Floor plan間取り図  29,800,000 yen, 3LDK, Land area 95.22 sq m , Building area 81 sq m
2980万円、3LDK、土地面積95.22m2、建物面積81m2
Local appearance photo現地外観写真  Local (12 May 2013) Shooting
現地(2013年12月)撮影
Non-living roomリビング以外の居室  Local (12 May 2013) Shooting
現地(2013年12月)撮影
Wash basin, toilet洗面台・洗面所  Local (12 May 2013) Shooting
現地(2013年12月)撮影
Garden庭  Local (12 May 2013) Shooting
現地(2013年12月)撮影
Compartment figure区画図  29,800,000 yen, 3LDK, Land area 95.22 sq m , Building area 81 sq m
2980万円、3LDK、土地面積95.22m2、建物面積81m2
Local appearance photo現地外観写真  Local (12 May 2013) Shooting
現地(2013年12月)撮影
Non-living roomリビング以外の居室  Indoor (12 May 2013) Shooting
室内(2013年12月)撮影
Location
|