New Homes » Kanto » Kanagawa Prefecture » Ebina
 
| | Ebina, Kanagawa Prefecture 神奈川県海老名市 |
| Odawara Line Odakyu "Ebina" walk 22 minutes 小田急小田原線「海老名」歩22分 |
| It is a quiet residential area the second floor will be the living room! ! 閑静な住宅街です2階がリビングになります!! |
| Corresponding to the flat-35S, 2 along the line more accessible, Facing south, System kitchen, Bathroom Dryer, All room storage, A quiet residential area, LDK15 tatami mats or more, Face-to-face kitchen, Toilet 2 places, Bathroom 1 tsubo or more, 2-story, Double-glazing, Warm water washing toilet seat, Underfloor Storage, TV monitor interphone, IH cooking heater, Dish washing dryer, Living stairs, Floor heating フラット35Sに対応、2沿線以上利用可、南向き、システムキッチン、浴室乾燥機、全居室収納、閑静な住宅地、LDK15畳以上、対面式キッチン、トイレ2ヶ所、浴室1坪以上、2階建、複層ガラス、温水洗浄便座、床下収納、TVモニタ付インターホン、IHクッキングヒーター、食器洗乾燥機、リビング階段、床暖房 |
Features pickup 特徴ピックアップ | | Corresponding to the flat-35S / 2 along the line more accessible / Facing south / System kitchen / Bathroom Dryer / All room storage / A quiet residential area / LDK15 tatami mats or more / Face-to-face kitchen / Toilet 2 places / Bathroom 1 tsubo or more / 2-story / Double-glazing / Warm water washing toilet seat / Underfloor Storage / TV monitor interphone / IH cooking heater / Dish washing dryer / Living stairs / Floor heating フラット35Sに対応 /2沿線以上利用可 /南向き /システムキッチン /浴室乾燥機 /全居室収納 /閑静な住宅地 /LDK15畳以上 /対面式キッチン /トイレ2ヶ所 /浴室1坪以上 /2階建 /複層ガラス /温水洗浄便座 /床下収納 /TVモニタ付インターホン /IHクッキングヒーター /食器洗乾燥機 /リビング階段 /床暖房 | Price 価格 | | 29,800,000 yen 2980万円 | Floor plan 間取り | | 3LDK + S (storeroom) 3LDK+S(納戸) | Units sold 販売戸数 | | 1 units 1戸 | Total units 総戸数 | | 2 units 2戸 | Land area 土地面積 | | 98.06 sq m (registration) 98.06m2(登記) | Building area 建物面積 | | 101.64 sq m (registration), Among the first floor garage 8.7 sq m 101.64m2(登記)、うち1階車庫8.7m2 | Driveway burden-road 私道負担・道路 | | Nothing, East 4.5m width, South 4.5m width 無、東4.5m幅、南4.5m幅 | Completion date 完成時期(築年月) | | July 2013 2013年7月 | Address 住所 | | Ebina, Kanagawa Prefecture Otani North 3 神奈川県海老名市大谷北3 | Traffic 交通 | | Odawara Line Odakyu "Ebina" walk 22 minutes Odawara Line Odakyu "Atsugi" walk 28 minutes JR Sagami line "Shake" walk 47 minutes 小田急小田原線「海老名」歩22分 小田急小田原線「厚木」歩28分 JR相模線「社家」歩47分
| Related links 関連リンク | | [Related Sites of this company] 【この会社の関連サイト】 | Contact お問い合せ先 | | TEL: 0800-808-3967 [Toll free] mobile phone ・ Also available from PHS Caller ID is not notified Please contact the "saw SUUMO (Sumo)" If it does not lead, If the real estate company TEL:0800-808-3967【通話料無料】携帯電話・PHSからもご利用いただけます 発信者番号は通知されません 「SUUMO(スーモ)を見た」と問い合わせください つながらない方、不動産会社の方は
| Building coverage, floor area ratio 建ぺい率・容積率 | | 60% ・ 200% 60%・200% | Time residents 入居時期 | | Immediate available 即入居可 | Land of the right form 土地の権利形態 | | Ownership 所有権 | Structure and method of construction 構造・工法 | | Wooden 2-story (2 × 4 construction method) 木造2階建(2×4工法) | Use district 用途地域 | | One dwelling 1種住居 | Other limitations その他制限事項 | | Quasi-fire zones 準防火地域 | Overview and notices その他概要・特記事項 | | Facilities: Public Water Supply, This sewage, City gas, Parking: Garage 設備:公営水道、本下水、都市ガス、駐車場:車庫 | Company profile 会社概要 | | <Mediation> Governor of Kanagawa Prefecture (1) No. 028600 Frontenac Home Co., Ltd. Yubinbango243-0405 Ebina, Kanagawa Prefecture Kokubuminami 3-4-14 <仲介>神奈川県知事(1)第028600号ナックホーム(株)〒243-0405 神奈川県海老名市国分南3-4-14 |
 Local appearance photo
現地外観写真
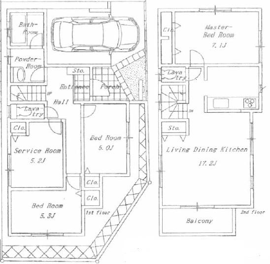
Floor plan間取り図  29,800,000 yen, 3LDK + S (storeroom), Land area 98.06 sq m , Building area 101.64 sq m
2980万円、3LDK+S(納戸)、土地面積98.06m2、建物面積101.64m2
 Living
リビング
 Living
リビング
 Bathroom
浴室
 Kitchen
キッチン
 Non-living room
リビング以外の居室
 Entrance
玄関
 Wash basin, toilet
洗面台・洗面所
Receipt収納  Service room storage
サービスルーム収納
 Toilet
トイレ
 Parking lot
駐車場
 Balcony
バルコニー
Other introspectionその他内観  First floor service room
1階サービスルーム
 View photos from the dwelling unit
住戸からの眺望写真
 Non-living room
リビング以外の居室
 Entrance
玄関
 Receipt
収納
 Other introspection
その他内観
 Entrance
玄関
Location
|