New Homes » Kanto » Kanagawa Prefecture » Fujisawa
 
| | Fujisawa, Kanagawa Prefecture 神奈川県藤沢市 |
| JR Tokaido Line "Fujisawa" walk 8 minutes JR東海道本線「藤沢」歩8分 |
| Newly built one detached! All four buildings! "Fujisawa" station 8-minute walk! South road 4LDK Yes! House with solar power system! The building is imposing complete. Contact is ahead of us! 新築一戸建!全4棟!「藤沢」駅徒歩8分!南道路4LDK有!太陽光発電システム付住宅!建物堂々完成です。お問い合わせはお早目に! |
| Newly built one detached! All four buildings! "Fujisawa" station 8-minute walk! South road 4LDK Yes! House with solar power system! The building is imposing complete. Contact is ahead of us! 新築一戸建!全4棟!「藤沢」駅徒歩8分!南道路4LDK有!太陽光発電システム付住宅!建物堂々完成です。お問い合わせはお早目に! |
Features pickup 特徴ピックアップ | | 2 along the line more accessible / Facing south / System kitchen / Bathroom Dryer / Yang per good / All room storage / Flat to the station / LDK15 tatami mats or more / Japanese-style room / Starting station / Face-to-face kitchen / Wide balcony / Toilet 2 places / Bathroom 1 tsubo or more / 2-story / South balcony / Double-glazing / Underfloor Storage / The window in the bathroom / TV monitor interphone / Ventilation good / All living room flooring / Water filter / City gas / Storeroom 2沿線以上利用可 /南向き /システムキッチン /浴室乾燥機 /陽当り良好 /全居室収納 /駅まで平坦 /LDK15畳以上 /和室 /始発駅 /対面式キッチン /ワイドバルコニー /トイレ2ヶ所 /浴室1坪以上 /2階建 /南面バルコニー /複層ガラス /床下収納 /浴室に窓 /TVモニタ付インターホン /通風良好 /全居室フローリング /浄水器 /都市ガス /納戸 | Property name 物件名 | | Oga 11 大鋸第11 | Price 価格 | | 38,800,000 yen ~ 39,800,000 yen 3880万円 ~ 3980万円 | Floor plan 間取り | | 3LDK + S (storeroom) ~ 4LDK 3LDK+S(納戸) ~ 4LDK | Units sold 販売戸数 | | 2 units 2戸 | Total units 総戸数 | | 4 units 4戸 | Land area 土地面積 | | 87.47 sq m ~ 91.52 sq m (26.45 tsubo ~ 27.68 tsubo) (Registration) 87.47m2 ~ 91.52m2(26.45坪 ~ 27.68坪)(登記) | Building area 建物面積 | | 87.26 sq m ~ 88.53 sq m (26.39 tsubo ~ 26.78 tsubo) (Registration) 87.26m2 ~ 88.53m2(26.39坪 ~ 26.78坪)(登記) | Completion date 完成時期(築年月) | | 2013 late October 2013年10月下旬 | Address 住所 | | Fujisawa, Kanagawa Prefecture Oga 2-4-20 神奈川県藤沢市大鋸2-4-20 | Traffic 交通 | | JR Tokaido Line "Fujisawa" walk 8 minutes Enoshima Odakyu "Fujisawa" walk 8 minutes Enoshima Electric Railway line "Fujisawa" walk 8 minutes JR東海道本線「藤沢」歩8分 小田急江ノ島線「藤沢」歩8分 江ノ島電鉄線「藤沢」歩8分
| Person in charge 担当者より | | The person in charge Inoue Hee 予門 Age: 30 Daigyokai experience: I was born and raised in the 10 years Kugenumakaigan. Also I think that if you can tell honestly including Shonan good place and a bad place of. seriously, We are honestly to help customers. First, please feel free to contact. 担当者井上 喜予門年齢:30代業界経験:10年鵠沼海岸で生まれ育ちました。 湘南の良い所と悪い所も含め正直にお伝え出来ればと思っています。 真剣に、正直にお客様のお手伝いをさせて頂いております。 まずはお気軽にご連絡下さい。 | Contact お問い合せ先 | | TEL: 0800-603-0246 [Toll free] mobile phone ・ Also available from PHS Caller ID is not notified Please contact the "saw SUUMO (Sumo)" If it does not lead, If the real estate company TEL:0800-603-0246【通話料無料】携帯電話・PHSからもご利用いただけます 発信者番号は通知されません 「SUUMO(スーモ)を見た」と問い合わせください つながらない方、不動産会社の方は
| Building coverage, floor area ratio 建ぺい率・容積率 | | Kenpei rate: 60%, Volume ratio: 200% 建ペい率:60%、容積率:200% | Time residents 入居時期 | | Consultation 相談 | Land of the right form 土地の権利形態 | | Ownership 所有権 | Structure and method of construction 構造・工法 | | Wooden 2-story 木造2階建 | Use district 用途地域 | | One dwelling 1種住居 | Land category 地目 | | Residential land 宅地 | Other limitations その他制限事項 | | Regulations have by the Landscape Act, Quasi-fire zones 景観法による規制有、準防火地域 | Overview and notices その他概要・特記事項 | | Contact: Inoue Hee 予門, Building confirmation number: H25SBC- sure 01263H issue other 担当者:井上 喜予門、建築確認番号:H25SBC-確01263H号他 | Company profile 会社概要 | | <Mediation> Governor of Kanagawa Prefecture (10) No. 009580 (one company) Property distribution management Association (Corporation) metropolitan area real estate Fair Trade Council member Meiji Estate Co., housing Plaza store Yubinbango253-0044 Chigasaki, Kanagawa Prefecture Shinsakae-cho 8-7 <仲介>神奈川県知事(10)第009580号(一社)不動産流通経営協会会員 (公社)首都圏不動産公正取引協議会加盟明治地所(株)ハウジングプラザ店〒253-0044 神奈川県茅ヶ崎市新栄町8-7 |
Local appearance photo現地外観写真  Local (10 May 2013) Shooting
現地(2013年10月)撮影
Local photos, including front road前面道路含む現地写真  Local (10 May 2013) Shooting
現地(2013年10月)撮影
Kitchenキッチン  Local (10 May 2013) Shooting
現地(2013年10月)撮影
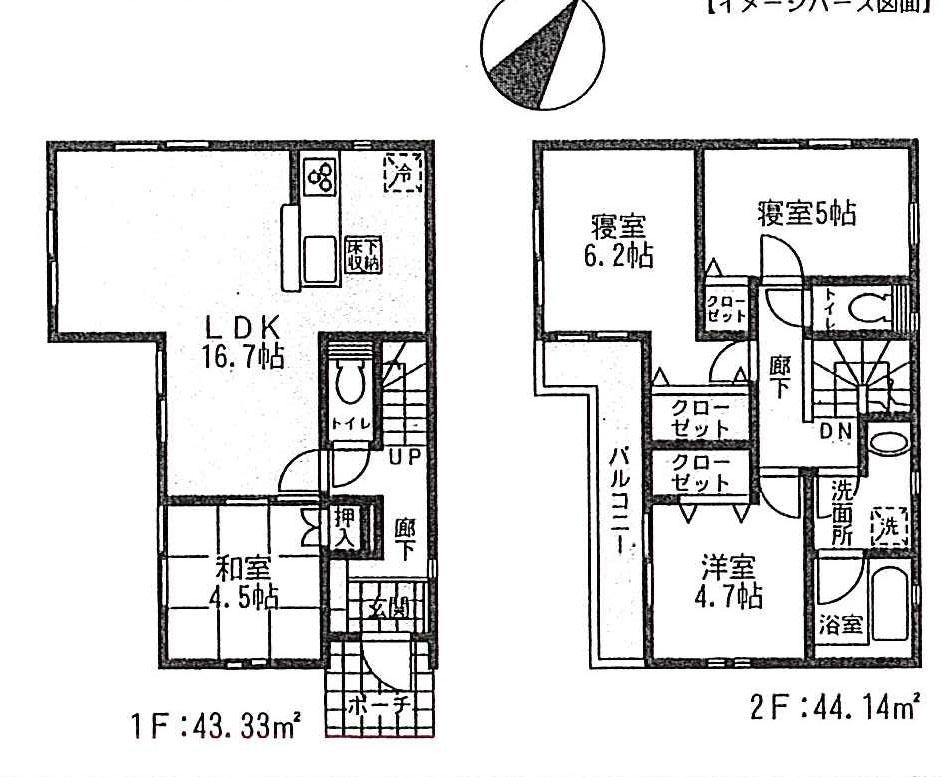
Floor plan間取り図  ((1) Building), Price 41,800,000 yen, 4LDK, Land area 87.26 sq m , Building area 91.52 sq m
((1)号棟)、価格4180万円、4LDK、土地面積87.26m2、建物面積91.52m2
Local appearance photo現地外観写真  Local (10 May 2013) Shooting
現地(2013年10月)撮影
Livingリビング  Local (10 May 2013) Shooting
現地(2013年10月)撮影
Bathroom浴室  Indoor (10 May 2013) Shooting
室内(2013年10月)撮影
Non-living roomリビング以外の居室  Local (10 May 2013) Shooting
現地(2013年10月)撮影
Entrance玄関  Local (10 May 2013) Shooting
現地(2013年10月)撮影
Wash basin, toilet洗面台・洗面所  Indoor (10 May 2013) Shooting
室内(2013年10月)撮影
Toiletトイレ  Indoor (10 May 2013) Shooting
室内(2013年10月)撮影
Local photos, including front road前面道路含む現地写真  Local (10 May 2013) Shooting
現地(2013年10月)撮影
Parking lot駐車場  Local (10 May 2013) Shooting
現地(2013年10月)撮影
Balconyバルコニー  Local (10 May 2013) Shooting
現地(2013年10月)撮影
View photos from the dwelling unit住戸からの眺望写真  View from the site (October 2013) Shooting
現地からの眺望(2013年10月)撮影
Otherその他  Sectioning view
区割図
Floor plan間取り図  ((2) Building), Price 38,800,000 yen, 3LDK+S, Land area 83.91 sq m , Building area 91.52 sq m
((2)号棟)、価格3880万円、3LDK+S、土地面積83.91m2、建物面積91.52m2
Livingリビング  Indoor (10 May 2013) Shooting
室内(2013年10月)撮影
Non-living roomリビング以外の居室  Indoor (10 May 2013) Shooting
室内(2013年10月)撮影
Floor plan間取り図  ((3) Building), Price 39,800,000 yen, 3LDK+S, Land area 88.6 sq m , Building area 95.58 sq m
((3)号棟)、価格3980万円、3LDK+S、土地面積88.6m2、建物面積95.58m2
Livingリビング  Indoor (10 May 2013) Shooting
室内(2013年10月)撮影
 Floor plan
間取り図
Location
|