New Homes » Kanto » Kanagawa Prefecture » Fujisawa
 
| | Fujisawa, Kanagawa Prefecture 神奈川県藤沢市 |
| Enoshima Electric Railway line "Kugenuma" walk 1 minute 江ノ島電鉄線「鵠沼」歩1分 |
| Newly built one detached! Limited two buildings! "Kugenuma" station 1 minute walk! Solar power system mortgage LDK18 quires more 4LDK! The building is possible preview. Contact is ahead of us! 新築一戸建!限定2棟!「鵠沼」駅徒歩1分!太陽光発電システム付住宅LDK18帖以上の4LDK!建物内覧可能です。お問い合わせはお早目に! |
| Newly built one detached! Limited two buildings! "Kugenuma" station 1 minute walk! Solar power system mortgage LDK18 quires more 4LDK! The building is possible preview. Contact is ahead of us! 新築一戸建!限定2棟!「鵠沼」駅徒歩1分!太陽光発電システム付住宅LDK18帖以上の4LDK!建物内覧可能です。お問い合わせはお早目に! |
Features pickup 特徴ピックアップ | | Solar power system / Pre-ground survey / Parking two Allowed / LDK18 tatami mats or more / System kitchen / Bathroom Dryer / Yang per good / All room storage / Flat to the station / A quiet residential area / Around traffic fewer / Japanese-style room / Face-to-face kitchen / Toilet 2 places / Bathroom 1 tsubo or more / 2-story / South balcony / Double-glazing / Underfloor Storage / The window in the bathroom / TV monitor interphone / Leafy residential area / Ventilation good / All living room flooring / Water filter / City gas / A large gap between the neighboring house / Flat terrain 太陽光発電システム /地盤調査済 /駐車2台可 /LDK18畳以上 /システムキッチン /浴室乾燥機 /陽当り良好 /全居室収納 /駅まで平坦 /閑静な住宅地 /周辺交通量少なめ /和室 /対面式キッチン /トイレ2ヶ所 /浴室1坪以上 /2階建 /南面バルコニー /複層ガラス /床下収納 /浴室に窓 /TVモニタ付インターホン /緑豊かな住宅地 /通風良好 /全居室フローリング /浄水器 /都市ガス /隣家との間隔が大きい /平坦地 | Price 価格 | | 41,800,000 yen ~ 42,500,000 yen 4180万円 ~ 4250万円 | Floor plan 間取り | | 4LDK 4LDK | Units sold 販売戸数 | | 2 units 2戸 | Total units 総戸数 | | 2 units 2戸 | Land area 土地面積 | | 126.06 sq m ~ 137.19 sq m (38.13 tsubo ~ 41.49 tsubo) (Registration) 126.06m2 ~ 137.19m2(38.13坪 ~ 41.49坪)(登記) | Building area 建物面積 | | 90.72 sq m ~ 95.57 sq m (27.44 tsubo ~ 28.90 tsubo) (Registration) 90.72m2 ~ 95.57m2(27.44坪 ~ 28.90坪)(登記) | Completion date 完成時期(築年月) | | 2013 end of November 2013年11月末 | Address 住所 | | Fujisawa, Kanagawa Prefecture Kugenumafujigaya 2-9 神奈川県藤沢市鵠沼藤が谷2-9 | Traffic 交通 | | Enoshima Electric Railway line "Kugenuma" walk 1 minute 江ノ島電鉄線「鵠沼」歩1分
| Person in charge 担当者より | | The person in charge Inoue Hee 予門 Age: 30 Daigyokai experience: I was born and raised in the 10 years Kugenumakaigan. Also I think that if you can tell honestly including Shonan good place and a bad place of. seriously, We are honestly to help customers. First, please feel free to contact. 担当者井上 喜予門年齢:30代業界経験:10年鵠沼海岸で生まれ育ちました。 湘南の良い所と悪い所も含め正直にお伝え出来ればと思っています。 真剣に、正直にお客様のお手伝いをさせて頂いております。 まずはお気軽にご連絡下さい。 | Contact お問い合せ先 | | TEL: 0800-603-0246 [Toll free] mobile phone ・ Also available from PHS Caller ID is not notified Please contact the "saw SUUMO (Sumo)" If it does not lead, If the real estate company TEL:0800-603-0246【通話料無料】携帯電話・PHSからもご利用いただけます 発信者番号は通知されません 「SUUMO(スーモ)を見た」と問い合わせください つながらない方、不動産会社の方は
| Building coverage, floor area ratio 建ぺい率・容積率 | | Kenpei rate: 40%, Volume ratio: 80% 建ペい率:40%、容積率:80% | Time residents 入居時期 | | Consultation 相談 | Land of the right form 土地の権利形態 | | Ownership 所有権 | Structure and method of construction 構造・工法 | | Wooden 2-story 木造2階建 | Use district 用途地域 | | One low-rise 1種低層 | Land category 地目 | | Residential land 宅地 | Other limitations その他制限事項 | | Regulations have by the Landscape Act, Quasi-fire zones, Scenic zone, Some agreement passage, Setback Yes, Greening Yes 景観法による規制有、準防火地域、風致地区、一部協定通路、壁面後退有、緑化有 | Overview and notices その他概要・特記事項 | | Contact: Inoue Hee 予門, Building confirmation number: H25SBC- Make 00097M No. other, ※ Agreement Location: 1 Building 15.24 sq m Building 2 19.46 sq m there 担当者:井上 喜予門、建築確認番号:H25SBC-確00097M号他、※協定地:1号棟 15.24m2 2号棟 19.46m2有り | Company profile 会社概要 | | <Mediation> Governor of Kanagawa Prefecture (10) No. 009580 (one company) Property distribution management Association (Corporation) metropolitan area real estate Fair Trade Council member Meiji Estate Co., housing Plaza store Yubinbango253-0044 Chigasaki, Kanagawa Prefecture Shinsakae-cho 8-7 <仲介>神奈川県知事(10)第009580号(一社)不動産流通経営協会会員 (公社)首都圏不動産公正取引協議会加盟明治地所(株)ハウジングプラザ店〒253-0044 神奈川県茅ヶ崎市新栄町8-7 |
Streets around周辺の街並み  "Kugenuma" station 1 minute walk! Contact is ahead of us
「鵠沼」駅徒歩1分!お問い合わせはお早目に
Local appearance photo現地外観写真  Local (11 May 2013) Shooting
現地(2013年11月)撮影
Otherその他  "Kugenuma" station 1 minute walk!
「鵠沼」駅徒歩1分!
Kitchenキッチン  Local (11 May 2013) Shooting
現地(2013年11月)撮影
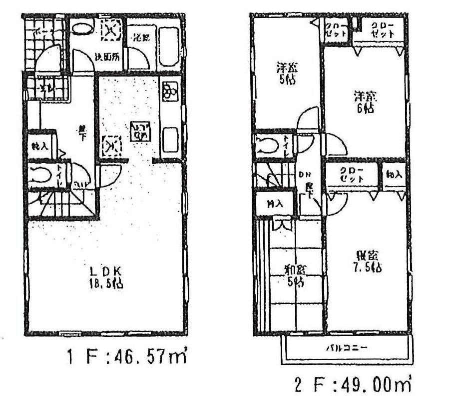
Floor plan間取り図  ((1) Building), Price 41,800,000 yen, 4LDK, Land area 137.19 sq m , Building area 95.57 sq m
((1)号棟)、価格4180万円、4LDK、土地面積137.19m2、建物面積95.57m2
 Local appearance photo
現地外観写真
Livingリビング  Local (11 May 2013) Shooting
現地(2013年11月)撮影
Bathroom浴室  Indoor (11 May 2013) Shooting
室内(2013年11月)撮影
Kitchenキッチン  Local (11 May 2013) Shooting
現地(2013年11月)撮影
Non-living roomリビング以外の居室  Indoor (11 May 2013) Shooting
室内(2013年11月)撮影
Wash basin, toilet洗面台・洗面所  Indoor (11 May 2013) Shooting
室内(2013年11月)撮影
Receipt収納  Local (11 May 2013) Shooting
現地(2013年11月)撮影
Toiletトイレ  Indoor (11 May 2013) Shooting
室内(2013年11月)撮影
Balconyバルコニー  Local (11 May 2013) Shooting
現地(2013年11月)撮影
Other introspectionその他内観  View from the site (November 2013) Shooting
現地からの眺望(2013年11月)撮影
 The entire compartment Figure
全体区画図
Floor plan間取り図  ((2) Building), Price 42,500,000 yen, 4LDK, Land area 126.06 sq m , Building area 90.72 sq m
((2)号棟)、価格4250万円、4LDK、土地面積126.06m2、建物面積90.72m2
Local appearance photo現地外観写真  Local (11 May 2013) Shooting
現地(2013年11月)撮影
Livingリビング  Local (11 May 2013) Shooting
現地(2013年11月)撮影
Kitchenキッチン  Indoor (11 May 2013) Shooting
室内(2013年11月)撮影
Non-living roomリビング以外の居室  Indoor (11 May 2013) Shooting
室内(2013年11月)撮影
Local appearance photo現地外観写真  Local (11 May 2013) Shooting
現地(2013年11月)撮影
Location
|