New Homes » Kanto » Kanagawa Prefecture » Fujisawa
 
| | Fujisawa, Kanagawa Prefecture 神奈川県藤沢市 |
| Enoshima Odakyu "good conduct" walk 12 minutes 小田急江ノ島線「善行」歩12分 |
Features pickup 特徴ピックアップ | | Parking two Allowed / Super close / Facing south / System kitchen / Bathroom Dryer / Siemens south road / 2-story / Double-glazing / Warm water washing toilet seat / Underfloor Storage / TV monitor interphone / All living room flooring / Water filter / City gas 駐車2台可 /スーパーが近い /南向き /システムキッチン /浴室乾燥機 /南側道路面す /2階建 /複層ガラス /温水洗浄便座 /床下収納 /TVモニタ付インターホン /全居室フローリング /浄水器 /都市ガス | Price 価格 | | 30,800,000 yen 3080万円 | Floor plan 間取り | | 3LDK 3LDK | Units sold 販売戸数 | | 1 units 1戸 | Land area 土地面積 | | 86.64 sq m (registration) 86.64m2(登記) | Building area 建物面積 | | 69.25 sq m (registration) 69.25m2(登記) | Driveway burden-road 私道負担・道路 | | Nothing, South 4m width 無、南4m幅 | Completion date 完成時期(築年月) | | March 2014 2014年3月 | Address 住所 | | Fujisawa, Kanagawa Prefecture beneficence 5 神奈川県藤沢市善行5 | Traffic 交通 | | Enoshima Odakyu "good conduct" walk 12 minutes Enoshima Odakyu "Mutsuai Nihon before" walk 25 minutes Enoshima Odakyu "Fujisawa Honmachi" walk 35 minutes 小田急江ノ島線「善行」歩12分 小田急江ノ島線「六会日大前」歩25分 小田急江ノ島線「藤沢本町」歩35分
| Contact お問い合せ先 | | TEL: 0800-601-4403 [Toll free] mobile phone ・ Also available from PHS Caller ID is not notified Please contact the "saw SUUMO (Sumo)" If it does not lead, If the real estate company TEL:0800-601-4403【通話料無料】携帯電話・PHSからもご利用いただけます 発信者番号は通知されません 「SUUMO(スーモ)を見た」と問い合わせください つながらない方、不動産会社の方は
| Building coverage, floor area ratio 建ぺい率・容積率 | | Fifty percent ・ 80% 50%・80% | Time residents 入居時期 | | Consultation 相談 | Land of the right form 土地の権利形態 | | Ownership 所有権 | Structure and method of construction 構造・工法 | | Wooden 2-story 木造2階建 | Use district 用途地域 | | One low-rise 1種低層 | Overview and notices その他概要・特記事項 | | Facilities: Public Water Supply, This sewage, City gas, Building confirmation number: No. 設備:公営水道、本下水、都市ガス、建築確認番号:第 | Company profile 会社概要 | | <Mediation> Governor of Kanagawa Prefecture (10) No. 010799 Thin Home Co., Ltd. Fujisawa shop Yubinbango251-0052 Fujisawa Fujisawa, Kanagawa Prefecture 520 <仲介>神奈川県知事(10)第010799号ウスイホーム(株)藤沢店〒251-0052 神奈川県藤沢市藤沢520 |
 Rendering (appearance)
完成予想図(外観)
 Other
その他
 Rendering (introspection)
完成予想図(内観)
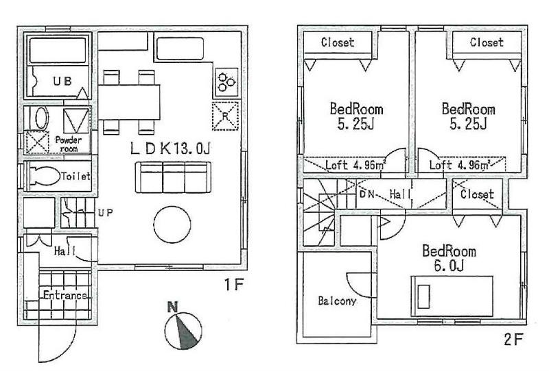
Floor plan間取り図  30,800,000 yen, 3LDK, Land area 86.64 sq m , Building area 69.25 sq m
3080万円、3LDK、土地面積86.64m2、建物面積69.25m2
 Same specifications photos (living)
同仕様写真(リビング)
 Same specifications photo (bathroom)
同仕様写真(浴室)
 Same specifications photo (kitchen)
同仕様写真(キッチン)
 Rendering (introspection)
完成予想図(内観)
 Rendering (introspection)
完成予想図(内観)
Location
|