|
|
Fujisawa, Kanagawa Prefecture
神奈川県藤沢市
|
|
Enoshima Odakyu "Mutsuai Nihon before" walk 2 minutes
小田急江ノ島線「六会日大前」歩2分
|
|
Solar power generation systems equipped with housing. With commuting life convenient 2-minute walk station. It is per yang. 2 car parking Allowed car. Flat 35S use
太陽光発電システム搭載住宅。駅徒歩2分に付通勤生活便利。陽当りです。車2台分駐車可。フラット35S利用
|
|
With shopping convenient to about 300m to York Mart. Kameino about up to elementary school 450m. About 700m up in Mutsuai
ヨークマートまで約300mに付買物便利。亀井野小学校まで約450m。六会中まで約700m
|
Features pickup 特徴ピックアップ | | Parking two Allowed / System kitchen / Bathroom Dryer / LDK15 tatami mats or more / Or more before road 6m / Washbasin with shower / 2-story / High speed Internet correspondence / Warm water washing toilet seat / Underfloor Storage / TV monitor interphone / Southwestward 駐車2台可 /システムキッチン /浴室乾燥機 /LDK15畳以上 /前道6m以上 /シャワー付洗面台 /2階建 /高速ネット対応 /温水洗浄便座 /床下収納 /TVモニタ付インターホン /南西向き |
Price 価格 | | 31,800,000 yen 3180万円 |
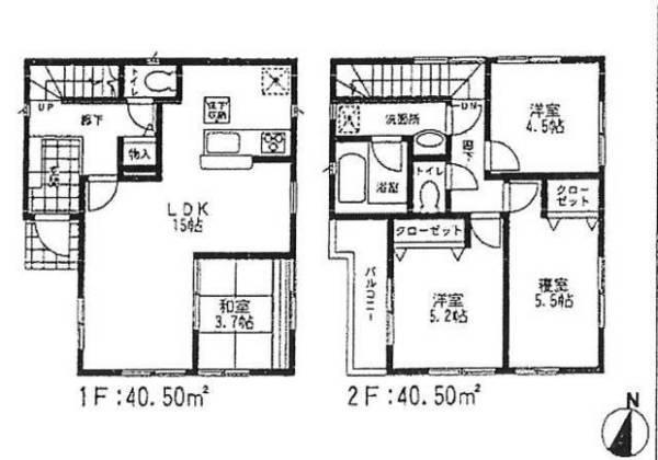
Floor plan 間取り | | 3LDK + S (storeroom) 3LDK+S(納戸) |
Units sold 販売戸数 | | 1 units 1戸 |
Land area 土地面積 | | 100.26 sq m (registration) 100.26m2(登記) |
Building area 建物面積 | | 81 sq m 81m2 |
Driveway burden-road 私道負担・道路 | | Nothing, Southwest 7.9m width 無、南西7.9m幅 |
Completion date 完成時期(築年月) | | December 2013 2013年12月 |
Address 住所 | | Fujisawa, Kanagawa Prefecture Kameino 2 神奈川県藤沢市亀井野2 |
Traffic 交通 | | Enoshima Odakyu "Mutsuai Nihon before" walk 2 minutes 小田急江ノ島線「六会日大前」歩2分
|
Related links 関連リンク | | [Related Sites of this company] 【この会社の関連サイト】 |
Contact お問い合せ先 | | TEL: 0800-603-3667 [Toll free] mobile phone ・ Also available from PHS Caller ID is not notified Please contact the "saw SUUMO (Sumo)" If it does not lead, If the real estate company TEL:0800-603-3667【通話料無料】携帯電話・PHSからもご利用いただけます 発信者番号は通知されません 「SUUMO(スーモ)を見た」と問い合わせください つながらない方、不動産会社の方は
|
Building coverage, floor area ratio 建ぺい率・容積率 | | 60% ・ 200% 60%・200% |
Time residents 入居時期 | | Consultation 相談 |
Land of the right form 土地の権利形態 | | Ownership 所有権 |
Structure and method of construction 構造・工法 | | Wooden 2-story 木造2階建 |
Use district 用途地域 | | One dwelling 1種住居 |
Other limitations その他制限事項 | | Organize Code: 742-02, 整理コード:742-02、 |
Overview and notices その他概要・特記事項 | | Facilities: This sewage, Building confirmation number: Architecture confirmed 設備:本下水、建築確認番号:建築確認済 |
Company profile 会社概要 | | <Mediation> Kanagawa Governor (2) No. 025536 (the company), Kanagawa Prefecture Building Lots and Buildings Transaction Business Association (Corporation) metropolitan area real estate Fair Trade Council member Century 21 brokerage Plaza Co., Ltd. Yubinbango252-0804 Fujisawa, Kanagawa Prefecture Shonandai 1-4-2 Pinosubiru fifth floor <仲介>神奈川県知事(2)第025536号(社)神奈川県宅地建物取引業協会会員 (公社)首都圏不動産公正取引協議会加盟センチュリー21仲介プラザ(株)〒252-0804 神奈川県藤沢市湘南台1-4-2 ピノスビル5階 |