New Homes » Kanto » Kanagawa Prefecture » Hadano
 
| | Kanagawa Prefecture Hadano 神奈川県秦野市 |
| Odawara Line Odakyu "Shibusawa" 15 minutes Ogisawa step 5 minutes by bus 小田急小田原線「渋沢」バス15分扇沢歩5分 |
| ☆ Northwest corner lot ☆ ◆ Happy garden spacious 4m ensure! ◆ You can also gardening ◆ Easy two possible parking! LDK south-facing day is good ☆北西角地☆◆嬉しい庭先広々4m確保!◆ガーデニングもできます ◆楽々2台駐車可能!LDK南向き日当り良好です |
| Parking two Allowed, Super close, Facing south, System kitchen, Bathroom Dryer, Yang per good, All room storage, Corner lotese-style room, Washbasin with shower, Face-to-face kitchen, Security enhancement, Wide balcony, Toilet 2 places, 2-story, South balcony, Double-glazing, Warm water washing toilet seat, Nantei, Underfloor Storage, The window in the bathroom, TV monitor interphone, Water filter 駐車2台可、スーパーが近い、南向き、システムキッチン、浴室乾燥機、陽当り良好、全居室収納、角地、和室、シャワー付洗面台、対面式キッチン、セキュリティ充実、ワイドバルコニー、トイレ2ヶ所、2階建、南面バルコニー、複層ガラス、温水洗浄便座、南庭、床下収納、浴室に窓、TVモニタ付インターホン、浄水器 |
Features pickup 特徴ピックアップ | | Parking two Allowed / Super close / Facing south / System kitchen / Bathroom Dryer / Yang per good / All room storage / Corner lot / Japanese-style room / Washbasin with shower / Face-to-face kitchen / Security enhancement / Wide balcony / Toilet 2 places / 2-story / South balcony / Double-glazing / Warm water washing toilet seat / Nantei / Underfloor Storage / The window in the bathroom / TV monitor interphone / Water filter 駐車2台可 /スーパーが近い /南向き /システムキッチン /浴室乾燥機 /陽当り良好 /全居室収納 /角地 /和室 /シャワー付洗面台 /対面式キッチン /セキュリティ充実 /ワイドバルコニー /トイレ2ヶ所 /2階建 /南面バルコニー /複層ガラス /温水洗浄便座 /南庭 /床下収納 /浴室に窓 /TVモニタ付インターホン /浄水器 | Price 価格 | | 24,800,000 yen 2480万円 | Floor plan 間取り | | 4LDK 4LDK | Units sold 販売戸数 | | 1 units 1戸 | Land area 土地面積 | | 147.93 sq m 147.93m2 | Building area 建物面積 | | 92.34 sq m 92.34m2 | Driveway burden-road 私道負担・道路 | | Nothing 無 | Completion date 完成時期(築年月) | | February 2014 2014年2月 | Address 住所 | | Kanagawa Prefecture Hadano Nishitawara 神奈川県秦野市西田原 | Traffic 交通 | | Odawara Line Odakyu "Shibusawa" 15 minutes Ogisawa step 5 minutes by bus 小田急小田原線「渋沢」バス15分扇沢歩5分
| Related links 関連リンク | | [Related Sites of this company] 【この会社の関連サイト】 | Person in charge 担当者より | | Rep Sugimoto Ryoji age: we are a looking for properties delight customers with suggestions that unlike the 30's other real estate agent. Please leave. 担当者杉本 良二年齢:30代他の不動産屋と違ったご提案でお客様に喜んで頂ける物件探しをしています。おまかせ下さい。 | Contact お問い合せ先 | | TEL: 0800-602-4998 [Toll free] mobile phone ・ Also available from PHS Caller ID is not notified Please contact the "saw SUUMO (Sumo)" If it does not lead, If the real estate company TEL:0800-602-4998【通話料無料】携帯電話・PHSからもご利用いただけます 発信者番号は通知されません 「SUUMO(スーモ)を見た」と問い合わせください つながらない方、不動産会社の方は
| Time residents 入居時期 | | Consultation 相談 | Land of the right form 土地の権利形態 | | Ownership 所有権 | Structure and method of construction 構造・工法 | | Wooden 2-story 木造2階建 | Other limitations その他制限事項 | | Shade limit Yes 日影制限有 | Overview and notices その他概要・特記事項 | | Contact: Sugimoto Ryoji, Building confirmation number: No. H25SHC118623 担当者:杉本 良二、建築確認番号:第H25SHC118623号 | Company profile 会社概要 | | <Mediation> Minister of Land, Infrastructure and Transport (1) the first 008,392 No. Century 21 Taise housing Corporation Atsugi headquarters Yubinbango243-0018 Atsugi City, Kanagawa Prefecture Nakamachi 4-16-6 <仲介>国土交通大臣(1)第008392号センチュリー21タイセーハウジング(株)厚木本社〒243-0018 神奈川県厚木市中町4-16-6 |
Local appearance photo現地外観写真  Local (December 2013) shooting ◎ is 44 square meters of land room ☆ ◎ garden spacious 4m ensure
現地(2013年12月)撮影◎土地ゆとりの44坪です☆◎庭先広々4m確保
Local photos, including front road前面道路含む現地写真  Northwest corner lot Car space is two Allowed!
北西角地 カースペース2台可です!
Same specifications photos (living)同仕様写真(リビング)  Example of construction It is a popular face-to-face kitchen!
施工例 人気の対面キッチンです!
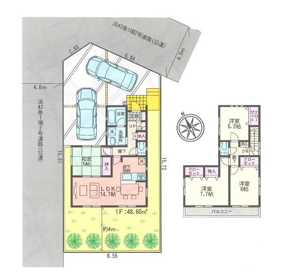
Floor plan間取り図  24,800,000 yen, 4LDK, Land area 147.93 sq m , Building area 92.34 sq m
2480万円、4LDK、土地面積147.93m2、建物面積92.34m2
 Local appearance photo
現地外観写真
Same specifications photo (bathroom)同仕様写真(浴室)  Example of construction
施工例
Same specifications photo (kitchen)同仕様写真(キッチン)  Example of construction
施工例
 Local photos, including front road
前面道路含む現地写真
Convenience storeコンビニ  921m to FamilyMart Suzuki Hadano Nishitawara shop
ファミリーマート鈴木秦野西田原店まで921m
Location
|