New Homes » Kanto » Kanagawa Prefecture » Hiratsuka
 
| | Hiratsuka, Kanagawa Prefecture 神奈川県平塚市 |
| JR Tokaido Line "Hiratsuka" walk 20 minutes JR東海道本線「平塚」歩20分 |
| Open feeling good every corner lot. Protect your car with built-in garage. 角地につき開放感良好。ビルトインガレージで愛車を守ります。 |
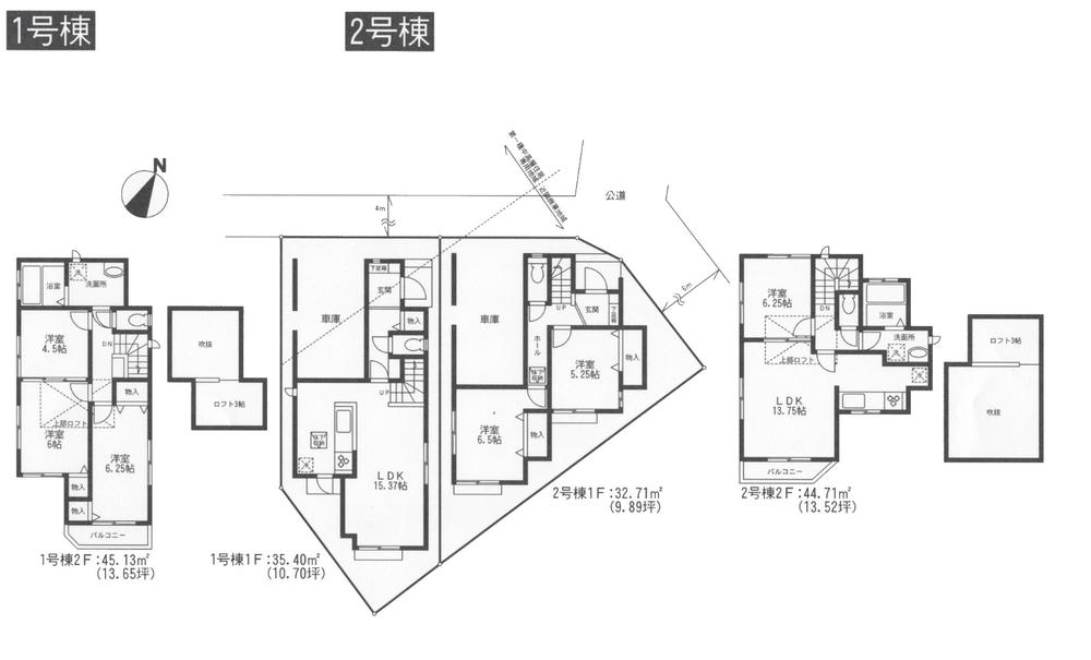
Features pickup 特徴ピックアップ | | System kitchen / Corner lot / Toilet 2 places / 2-story / TV monitor interphone / Built garage システムキッチン /角地 /トイレ2ヶ所 /2階建 /TVモニタ付インターホン /ビルトガレージ | Price 価格 | | 22,800,000 yen 2280万円 | Floor plan 間取り | | 3LDK 3LDK | Units sold 販売戸数 | | 1 units 1戸 | Total units 総戸数 | | 2 units 2戸 | Land area 土地面積 | | 78.24 sq m 78.24m2 | Building area 建物面積 | | 77.42 sq m 77.42m2 | Driveway burden-road 私道負担・道路 | | Nothing, Northwest 4m width, Northeast 6m width 無、北西4m幅、北東6m幅 | Completion date 完成時期(築年月) | | March 2013 2013年3月 | Address 住所 | | Hiratsuka, Kanagawa Prefecture Hiratsuka 5 神奈川県平塚市平塚5 | Traffic 交通 | | JR Tokaido Line "Hiratsuka" walk 20 minutes JR東海道本線「平塚」歩20分
| Related links 関連リンク | | [Related Sites of this company] 【この会社の関連サイト】 | Contact お問い合せ先 | | (Yes) nest TEL: 0800-603-2752 [Toll free] mobile phone ・ Also available from PHS Caller ID is not notified Please contact the "saw SUUMO (Sumo)" If it does not lead, If the real estate company (有)ネストTEL:0800-603-2752【通話料無料】携帯電話・PHSからもご利用いただけます 発信者番号は通知されません 「SUUMO(スーモ)を見た」と問い合わせください つながらない方、不動産会社の方は
| Building coverage, floor area ratio 建ぺい率・容積率 | | 60% ・ 160% 60%・160% | Time residents 入居時期 | | Consultation 相談 | Land of the right form 土地の権利形態 | | Ownership 所有権 | Structure and method of construction 構造・工法 | | Wooden 2-story 木造2階建 | Use district 用途地域 | | Residential, One middle and high 近隣商業、1種中高 | Other limitations その他制限事項 | | Height district, Quasi-fire zones 高度地区、準防火地域 | Overview and notices その他概要・特記事項 | | Facilities: Public Water Supply, This sewage, Individual LPG, Building confirmation number: HPA-12-05597-1 設備:公営水道、本下水、個別LPG、建築確認番号:HPA-12-05597-1 | Company profile 会社概要 | | <Mediation> Governor of Kanagawa Prefecture (3) No. 023355 (with) nest Yubinbango254-0063 Hiratsuka, Kanagawa Prefecture Suwa-cho, 14-44 <仲介>神奈川県知事(3)第023355号(有)ネスト〒254-0063 神奈川県平塚市諏訪町14-44 |
Floor plan間取り図  22,800,000 yen, 3LDK, Land area 78.24 sq m , Building area 77.42 sq m
2280万円、3LDK、土地面積78.24m2、建物面積77.42m2
 Local appearance photo
現地外観写真
Supermarketスーパー  615m until Shimamura store Nakazato shop
しまむらストアー中里店まで615m
Convenience storeコンビニ  Three F 394m until Hiratsuka 5-chome
スリーエフ平塚5丁目店まで394m
Drug storeドラッグストア  Create es ・ 869m until Dee Hiratsuka Sakuragaoka shop
クリエイトエス・ディー平塚桜ケ丘店まで869m
Home centerホームセンター  326m to Royal Home Center Shonan Oiso shop
ロイヤルホームセンター湘南大磯店まで326m
 Yamada Denki Tecc Land until Kamihiratsuka shop 1046m
ヤマダ電機テックランド上平塚店まで1046m
Primary school小学校  1010m until Hiratsuka Municipal Fujimi Elementary School
平塚市立富士見小学校まで1010m
Location
|