2013August
20.8 million yen, 4LDK, 93.77 sq m
New Homes » Kanto » Kanagawa Prefecture » Hiratsuka
 
| | Hiratsuka, Kanagawa Prefecture 神奈川県平塚市 |
| JR Tokaido Line "Hiratsuka" 15 minutes Ayumi Nagakubo 1 minute bus JR東海道本線「平塚」バス15分長久保歩1分 |
| About a 1-minute walk to the bus stop. バス停まで徒歩約1分。 |
Features pickup 特徴ピックアップ | | Parking two Allowed / System kitchen / Washbasin with shower / Face-to-face kitchen / Toilet 2 places / 2-story / South balcony / Double-glazing / Warm water washing toilet seat / TV monitor interphone 駐車2台可 /システムキッチン /シャワー付洗面台 /対面式キッチン /トイレ2ヶ所 /2階建 /南面バルコニー /複層ガラス /温水洗浄便座 /TVモニタ付インターホン | Price 価格 | | 20.8 million yen 2080万円 | Floor plan 間取り | | 4LDK 4LDK | Units sold 販売戸数 | | 1 units 1戸 | Land area 土地面積 | | 125.76 sq m 125.76m2 | Building area 建物面積 | | 93.77 sq m 93.77m2 | Driveway burden-road 私道負担・道路 | | Nothing, North 9.4m width 無、北9.4m幅 | Completion date 完成時期(築年月) | | August 2013 2013年8月 | Address 住所 | | Hiratsuka, Kanagawa Prefecture Guzo 神奈川県平塚市公所 | Traffic 交通 | | JR Tokaido Line "Hiratsuka" 15 minutes Ayumi Nagakubo 1 minute bus JR東海道本線「平塚」バス15分長久保歩1分
| Related links 関連リンク | | [Related Sites of this company] 【この会社の関連サイト】 | Contact お問い合せ先 | | (Yes) nest TEL: 0800-603-2752 [Toll free] mobile phone ・ Also available from PHS Caller ID is not notified Please contact the "saw SUUMO (Sumo)" If it does not lead, If the real estate company (有)ネストTEL:0800-603-2752【通話料無料】携帯電話・PHSからもご利用いただけます 発信者番号は通知されません 「SUUMO(スーモ)を見た」と問い合わせください つながらない方、不動産会社の方は
| Building coverage, floor area ratio 建ぺい率・容積率 | | Fifty percent ・ 80% 50%・80% | Time residents 入居時期 | | Consultation 相談 | Land of the right form 土地の権利形態 | | Ownership 所有権 | Structure and method of construction 構造・工法 | | Wooden 2-story 木造2階建 | Use district 用途地域 | | One low-rise 1種低層 | Overview and notices その他概要・特記事項 | | Facilities: Public Water Supply, This sewage, Individual LPG, Building confirmation number: HPA-13-02615-1, Parking: car space 設備:公営水道、本下水、個別LPG、建築確認番号:HPA-13-02615-1、駐車場:カースペース | Company profile 会社概要 | | <Mediation> Governor of Kanagawa Prefecture (3) No. 023355 (with) nest Yubinbango254-0063 Hiratsuka, Kanagawa Prefecture Suwa-cho, 14-44 <仲介>神奈川県知事(3)第023355号(有)ネスト〒254-0063 神奈川県平塚市諏訪町14-44 |
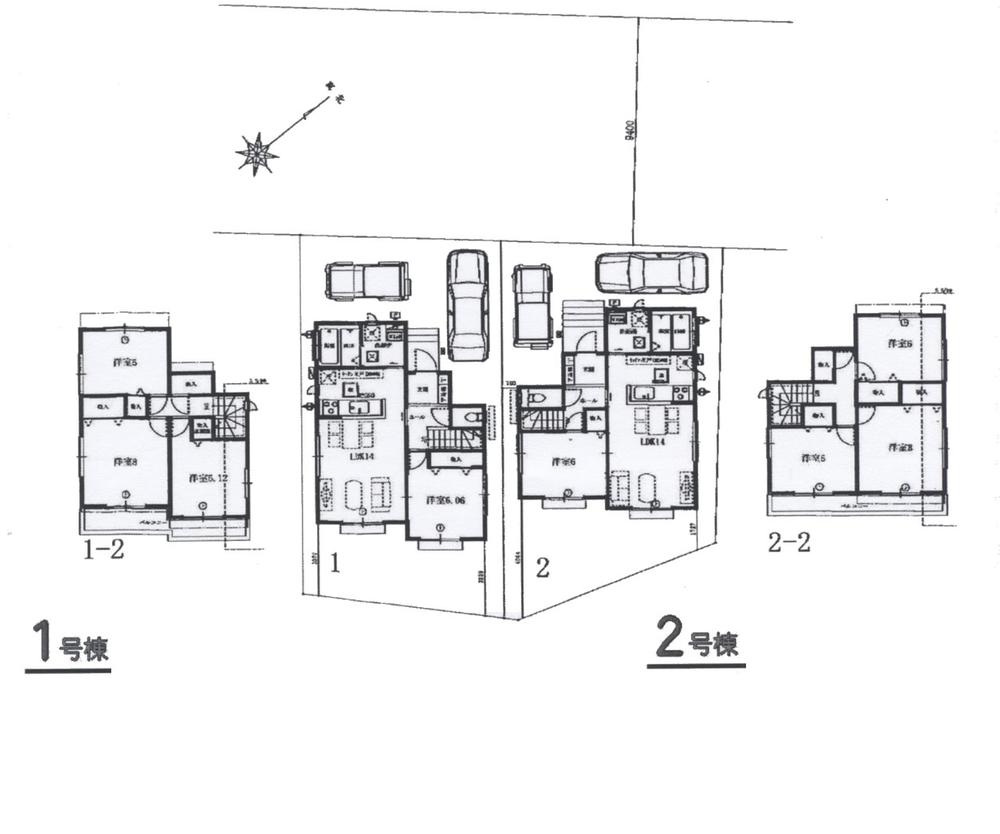
Floor plan間取り図  20.8 million yen, 4LDK, Land area 125.76 sq m , Building area 93.77 sq m
2080万円、4LDK、土地面積125.76m2、建物面積93.77m2
 Local appearance photo
現地外観写真
Supermarketスーパー  Ropia Shonan 1112m grace until the hill Store
ロピア湘南めぐみが丘店まで1112m
Convenience storeコンビニ  632m FamilyMart Shonan grace until the hill Store
ファミリーマート湘南めぐみが丘店まで632m
Junior high school中学校  653m until Hiratsuka Municipal Asahiryou junior high school
平塚市立旭陵中学校まで653m
Primary school小学校  1900m to Asahi Elementary School
旭小学校まで1900m
Location
|