New Homes » Kanto » Kanagawa Prefecture » Hiratsuka
 
| | Hiratsuka, Kanagawa Prefecture 神奈川県平塚市 |
| JR Tokaido Line "Hiratsuka" bus 13 minutes chests walk 2 minutes JR東海道本線「平塚」バス13分長持歩2分 |
| November 11, price change! Newly built one detached! The remaining 1 buildings. Two car space! 4LDK! Imposing completed! Anytime you can visit. Contact is ahead of us! 11月11日価格変更!新築一戸建!残り1棟。カースペース2台!4LDK!堂々完成!いつでも見学可能です。お問い合わせはお早目に! |
| November 11, price change! Newly built one detached! The remaining 1 buildings. Two car space! 4LDK! Imposing completed! Anytime you can visit. Contact is ahead of us! 11月11日価格変更!新築一戸建!残り1棟。カースペース2台!4LDK!堂々完成!いつでも見学可能です。お問い合わせはお早目に! |
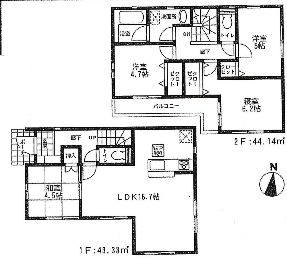
Features pickup 特徴ピックアップ | | Solar power system / Pre-ground survey / Parking two Allowed / Riverside / System kitchen / Bathroom Dryer / Yang per good / All room storage / LDK15 tatami mats or more / Or more before road 6m / Japanese-style room / Washbasin with shower / Face-to-face kitchen / Wide balcony / Barrier-free / Toilet 2 places / Bathroom 1 tsubo or more / 2-story / South balcony / Double-glazing / Underfloor Storage / The window in the bathroom / TV monitor interphone / Ventilation good / All living room flooring / Water filter 太陽光発電システム /地盤調査済 /駐車2台可 /リバーサイド /システムキッチン /浴室乾燥機 /陽当り良好 /全居室収納 /LDK15畳以上 /前道6m以上 /和室 /シャワー付洗面台 /対面式キッチン /ワイドバルコニー /バリアフリー /トイレ2ヶ所 /浴室1坪以上 /2階建 /南面バルコニー /複層ガラス /床下収納 /浴室に窓 /TVモニタ付インターホン /通風良好 /全居室フローリング /浄水器 | Price 価格 | | 20.5 million yen 2050万円 | Floor plan 間取り | | 4LDK 4LDK | Units sold 販売戸数 | | 1 units 1戸 | Total units 総戸数 | | 2 units 2戸 | Land area 土地面積 | | 104.92 sq m (31.73 tsubo) (Registration) 104.92m2(31.73坪)(登記) | Building area 建物面積 | | 87.47 sq m (26.45 tsubo) (Registration) 87.47m2(26.45坪)(登記) | Completion date 完成時期(築年月) | | 2013 late October 2013年10月下旬 | Address 住所 | | Hiratsuka, Kanagawa Prefecture chests 224-9 神奈川県平塚市長持224‐9 | Traffic 交通 | | JR Tokaido Line "Hiratsuka" bus 13 minutes chests walk 2 minutes JR東海道本線「平塚」バス13分長持歩2分
| Person in charge 担当者より | | The person in charge Inoue Hee 予門 Age: 30 Daigyokai experience: I was born and raised in the 10 years Kugenumakaigan. Also I think that if you can tell honestly including Shonan good place and a bad place of. seriously, We are honestly to help customers. First, please feel free to contact. 担当者井上 喜予門年齢:30代業界経験:10年鵠沼海岸で生まれ育ちました。 湘南の良い所と悪い所も含め正直にお伝え出来ればと思っています。 真剣に、正直にお客様のお手伝いをさせて頂いております。 まずはお気軽にご連絡下さい。 | Contact お問い合せ先 | | TEL: 0800-603-0246 [Toll free] mobile phone ・ Also available from PHS Caller ID is not notified Please contact the "saw SUUMO (Sumo)" If it does not lead, If the real estate company TEL:0800-603-0246【通話料無料】携帯電話・PHSからもご利用いただけます 発信者番号は通知されません 「SUUMO(スーモ)を見た」と問い合わせください つながらない方、不動産会社の方は
| Building coverage, floor area ratio 建ぺい率・容積率 | | Kenpei rate: 60%, Volume ratio: 200% 建ペい率:60%、容積率:200% | Time residents 入居時期 | | Consultation 相談 | Land of the right form 土地の権利形態 | | Ownership 所有権 | Structure and method of construction 構造・工法 | | Wooden 2-story 木造2階建 | Use district 用途地域 | | One middle and high 1種中高 | Land category 地目 | | Residential land 宅地 | Overview and notices その他概要・特記事項 | | Contact: Inoue Hee 予門, Building confirmation number: H25SHC107940 issue other 担当者:井上 喜予門、建築確認番号:H25SHC107940号他 | Company profile 会社概要 | | <Mediation> Governor of Kanagawa Prefecture (10) No. 009580 (one company) Property distribution management Association (Corporation) metropolitan area real estate Fair Trade Council member Meiji Estate Co., housing Plaza store Yubinbango253-0044 Chigasaki, Kanagawa Prefecture Shinsakae-cho 8-7 <仲介>神奈川県知事(10)第009580号(一社)不動産流通経営協会会員 (公社)首都圏不動産公正取引協議会加盟明治地所(株)ハウジングプラザ店〒253-0044 神奈川県茅ヶ崎市新栄町8-7 |
Local appearance photo現地外観写真  Local (10 May 2013) Shooting
現地(2013年10月)撮影
Kitchenキッチン  Local (10 May 2013) Shooting
現地(2013年10月)撮影
Livingリビング  Local (10 May 2013) Shooting
現地(2013年10月)撮影
Local appearance photo現地外観写真  Local (10 May 2013) Shooting
現地(2013年10月)撮影
Livingリビング  Local (10 May 2013) Shooting
現地(2013年10月)撮影
Bathroom浴室  Indoor (10 May 2013) Shooting
室内(2013年10月)撮影
Kitchenキッチン  Indoor (10 May 2013) Shooting
室内(2013年10月)撮影
Non-living roomリビング以外の居室  Local (10 May 2013) Shooting
現地(2013年10月)撮影
Wash basin, toilet洗面台・洗面所  Indoor (10 May 2013) Shooting
室内(2013年10月)撮影
Toiletトイレ  Indoor (10 May 2013) Shooting
室内(2013年10月)撮影
Balconyバルコニー  Local (10 May 2013) Shooting
現地(2013年10月)撮影
Otherその他  Floor plan
間取図
Local appearance photo現地外観写真  Local (10 May 2013) Shooting
現地(2013年10月)撮影
Livingリビング  Indoor (10 May 2013) Shooting
室内(2013年10月)撮影
Kitchenキッチン  Indoor (10 May 2013) Shooting
室内(2013年10月)撮影
Non-living roomリビング以外の居室  Local (10 May 2013) Shooting
現地(2013年10月)撮影
Otherその他  layout drawing
配置図
Livingリビング  Indoor (10 May 2013) Shooting
室内(2013年10月)撮影
Non-living roomリビング以外の居室  Indoor (10 May 2013) Shooting
室内(2013年10月)撮影
Livingリビング  Indoor (10 May 2013) Shooting
室内(2013年10月)撮影
Location
|