New Homes » Kanto » Kanagawa Prefecture » Hiratsuka
 
| | Hiratsuka, Kanagawa Prefecture 神奈川県平塚市 |
| JR Tokaido Line "Hiratsuka" walk 21 minutes JR東海道本線「平塚」歩21分 |
| Convenient parking two Allowed to second car. Glad to child-rearing family, Hanamizu elementary school walk about 5 minutes, Hamadake junior high school walk about 8 minutes. セカンドカーにも便利な駐車2台可。子育て家族に嬉しい、花水小学校徒歩約5分、浜岳中学校徒歩約8分。 |
Features pickup 特徴ピックアップ | | Long-term high-quality housing / Vibration Control ・ Seismic isolation ・ Earthquake resistant / Parking two Allowed / Within 2km to the sea / Bathroom Dryer / LDK15 tatami mats or more / Japanese-style room / Face-to-face kitchen / Toilet 2 places / 2-story / South balcony / Warm water washing toilet seat / TV monitor interphone / Dish washing dryer 長期優良住宅 /制震・免震・耐震 /駐車2台可 /海まで2km以内 /浴室乾燥機 /LDK15畳以上 /和室 /対面式キッチン /トイレ2ヶ所 /2階建 /南面バルコニー /温水洗浄便座 /TVモニタ付インターホン /食器洗乾燥機 | Price 価格 | | 35,800,000 yen 3580万円 | Floor plan 間取り | | 4LDK 4LDK | Units sold 販売戸数 | | 1 units 1戸 | Land area 土地面積 | | 128.81 sq m 128.81m2 | Building area 建物面積 | | 94.4 sq m 94.4m2 | Driveway burden-road 私道負担・道路 | | Nothing, East 4m width 無、東4m幅 | Completion date 完成時期(築年月) | | October 2013 2013年10月 | Address 住所 | | Hiratsuka, Kanagawa Prefecture Nijigahama 神奈川県平塚市虹ケ浜 | Traffic 交通 | | JR Tokaido Line "Hiratsuka" walk 21 minutes JR東海道本線「平塚」歩21分
| Related links 関連リンク | | [Related Sites of this company] 【この会社の関連サイト】 | Contact お問い合せ先 | | (Yes) nest TEL: 0800-603-2752 [Toll free] mobile phone ・ Also available from PHS Caller ID is not notified Please contact the "saw SUUMO (Sumo)" If it does not lead, If the real estate company (有)ネストTEL:0800-603-2752【通話料無料】携帯電話・PHSからもご利用いただけます 発信者番号は通知されません 「SUUMO(スーモ)を見た」と問い合わせください つながらない方、不動産会社の方は
| Building coverage, floor area ratio 建ぺい率・容積率 | | 60% ・ Hundred percent 60%・100% | Time residents 入居時期 | | Consultation 相談 | Land of the right form 土地の権利形態 | | Ownership 所有権 | Structure and method of construction 構造・工法 | | Wooden 2-story 木造2階建 | Use district 用途地域 | | One low-rise 1種低層 | Overview and notices その他概要・特記事項 | | Facilities: Public Water Supply, This sewage, City gas, Building confirmation number: No. H25SHC109567, Parking: car space 設備:公営水道、本下水、都市ガス、建築確認番号:H25SHC109567号、駐車場:カースペース | Company profile 会社概要 | | <Mediation> Governor of Kanagawa Prefecture (3) No. 023355 (with) nest Yubinbango254-0063 Hiratsuka, Kanagawa Prefecture Suwa-cho, 14-44 <仲介>神奈川県知事(3)第023355号(有)ネスト〒254-0063 神奈川県平塚市諏訪町14-44 |
 Local appearance photo
現地外観写真
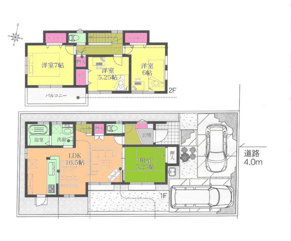
Floor plan間取り図  35,800,000 yen, 4LDK, Land area 128.81 sq m , Building area 94.4 sq m
3580万円、4LDK、土地面積128.81m2、建物面積94.4m2
Supermarketスーパー  563m until Shimamura store violet flat shop
しまむらストアーすみれ平店まで563m
Convenience storeコンビニ  378m to Seven-Eleven Hiratsuka Nijigahama shop
セブンイレブン平塚虹ケ浜店まで378m
Primary school小学校  659m up to elementary school Hiratsuka Tachibana water
平塚市立花水小学校まで659m
Streets around周辺の街並み  Hiratsuka coast
平塚海岸
Location
|