New Homes » Kanto » Kanagawa Prefecture » Hiratsuka
 
| | Hiratsuka, Kanagawa Prefecture 神奈川県平塚市 |
| JR Tokaido Line "Hiratsuka" bus 10 BunTakashi Minesho before walking 1 minute JR東海道本線「平塚」バス10分貴峯荘前歩1分 |
| Small in 6-minute walk ・ Junior high school, Supermarket, There is a convenience store is convenient for day-to-day life. 徒歩6分圏内に小・中学校、スーパー、コンビニがあり日々の生活に便利です。 |
Features pickup 特徴ピックアップ | | Vibration Control ・ Seismic isolation ・ Earthquake resistant / Super close / System kitchen / LDK15 tatami mats or more / Face-to-face kitchen / Toilet 2 places / 2-story / Double-glazing / Warm water washing toilet seat / loft / TV monitor interphone / Walk-in closet 制震・免震・耐震 /スーパーが近い /システムキッチン /LDK15畳以上 /対面式キッチン /トイレ2ヶ所 /2階建 /複層ガラス /温水洗浄便座 /ロフト /TVモニタ付インターホン /ウォークインクロゼット | Price 価格 | | 31,800,000 yen 3180万円 | Floor plan 間取り | | 3LDK 3LDK | Units sold 販売戸数 | | 1 units 1戸 | Land area 土地面積 | | 110.57 sq m 110.57m2 | Building area 建物面積 | | 98.53 sq m 98.53m2 | Driveway burden-road 私道負担・道路 | | Nothing, South 16m width 無、南16m幅 | Completion date 完成時期(築年月) | | December 2013 2013年12月 | Address 住所 | | Hiratsuka, Kanagawa Prefecture Tanjogaoka 神奈川県平塚市達上ケ丘 | Traffic 交通 | | JR Tokaido Line "Hiratsuka" bus 10 BunTakashi Minesho before walking 1 minute JR東海道本線「平塚」バス10分貴峯荘前歩1分
| Related links 関連リンク | | [Related Sites of this company] 【この会社の関連サイト】 | Contact お問い合せ先 | | (Yes) nest TEL: 0800-603-2752 [Toll free] mobile phone ・ Also available from PHS Caller ID is not notified Please contact the "saw SUUMO (Sumo)" If it does not lead, If the real estate company (有)ネストTEL:0800-603-2752【通話料無料】携帯電話・PHSからもご利用いただけます 発信者番号は通知されません 「SUUMO(スーモ)を見た」と問い合わせください つながらない方、不動産会社の方は
| Building coverage, floor area ratio 建ぺい率・容積率 | | 60% ・ 200% 60%・200% | Time residents 入居時期 | | Consultation 相談 | Land of the right form 土地の権利形態 | | Ownership 所有権 | Structure and method of construction 構造・工法 | | Wooden 2-story 木造2階建 | Use district 用途地域 | | One dwelling 1種住居 | Overview and notices その他概要・特記事項 | | Facilities: Public Water Supply, This sewage, City gas, Building confirmation number: No. H25KBI03232, Parking: car space 設備:公営水道、本下水、都市ガス、建築確認番号:H25KBI03232号、駐車場:カースペース | Company profile 会社概要 | | <Mediation> Governor of Kanagawa Prefecture (3) No. 023355 (with) nest Yubinbango254-0063 Hiratsuka, Kanagawa Prefecture Suwa-cho, 14-44 <仲介>神奈川県知事(3)第023355号(有)ネスト〒254-0063 神奈川県平塚市諏訪町14-44 |
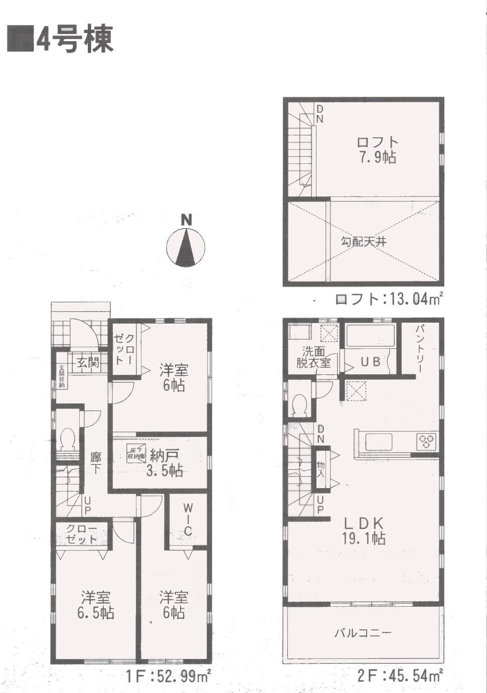
Floor plan間取り図  31,800,000 yen, 3LDK, Land area 110.57 sq m , Building area 98.53 sq m
3180万円、3LDK、土地面積110.57m2、建物面積98.53m2
Supermarketスーパー  352m until Shimamura store Nakazato shop
しまむらストアー中里店まで352m
Convenience storeコンビニ  Three F 570m until Hiratsuka 5-chome
スリーエフ平塚5丁目店まで570m
Home centerホームセンター  Yamada Denki Tecc Land until Kamihiratsuka shop 824m
ヤマダ電機テックランド上平塚店まで824m
Primary school小学校  320m until Hiratsuka Municipal Fujimi Elementary School
平塚市立富士見小学校まで320m
Hospital病院  989m to Hiratsuka City Hospital
平塚市民病院まで989m
Park公園  Okubo Park
大久保公園
Location
|