New Homes » Kanto » Kanagawa Prefecture » Hiratsuka
 
| | Hiratsuka, Kanagawa Prefecture 神奈川県平塚市 |
| JR Tokaido Line "Hiratsuka" bus 10 BunTakashi Minesho before walking 1 minute JR東海道本線「平塚」バス10分貴峯荘前歩1分 |
| Siemens south road, Facing south, Vibration Control ・ Seismic isolation ・ Earthquake resistant, Or more before road 6m, LDK15 tatami mats or more, Walk-in closet, System kitchen, Yang per good, All room storage, A quiet residential area, Shaping land, Face-to-face key 南側道路面す、南向き、制震・免震・耐震、前道6m以上、LDK15畳以上、ウォークインクロゼット、システムキッチン、陽当り良好、全居室収納、閑静な住宅地、整形地、対面式キ |
| Siemens south road, Facing south, Vibration Control ・ Seismic isolation ・ Earthquake resistant, Or more before road 6m, LDK15 tatami mats or more, Walk-in closet, System kitchen, Yang per good, All room storage, A quiet residential area, Shaping land, Face-to-face kitchen, South balcony, loft, Ventilation good 南側道路面す、南向き、制震・免震・耐震、前道6m以上、LDK15畳以上、ウォークインクロゼット、システムキッチン、陽当り良好、全居室収納、閑静な住宅地、整形地、対面式キッチン、南面バルコニー、ロフト、通風良好 |
Features pickup 特徴ピックアップ | | Vibration Control ・ Seismic isolation ・ Earthquake resistant / Facing south / System kitchen / Yang per good / All room storage / Siemens south road / A quiet residential area / LDK15 tatami mats or more / Or more before road 6m / Shaping land / Face-to-face kitchen / South balcony / loft / Ventilation good / Walk-in closet 制震・免震・耐震 /南向き /システムキッチン /陽当り良好 /全居室収納 /南側道路面す /閑静な住宅地 /LDK15畳以上 /前道6m以上 /整形地 /対面式キッチン /南面バルコニー /ロフト /通風良好 /ウォークインクロゼット | Price 価格 | | 31,800,000 yen 3180万円 | Floor plan 間取り | | 3LDK + S (storeroom) ~ 4LDK + 3S (storeroom) 3LDK+S(納戸) ~ 4LDK+3S(納戸) | Units sold 販売戸数 | | 3 units 3戸 | Total units 総戸数 | | 6 units 6戸 | Land area 土地面積 | | 104.59 sq m ~ 110.57 sq m (registration) 104.59m2 ~ 110.57m2(登記) | Building area 建物面積 | | 98.53 sq m ~ 108.05 sq m (registration) 98.53m2 ~ 108.05m2(登記) | Completion date 完成時期(築年月) | | 2013 mid-December 2013年12月中旬 | Address 住所 | | Hiratsuka, Kanagawa Prefecture Tanjogaoka 1450 No. 32 神奈川県平塚市達上ケ丘1450番32 | Traffic 交通 | | JR Tokaido Line "Hiratsuka" bus 10 BunTakashi Minesho before walking 1 minute JR東海道本線「平塚」バス10分貴峯荘前歩1分
| Person in charge 担当者より | | Rep Ikeda base 担当者池田 塁 | Contact お問い合せ先 | | TEL: 0800-603-2831 [Toll free] mobile phone ・ Also available from PHS Caller ID is not notified Please contact the "saw SUUMO (Sumo)" If it does not lead, If the real estate company TEL:0800-603-2831【通話料無料】携帯電話・PHSからもご利用いただけます 発信者番号は通知されません 「SUUMO(スーモ)を見た」と問い合わせください つながらない方、不動産会社の方は
| Time residents 入居時期 | | 1 month after the contract 契約後1ヶ月 | Land of the right form 土地の権利形態 | | Ownership 所有権 | Use district 用途地域 | | One dwelling 1種住居 | Land category 地目 | | Residential land 宅地 | Other limitations その他制限事項 | | Regulations have by the Landscape Act 景観法による規制有 | Overview and notices その他概要・特記事項 | | Contact: Ikeda base, Building confirmation number: the H25 building certification No. KBI03227 担当者:池田 塁、建築確認番号:第H25確認建築KBI03227号 | Company profile 会社概要 | | <Mediation> Governor of Kanagawa Prefecture (3) No. 023608 (Ltd.) Townes Yubinbango251-0042 Fujisawa, Kanagawa Prefecture Tsujidoshin cho 1-4-32 <仲介>神奈川県知事(3)第023608号(株)タウンズ〒251-0042 神奈川県藤沢市辻堂新町1-4-32 |
Livingリビング  Local (12 May 2013) Shooting
現地(2013年12月)撮影
Non-living roomリビング以外の居室  Indoor (12 May 2013) Shooting
室内(2013年12月)撮影
Other introspectionその他内観  loft
ロフト
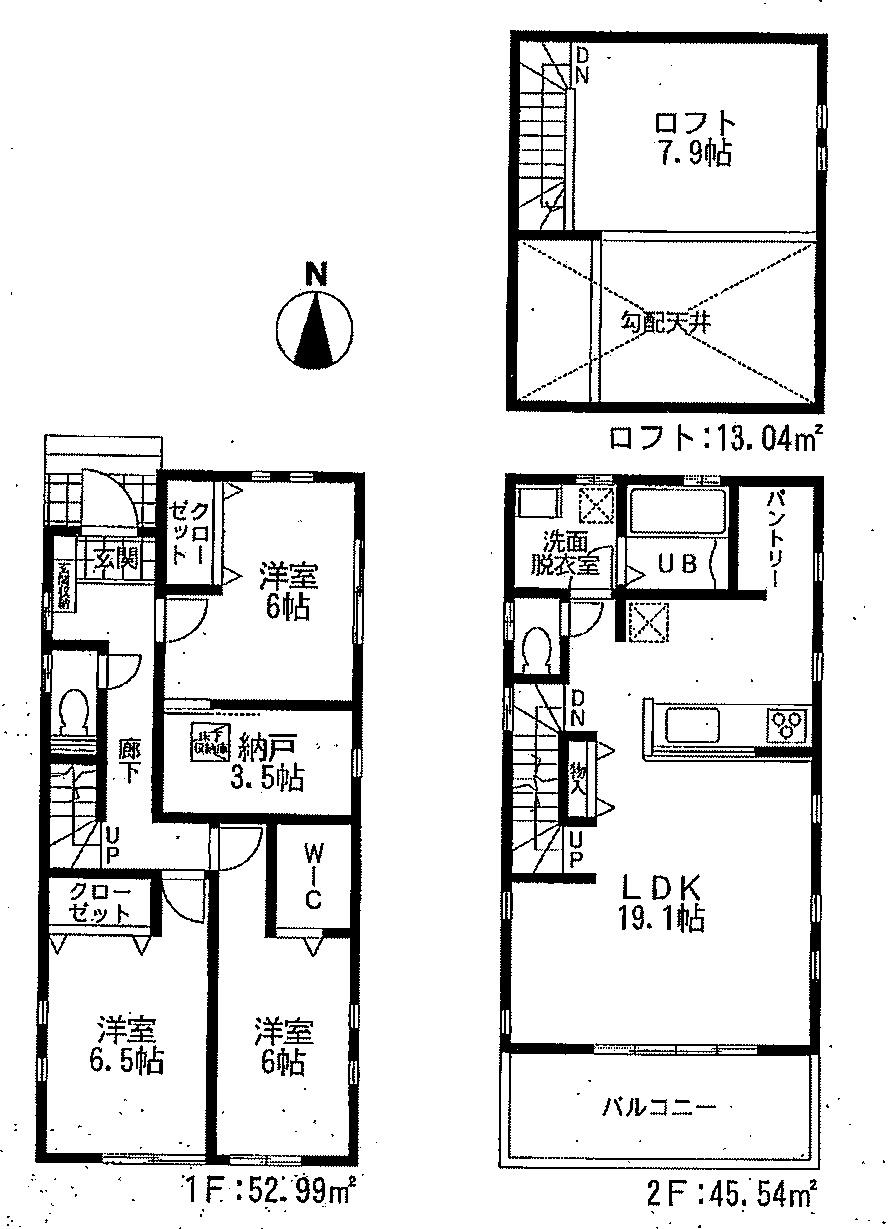
Floor plan間取り図  (4 Building), Price 31,800,000 yen, 3LDK+S, Land area 110.57 sq m , Building area 98.53 sq m
(4号棟)、価格3180万円、3LDK+S、土地面積110.57m2、建物面積98.53m2
Local appearance photo現地外観写真  Local (12 May 2013) Shooting
現地(2013年12月)撮影
Livingリビング  Local (12 May 2013) Shooting
現地(2013年12月)撮影
Bathroom浴室  Indoor (12 May 2013) Shooting
室内(2013年12月)撮影
Kitchenキッチン  Indoor (12 May 2013) Shooting
室内(2013年12月)撮影
Non-living roomリビング以外の居室  Indoor (12 May 2013) Shooting
室内(2013年12月)撮影
Wash basin, toilet洗面台・洗面所  Indoor (12 May 2013)
室内(2013年12月)
 Construction ・ Construction method ・ specification
構造・工法・仕様
Other Equipmentその他設備  Low-E glass is adopted
Low-Eガラス採用
Local photos, including front road前面道路含む現地写真  Local (12 May 2013) Shooting
現地(2013年12月)撮影
Garden庭  Local (12 May 2013) Shooting
現地(2013年12月)撮影
Balconyバルコニー  Local (12 May 2013) Shooting
現地(2013年12月)撮影
 The entire compartment Figure
全体区画図
 Other Equipment
その他設備
 Other Equipment
その他設備
 Security equipment
防犯設備
 Other Equipment
その他設備
 Other Equipment
その他設備
Location
|