|
|
Hiratsuka, Kanagawa Prefecture
神奈川県平塚市
|
|
JR Tokaido Line "Hiratsuka" walk 20 minutes
JR東海道本線「平塚」歩20分
|
|
Zenshitsuminami direction, Siemens south road, Walk-in closet, Yang per good, Parking two Allowed, It is close to the city, Facing south, System kitchen, Bathroom Dryer, Flat to the station, LDK15 tatami mats or more, Around traffic small
全室南向き、南側道路面す、ウォークインクロゼット、陽当り良好、駐車2台可、市街地が近い、南向き、システムキッチン、浴室乾燥機、駅まで平坦、LDK15畳以上、周辺交通量少
|
|
You can send an accommodating good life in the popular walk-in closet.
人気のウォークインクローゼットで収納上手な生活を送っていただけます。
|
Features pickup 特徴ピックアップ | | Parking two Allowed / It is close to the city / Facing south / System kitchen / Bathroom Dryer / Yang per good / Flat to the station / Siemens south road / LDK15 tatami mats or more / Around traffic fewer / Japanese-style room / Shaping land / Washbasin with shower / Face-to-face kitchen / Barrier-free / Toilet 2 places / Bathroom 1 tsubo or more / 2-story / South balcony / Zenshitsuminami direction / Warm water washing toilet seat / Underfloor Storage / The window in the bathroom / TV monitor interphone / Ventilation good / Walk-in closet / City gas / Flat terrain 駐車2台可 /市街地が近い /南向き /システムキッチン /浴室乾燥機 /陽当り良好 /駅まで平坦 /南側道路面す /LDK15畳以上 /周辺交通量少なめ /和室 /整形地 /シャワー付洗面台 /対面式キッチン /バリアフリー /トイレ2ヶ所 /浴室1坪以上 /2階建 /南面バルコニー /全室南向き /温水洗浄便座 /床下収納 /浴室に窓 /TVモニタ付インターホン /通風良好 /ウォークインクロゼット /都市ガス /平坦地 |
Price 価格 | | 37,900,000 yen 3790万円 |
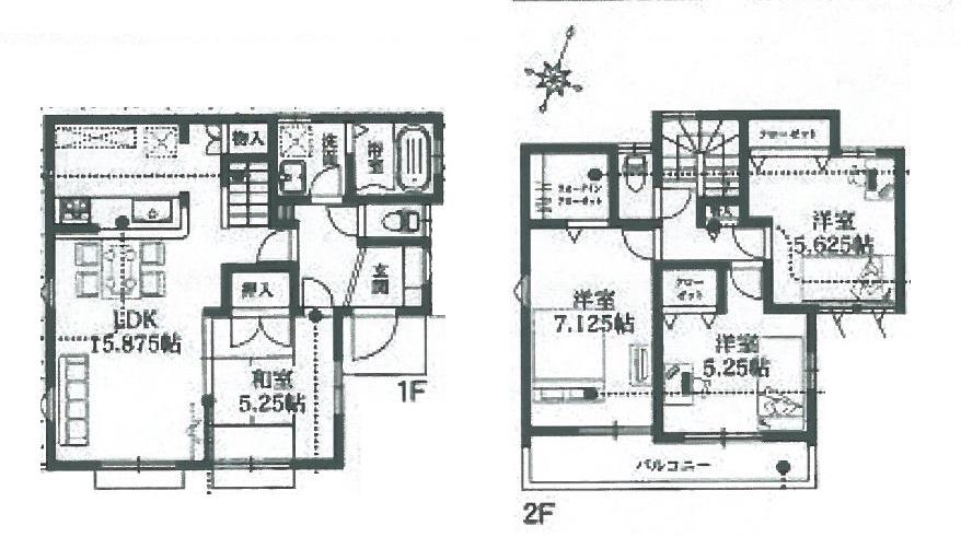
Floor plan 間取り | | 4LDK 4LDK |
Units sold 販売戸数 | | 1 units 1戸 |
Total units 総戸数 | | 1 units 1戸 |
Land area 土地面積 | | 109.48 sq m (33.11 tsubo) (Registration) 109.48m2(33.11坪)(登記) |
Building area 建物面積 | | 95.01 sq m (28.74 tsubo) (Registration) 95.01m2(28.74坪)(登記) |
Driveway burden-road 私道負担・道路 | | Nothing 無 |
Completion date 完成時期(築年月) | | September 2013 2013年9月 |
Address 住所 | | Hiratsuka, Kanagawa Prefecture Sumiredaira 神奈川県平塚市菫平 |
Traffic 交通 | | JR Tokaido Line "Hiratsuka" walk 20 minutes JR Tokaido Line "Oiso" walk 37 minutes JR Sagami Line "Kitachigasaki" walk 99 minutes JR東海道本線「平塚」歩20分 JR東海道本線「大磯」歩37分 JR相模線「北茅ヶ崎」歩99分
|
Related links 関連リンク | | [Related Sites of this company] 【この会社の関連サイト】 |
Person in charge 担当者より | | Rep Hirai Age: 30 Daigyokai Experience: 3 years good properties, We've got clearly a bad thing. Around commercial facilities, We will also be announced, such as the back roads. 担当者平井年齢:30代業界経験:3年良い物件、悪い物件をはっきりお伝えします。周辺の商業施設、裏道などもご案内させていただきます。 |
Contact お問い合せ先 | | TEL: 0800-603-9816 [Toll free] mobile phone ・ Also available from PHS Caller ID is not notified Please contact the "saw SUUMO (Sumo)" If it does not lead, If the real estate company TEL:0800-603-9816【通話料無料】携帯電話・PHSからもご利用いただけます 発信者番号は通知されません 「SUUMO(スーモ)を見た」と問い合わせください つながらない方、不動産会社の方は
|
Building coverage, floor area ratio 建ぺい率・容積率 | | 60% ・ Hundred percent 60%・100% |
Time residents 入居時期 | | Consultation 相談 |
Land of the right form 土地の権利形態 | | Ownership 所有権 |
Structure and method of construction 構造・工法 | | Wooden 2-story 木造2階建 |
Use district 用途地域 | | One low-rise 1種低層 |
Other limitations その他制限事項 | | Regulations have by the Landscape Act 景観法による規制有 |
Overview and notices その他概要・特記事項 | | Contact: Hirai, Facilities: Public Water Supply, This sewage, City gas, Building confirmation number: No. H25SHC108499, Parking: car space 担当者:平井、設備:公営水道、本下水、都市ガス、建築確認番号:H25SHC108499号、駐車場:カースペース |
Company profile 会社概要 | | <Mediation> Governor of Kanagawa Prefecture (1) No. 027366 (Corporation) All Japan Real Estate Association (Corporation) metropolitan area real estate Fair Trade Council member Ishii housing (Ltd.) Yubinbango243-0813 Atsugi City, Kanagawa Prefecture Tsumadahigashi 3-10-13 <仲介>神奈川県知事(1)第027366号(公社)全日本不動産協会会員 (公社)首都圏不動産公正取引協議会加盟石井ハウジング(株)〒243-0813 神奈川県厚木市妻田東3-10-13 |