New Homes » Kanto » Kanagawa Prefecture » Hiratsuka
 
| | Hiratsuka, Kanagawa Prefecture 神奈川県平塚市 |
| JR Tokaido Line "Hiratsuka" bus 9 minutes Ayumi Yamashita 2 minutes JR東海道本線「平塚」バス9分山下歩2分 |
| Yang per good, Long-term high-quality housing, Development subdivision in, LDK18 tatami mats or more, Parking two Allowed, South balcony, Super close, System kitchen, Bathroom Dryer, All room storage, Siemens south road, A quiet residential 陽当り良好、長期優良住宅、開発分譲地内、LDK18畳以上、駐車2台可、南面バルコニー、スーパーが近い、システムキッチン、浴室乾燥機、全居室収納、南側道路面す、閑静な住宅 |
| Please enjoy the time of family reunion in the spacious LDK. 広々LDKで家族団らんの時間をお楽しみください。 |
Features pickup 特徴ピックアップ | | Long-term high-quality housing / Parking two Allowed / LDK18 tatami mats or more / Super close / System kitchen / Bathroom Dryer / Yang per good / All room storage / Siemens south road / A quiet residential area / Japanese-style room / Washbasin with shower / Face-to-face kitchen / Barrier-free / Toilet 2 places / Bathroom 1 tsubo or more / 2-story / South balcony / Double-glazing / Warm water washing toilet seat / The window in the bathroom / TV monitor interphone / Ventilation good / Walk-in closet / Living stairs / Flat terrain / Development subdivision in 長期優良住宅 /駐車2台可 /LDK18畳以上 /スーパーが近い /システムキッチン /浴室乾燥機 /陽当り良好 /全居室収納 /南側道路面す /閑静な住宅地 /和室 /シャワー付洗面台 /対面式キッチン /バリアフリー /トイレ2ヶ所 /浴室1坪以上 /2階建 /南面バルコニー /複層ガラス /温水洗浄便座 /浴室に窓 /TVモニタ付インターホン /通風良好 /ウォークインクロゼット /リビング階段 /平坦地 /開発分譲地内 | Price 価格 | | 26,100,000 yen ~ 28,900,000 yen 2610万円 ~ 2890万円 | Floor plan 間取り | | 3LDK + S (storeroom) ~ 4LDK 3LDK+S(納戸) ~ 4LDK | Units sold 販売戸数 | | 3 units 3戸 | Total units 総戸数 | | 5 units 5戸 | Land area 土地面積 | | 110.11 sq m ~ 110.46 sq m (registration) 110.11m2 ~ 110.46m2(登記) | Building area 建物面積 | | 91.71 sq m ~ 94.19 sq m (registration) 91.71m2 ~ 94.19m2(登記) | Driveway burden-road 私道負担・道路 | | Driveway road 163.61m2 × 1 / 5 especially Bun'yu 私道道路 163.61m2×1/5特分有 | Completion date 完成時期(築年月) | | January 2014 will 2014年1月予定 | Address 住所 | | Hiratsuka, Kanagawa Prefecture Yamashita 神奈川県平塚市山下 | Traffic 交通 | | JR Tokaido Line "Hiratsuka" bus 9 minutes Ayumi Yamashita 2 minutes JR Tokaido Line "Oiso" walk 37 minutes JR Tokaido Line "Hiratsuka" walk 39 minutes JR東海道本線「平塚」バス9分山下歩2分 JR東海道本線「大磯」歩37分 JR東海道本線「平塚」歩39分
| Related links 関連リンク | | [Related Sites of this company] 【この会社の関連サイト】 | Person in charge 担当者より | | Responsible Shataku TateRin Age: 60 Daigyokai Experience: 35 years 担当者宅建林年齢:60代業界経験:35年 | Contact お問い合せ先 | | TEL: 0800-603-9816 [Toll free] mobile phone ・ Also available from PHS Caller ID is not notified Please contact the "saw SUUMO (Sumo)" If it does not lead, If the real estate company TEL:0800-603-9816【通話料無料】携帯電話・PHSからもご利用いただけます 発信者番号は通知されません 「SUUMO(スーモ)を見た」と問い合わせください つながらない方、不動産会社の方は
| Building coverage, floor area ratio 建ぺい率・容積率 | | Building coverage 60%, Volume rate of 200% 建ぺい率60%、容積率200% | Time residents 入居時期 | | Consultation 相談 | Land of the right form 土地の権利形態 | | Ownership 所有権 | Use district 用途地域 | | One middle and high 1種中高 | Land category 地目 | | Residential land 宅地 | Other limitations その他制限事項 | | Regulations have by the Landscape Act, Height district, Quasi-fire zones 景観法による規制有、高度地区、準防火地域 | Overview and notices その他概要・特記事項 | | Contact: Lin, Building confirmation number: No. H25SHC114815 担当者:林、建築確認番号:第H25SHC114815号 | Company profile 会社概要 | | <Mediation> Governor of Kanagawa Prefecture (1) No. 027366 (Corporation) All Japan Real Estate Association (Corporation) metropolitan area real estate Fair Trade Council member Ishii housing (Ltd.) Yubinbango243-0813 Atsugi City, Kanagawa Prefecture Tsumadahigashi 3-10-13 <仲介>神奈川県知事(1)第027366号(公社)全日本不動産協会会員 (公社)首都圏不動産公正取引協議会加盟石井ハウジング(株)〒243-0813 神奈川県厚木市妻田東3-10-13 |
Local appearance photo現地外観写真  Local (11 May 2013) Shooting
現地(2013年11月)撮影
 Local (11 May 2013) Shooting
現地(2013年11月)撮影
Local photos, including front road前面道路含む現地写真  Local (11 May 2013) Shooting
現地(2013年11月)撮影
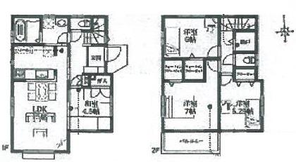
Floor plan間取り図  (3), Price 28,900,000 yen, 4LDK, Land area 110.46 sq m , Building area 94.19 sq m
(3)、価格2890万円、4LDK、土地面積110.46m2、建物面積94.19m2
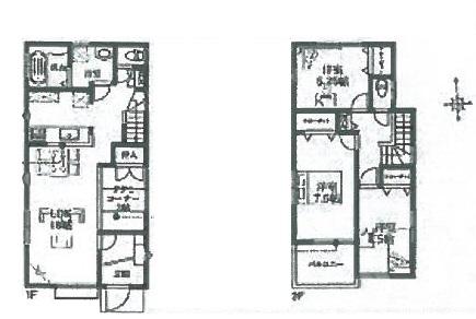
 (4), Price 28.5 million yen, 4LDK, Land area 110.45 sq m , Building area 93.78 sq m
(4)、価格2850万円、4LDK、土地面積110.45m2、建物面積93.78m2
 (5), Price 26,100,000 yen, 3LDK+S, Land area 110.11 sq m , Building area 91.71 sq m
(5)、価格2610万円、3LDK+S、土地面積110.11m2、建物面積91.71m2
Station駅  Hiratsuka Station
平塚駅
Location
|