New Homes » Kanto » Kanagawa Prefecture » Hiratsuka
 
| | Hiratsuka, Kanagawa Prefecture 神奈川県平塚市 |
| Odawara Line Odakyu "Tokai University before" walk 11 minutes 小田急小田原線「東海大学前」歩11分 |
| All the living room facing south, Sunshine ventilation good! Tokai pre-university Station happy walking distance! Car space, Three Friendly room. 全居室南向き、日照通風良好!東海大学前駅うれしい徒歩圏!カースペース、ゆとりの3台可。 |
| Parking three or more possible, Facing south, System kitchen, Bathroom Dryer, LDK15 tatami mats or more, Or more before road 6m, Washbasin with shower, Face-to-face kitchen, Toilet 2 places, 2-story, South balcony, Zenshitsuminami direction, Otobasu, Warm water washing toilet seat, TV monitor interphone, Leafy residential area, All room 6 tatami mats or more, Water filter, Readjustment land within 駐車3台以上可、南向き、システムキッチン、浴室乾燥機、LDK15畳以上、前道6m以上、シャワー付洗面台、対面式キッチン、トイレ2ヶ所、2階建、南面バルコニー、全室南向き、オートバス、温水洗浄便座、TVモニタ付インターホン、緑豊かな住宅地、全居室6畳以上、浄水器、区画整理地内 |
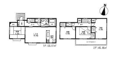
Features pickup 特徴ピックアップ | | Parking three or more possible / Facing south / System kitchen / Bathroom Dryer / LDK15 tatami mats or more / Or more before road 6m / Washbasin with shower / Face-to-face kitchen / Toilet 2 places / 2-story / South balcony / Zenshitsuminami direction / Otobasu / Warm water washing toilet seat / TV monitor interphone / Leafy residential area / All room 6 tatami mats or more / Water filter / Readjustment land within 駐車3台以上可 /南向き /システムキッチン /浴室乾燥機 /LDK15畳以上 /前道6m以上 /シャワー付洗面台 /対面式キッチン /トイレ2ヶ所 /2階建 /南面バルコニー /全室南向き /オートバス /温水洗浄便座 /TVモニタ付インターホン /緑豊かな住宅地 /全居室6畳以上 /浄水器 /区画整理地内 | Price 価格 | | 30,800,000 yen 3080万円 | Floor plan 間取り | | 4LDK 4LDK | Units sold 販売戸数 | | 1 units 1戸 | Total units 総戸数 | | 2 units 2戸 | Land area 土地面積 | | 162.88 sq m 162.88m2 | Building area 建物面積 | | 99.57 sq m 99.57m2 | Driveway burden-road 私道負担・道路 | | Nothing, Southwest 6m width 無、南西6m幅 | Completion date 完成時期(築年月) | | December 2013 2013年12月 | Address 住所 | | Hiratsuka, Kanagawa Prefecture Sanada 2 神奈川県平塚市真田2 | Traffic 交通 | | Odawara Line Odakyu "Tokai University before" walk 11 minutes 小田急小田原線「東海大学前」歩11分
| Contact お問い合せ先 | | TEL: 0800-603-2395 [Toll free] mobile phone ・ Also available from PHS Caller ID is not notified Please contact the "saw SUUMO (Sumo)" If it does not lead, If the real estate company TEL:0800-603-2395【通話料無料】携帯電話・PHSからもご利用いただけます 発信者番号は通知されません 「SUUMO(スーモ)を見た」と問い合わせください つながらない方、不動産会社の方は
| Building coverage, floor area ratio 建ぺい率・容積率 | | Fifty percent ・ 80% 50%・80% | Time residents 入居時期 | | Consultation 相談 | Land of the right form 土地の権利形態 | | Ownership 所有権 | Structure and method of construction 構造・工法 | | Wooden 2-story 木造2階建 | Use district 用途地域 | | One low-rise 1種低層 | Overview and notices その他概要・特記事項 | | Facilities: Public Water Supply, This sewage, City gas, Building confirmation number: first H25SBC- Make 02205Y No., Parking: car space 設備:公営水道、本下水、都市ガス、建築確認番号:第H25SBC-確02205Y号、駐車場:カースペース | Company profile 会社概要 | | <Mediation> Governor of Kanagawa Prefecture (4) The 022,193 No. double flower Estate Co., Ltd. Nishiguchi shop Yubinbango254-0045 Hiratsuka, Kanagawa Prefecture Mitsuke-cho 1-28 Lions Plaza Hiratsuka Mitsuke-cho 1 <仲介>神奈川県知事(4)第022193号八重咲地所(株)西口店〒254-0045 神奈川県平塚市見附町1-28 ライオンズプラザ平塚見附町1 |
Floor plan間取り図  30,800,000 yen, 4LDK, Land area 162.88 sq m , Building area 99.57 sq m
3080万円、4LDK、土地面積162.88m2、建物面積99.57m2
Compartment figure区画図  30,800,000 yen, 4LDK, Land area 162.88 sq m , Building area 99.57 sq m
3080万円、4LDK、土地面積162.88m2、建物面積99.57m2
Location
|