New Homes » Kanto » Kanagawa Prefecture » Hiratsuka
 
| | Hiratsuka, Kanagawa Prefecture 神奈川県平塚市 |
| JR Tokaido Line "Hiratsuka" bus 13 minutes chests walk 2 minutes JR東海道本線「平塚」バス13分長持歩2分 |
| Shaping land, Or more before road 6m, Parking two Allowed, A quiet residential area, Bathroom Dryer, Yang per good, Corresponding to the flat-35S, System kitchen, All room storage, LDK15 tatami mats or moreese-style room, Washbasin with shower, versus 整形地、前道6m以上、駐車2台可、閑静な住宅地、浴室乾燥機、陽当り良好、フラット35Sに対応、システムキッチン、全居室収納、LDK15畳以上、和室、シャワー付洗面台、対 |
| Shaping land, Or more before road 6m, Parking two Allowed, A quiet residential area, Bathroom Dryer, Yang per good, Corresponding to the flat-35S, System kitchen, All room storage, LDK15 tatami mats or moreese-style room, Washbasin with shower, Face-to-face kitchen, Barrier-free, Toilet 2 places, Bathroom 1 tsubo or more, 2-story, South balcony, Double-glazing, Warm water washing toilet seat, The window in the bathroom, TV monitor interphone, Ventilation good, Water filter 整形地、前道6m以上、駐車2台可、閑静な住宅地、浴室乾燥機、陽当り良好、フラット35Sに対応、システムキッチン、全居室収納、LDK15畳以上、和室、シャワー付洗面台、対面式キッチン、バリアフリー、トイレ2ヶ所、浴室1坪以上、2階建、南面バルコニー、複層ガラス、温水洗浄便座、浴室に窓、TVモニタ付インターホン、通風良好、浄水器 |
Features pickup 特徴ピックアップ | | Corresponding to the flat-35S / Parking two Allowed / System kitchen / Bathroom Dryer / Yang per good / All room storage / A quiet residential area / LDK15 tatami mats or more / Or more before road 6m / Japanese-style room / Shaping land / Washbasin with shower / Face-to-face kitchen / Barrier-free / Toilet 2 places / Bathroom 1 tsubo or more / 2-story / South balcony / Double-glazing / Warm water washing toilet seat / The window in the bathroom / TV monitor interphone / Ventilation good / Water filter フラット35Sに対応 /駐車2台可 /システムキッチン /浴室乾燥機 /陽当り良好 /全居室収納 /閑静な住宅地 /LDK15畳以上 /前道6m以上 /和室 /整形地 /シャワー付洗面台 /対面式キッチン /バリアフリー /トイレ2ヶ所 /浴室1坪以上 /2階建 /南面バルコニー /複層ガラス /温水洗浄便座 /浴室に窓 /TVモニタ付インターホン /通風良好 /浄水器 | Price 価格 | | 20.5 million yen 2050万円 | Floor plan 間取り | | 4LDK 4LDK | Units sold 販売戸数 | | 1 units 1戸 | Total units 総戸数 | | 2 units 2戸 | Land area 土地面積 | | 104.92 sq m (31.73 tsubo) (Registration) 104.92m2(31.73坪)(登記) | Building area 建物面積 | | 87.47 sq m (26.45 tsubo) (Registration) 87.47m2(26.45坪)(登記) | Driveway burden-road 私道負担・道路 | | Nothing 無 | Completion date 完成時期(築年月) | | September 2013 2013年9月 | Address 住所 | | Hiratsuka, Kanagawa Prefecture chests 神奈川県平塚市長持 | Traffic 交通 | | JR Tokaido Line "Hiratsuka" bus 13 minutes chests walk 2 minutes JR東海道本線「平塚」バス13分長持歩2分
| Related links 関連リンク | | [Related Sites of this company] 【この会社の関連サイト】 | Person in charge 担当者より | | Personnel Nishimura Kengo Age: 30 Daigyokai experience: As you say "Thank you" in two years last to smile, It becomes a customer's point of view, We introduce you live to customers' demand. 担当者西村 健吾年齢:30代業界経験:2年最後に笑顔で「ありがとう」と言って頂けるように、お客様の立場になり、お客様の求めるお住まいをご紹介します。 | Contact お問い合せ先 | | TEL: 0800-603-9816 [Toll free] mobile phone ・ Also available from PHS Caller ID is not notified Please contact the "saw SUUMO (Sumo)" If it does not lead, If the real estate company TEL:0800-603-9816【通話料無料】携帯電話・PHSからもご利用いただけます 発信者番号は通知されません 「SUUMO(スーモ)を見た」と問い合わせください つながらない方、不動産会社の方は
| Building coverage, floor area ratio 建ぺい率・容積率 | | 60% ・ 200% 60%・200% | Time residents 入居時期 | | Consultation 相談 | Land of the right form 土地の権利形態 | | Ownership 所有権 | Structure and method of construction 構造・工法 | | Wooden 2-story 木造2階建 | Use district 用途地域 | | One middle and high 1種中高 | Other limitations その他制限事項 | | Height district, Quasi-fire zones 高度地区、準防火地域 | Overview and notices その他概要・特記事項 | | Contact: Nishimura Kengo, Facilities: Public Water Supply, This sewage, Individual LPG, Building confirmation number: No. H25SHC107939, Parking: car space 担当者:西村 健吾、設備:公営水道、本下水、個別LPG、建築確認番号:第H25SHC107939号、駐車場:カースペース | Company profile 会社概要 | | <Mediation> Governor of Kanagawa Prefecture (1) No. 027366 (Corporation) All Japan Real Estate Association (Corporation) metropolitan area real estate Fair Trade Council member Ishii housing (Ltd.) Yubinbango243-0813 Atsugi City, Kanagawa Prefecture Tsumadahigashi 3-10-13 <仲介>神奈川県知事(1)第027366号(公社)全日本不動産協会会員 (公社)首都圏不動産公正取引協議会加盟石井ハウジング(株)〒243-0813 神奈川県厚木市妻田東3-10-13 |
Local appearance photo現地外観写真  Local (11 May 2013) Shooting
現地(2013年11月)撮影
Livingリビング  Local (11 May 2013) Shooting
現地(2013年11月)撮影
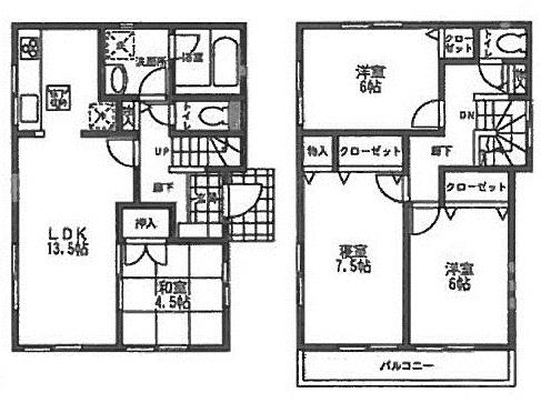
Floor plan間取り図  20.5 million yen, 4LDK, Land area 104.92 sq m , Building area 87.47 sq m
2050万円、4LDK、土地面積104.92m2、建物面積87.47m2
Bathroom浴室  Local (11 May 2013) Shooting
現地(2013年11月)撮影
Kitchenキッチン  Local (11 May 2013) Shooting
現地(2013年11月)撮影
Non-living roomリビング以外の居室  Local (11 May 2013) Shooting
現地(2013年11月)撮影
Wash basin, toilet洗面台・洗面所  Local (11 May 2013) Shooting
現地(2013年11月)撮影
Receipt収納  Local (11 May 2013) Shooting
現地(2013年11月)撮影
Toiletトイレ  Local (11 May 2013) Shooting
現地(2013年11月)撮影
Non-living roomリビング以外の居室  Local (11 May 2013) Shooting
現地(2013年11月)撮影
 Local (11 May 2013) Shooting
現地(2013年11月)撮影
Location
|