|
|
Hiratsuka, Kanagawa Prefecture
神奈川県平塚市
|
|
JR Tokaido Line "Hiratsuka" bus 10 BunTakashi Minesho before walking 1 minute
JR東海道本線「平塚」バス10分貴峯荘前歩1分
|
|
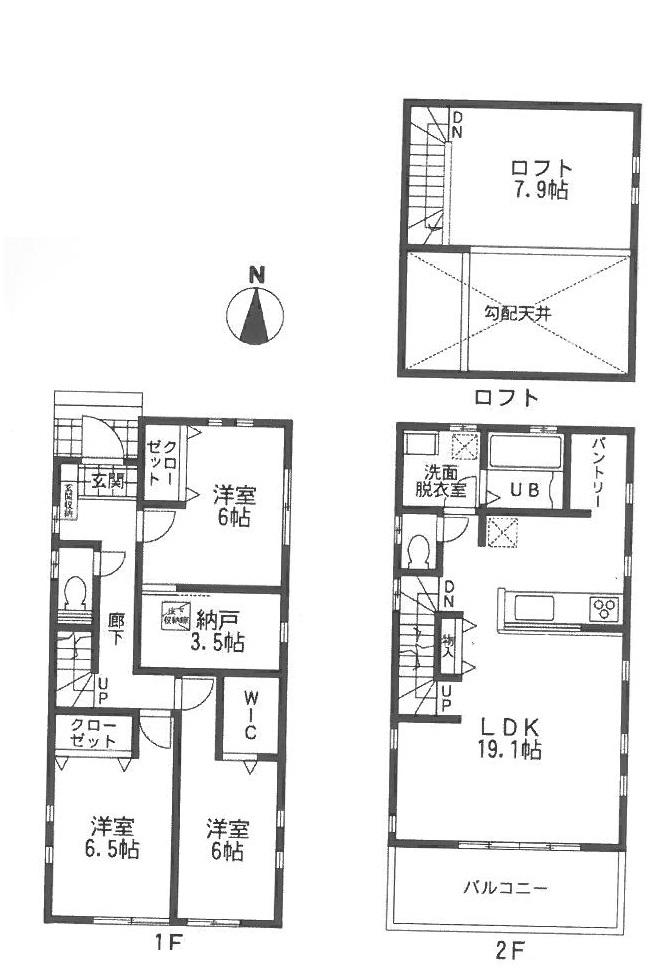
Face-to-face kitchen, LDK18 tatami mats or more, Walk-in closet, loft, Storeroom, All living room flooring, Corresponding to the flat-35S, Super close, All room storage, Shaping land, Toilet 2 places, Second floor
対面式キッチン、LDK18畳以上、ウォークインクロゼット、ロフト、納戸、全居室フローリング、フラット35Sに対応、スーパーが近い、全居室収納、整形地、トイレ2ヶ所、2階
|
|
Since there is a storeroom and WIC, Things you can accommodated even a lot. Face-to-face kitchen where you can enjoy a conversation with family.
納戸とWICがありますので、物がたくさんあっても収納していただけます。家族との会話を楽しめる対面キッチン。
|
Features pickup 特徴ピックアップ | | Corresponding to the flat-35S / LDK18 tatami mats or more / Super close / All room storage / Shaping land / Face-to-face kitchen / Toilet 2 places / 2-story / Warm water washing toilet seat / loft / Underfloor Storage / The window in the bathroom / TV monitor interphone / Ventilation good / All living room flooring / Dish washing dryer / Walk-in closet / Water filter / Storeroom フラット35Sに対応 /LDK18畳以上 /スーパーが近い /全居室収納 /整形地 /対面式キッチン /トイレ2ヶ所 /2階建 /温水洗浄便座 /ロフト /床下収納 /浴室に窓 /TVモニタ付インターホン /通風良好 /全居室フローリング /食器洗乾燥機 /ウォークインクロゼット /浄水器 /納戸 |
Price 価格 | | 31,800,000 yen 3180万円 |
Floor plan 間取り | | 3LDK + S (storeroom) 3LDK+S(納戸) |
Units sold 販売戸数 | | 1 units 1戸 |
Total units 総戸数 | | 6 units 6戸 |
Land area 土地面積 | | 110.57 sq m (33.44 tsubo) (Registration) 110.57m2(33.44坪)(登記) |
Building area 建物面積 | | 98.53 sq m (29.80 tsubo) (Registration) 98.53m2(29.80坪)(登記) |
Driveway burden-road 私道負担・道路 | | Nothing 無 |
Completion date 完成時期(築年月) | | January 2014 2014年1月 |
Address 住所 | | Hiratsuka, Kanagawa Prefecture Tanjogaoka 神奈川県平塚市達上ケ丘 |
Traffic 交通 | | JR Tokaido Line "Hiratsuka" bus 10 BunTakashi Minesho before walking 1 minute JR Tokaido Line "Hiratsuka" walk 33 minutes JR東海道本線「平塚」バス10分貴峯荘前歩1分 JR東海道本線「平塚」歩33分
|
Related links 関連リンク | | [Related Sites of this company] 【この会社の関連サイト】 |
Person in charge 担当者より | | Responsible Shataku TateRin Age: 60 Daigyokai Experience: 35 years 担当者宅建林年齢:60代業界経験:35年 |
Contact お問い合せ先 | | TEL: 0800-603-9816 [Toll free] mobile phone ・ Also available from PHS Caller ID is not notified Please contact the "saw SUUMO (Sumo)" If it does not lead, If the real estate company TEL:0800-603-9816【通話料無料】携帯電話・PHSからもご利用いただけます 発信者番号は通知されません 「SUUMO(スーモ)を見た」と問い合わせください つながらない方、不動産会社の方は
|
Building coverage, floor area ratio 建ぺい率・容積率 | | 60% ・ 200% 60%・200% |
Time residents 入居時期 | | Consultation 相談 |
Land of the right form 土地の権利形態 | | Ownership 所有権 |
Structure and method of construction 構造・工法 | | Wooden 2-story 木造2階建 |
Use district 用途地域 | | One dwelling 1種住居 |
Overview and notices その他概要・特記事項 | | Contact: Lin, Facilities: Public Water Supply, City gas, Building confirmation number: the H25 building certification No. KBI03232 担当者:林、設備:公営水道、都市ガス、建築確認番号:第H25確認建築KBI03232号 |
Company profile 会社概要 | | <Mediation> Governor of Kanagawa Prefecture (1) No. 027366 (Corporation) All Japan Real Estate Association (Corporation) metropolitan area real estate Fair Trade Council member Ishii housing (Ltd.) Yubinbango243-0813 Atsugi City, Kanagawa Prefecture Tsumadahigashi 3-10-13 <仲介>神奈川県知事(1)第027366号(公社)全日本不動産協会会員 (公社)首都圏不動産公正取引協議会加盟石井ハウジング(株)〒243-0813 神奈川県厚木市妻田東3-10-13 |