New Homes » Kanto » Kanagawa Prefecture » Isehara
 
| | Isehara City, Kanagawa Prefecture 神奈川県伊勢原市 |
| Odawara Line Odakyu "Aiko Ishida" 12 minutes Ayumi Shimoochiai 5 minutes by bus 小田急小田原線「愛甲石田」バス12分下落合歩5分 |
| Parking two Allowed, System kitchen, LDK15 tatami mats or moreese-style room, Face-to-face kitchen, 2-story 駐車2台可、システムキッチン、LDK15畳以上、和室、対面式キッチン、2階建 |
Features pickup 特徴ピックアップ | | Parking two Allowed / System kitchen / LDK15 tatami mats or more / Japanese-style room / Face-to-face kitchen / 2-story 駐車2台可 /システムキッチン /LDK15畳以上 /和室 /対面式キッチン /2階建 | Price 価格 | | 18,800,000 yen 1880万円 | Floor plan 間取り | | 4LDK 4LDK | Units sold 販売戸数 | | 1 units 1戸 | Total units 総戸数 | | 10 units 10戸 | Land area 土地面積 | | 126.42 sq m (38.24 tsubo) (measured) 126.42m2(38.24坪)(実測) | Building area 建物面積 | | 93.14 sq m (28.17 tsubo) (measured) 93.14m2(28.17坪)(実測) | Driveway burden-road 私道負担・道路 | | Nothing 無 | Completion date 完成時期(築年月) | | September 2013 2013年9月 | Address 住所 | | Isehara, Kanagawa Prefecture Shimoochiai 神奈川県伊勢原市下落合 | Traffic 交通 | | Odawara Line Odakyu "Aiko Ishida" 12 minutes Ayumi Shimoochiai 5 minutes by bus Odawara Line Odakyu "Isehara" bus 19 minutes Ayumi Shimoochiai 5 minutes 小田急小田原線「愛甲石田」バス12分下落合歩5分 小田急小田原線「伊勢原」バス19分下落合歩5分
| Contact お問い合せ先 | | TEL: 0800-603-1280 [Toll free] mobile phone ・ Also available from PHS Caller ID is not notified Please contact the "saw SUUMO (Sumo)" If it does not lead, If the real estate company TEL:0800-603-1280【通話料無料】携帯電話・PHSからもご利用いただけます 発信者番号は通知されません 「SUUMO(スーモ)を見た」と問い合わせください つながらない方、不動産会社の方は
| Building coverage, floor area ratio 建ぺい率・容積率 | | 60% ・ 200% 60%・200% | Time residents 入居時期 | | Consultation 相談 | Land of the right form 土地の権利形態 | | Ownership 所有権 | Structure and method of construction 構造・工法 | | Wooden 2-story 木造2階建 | Use district 用途地域 | | Semi-industrial 準工業 | Overview and notices その他概要・特記事項 | | Facilities: Public Water Supply, This sewage, Individual LPG, Building confirmation number: No. H25SHC109847, Parking: car space 設備:公営水道、本下水、個別LPG、建築確認番号:第H25SHC109847号、駐車場:カースペース | Company profile 会社概要 | | <Mediation> Governor of Kanagawa Prefecture (11) No. 009457 (the company), Kanagawa Prefecture Building Lots and Buildings Transaction Business Association (Corporation) metropolitan area real estate Fair Trade Council member Japan Housing Corporation real estate sales department Yubinbango243-0017 Atsugi City, Kanagawa Prefecture Sakae 1-17-10 <仲介>神奈川県知事(11)第009457号(社)神奈川県宅地建物取引業協会会員 (公社)首都圏不動産公正取引協議会加盟日本住宅(株)不動産営業部〒243-0017 神奈川県厚木市栄町1-17-10 |
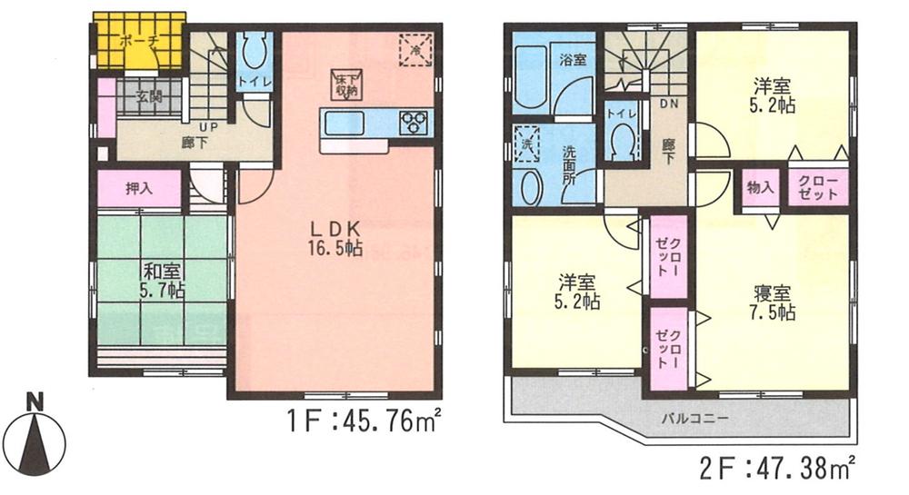
Floor plan間取り図  18,800,000 yen, 4LDK, Land area 126.42 sq m , Building area 93.14 sq m
1880万円、4LDK、土地面積126.42m2、建物面積93.14m2
Shopping centreショッピングセンター  Across Plaza to Isehara 905m
アクロスプラザ伊勢原まで905m
Primary school小学校  Isehara Tachiishida to elementary school 1525m
伊勢原市立石田小学校まで1525m
Kindergarten ・ Nursery幼稚園・保育園  Isehara Futaba to nursery school 2157m
伊勢原ふたば保育園まで2157m
Location
|