New Homes » Kanto » Kanagawa Prefecture » Isehara
 
| | Isehara City, Kanagawa Prefecture 神奈川県伊勢原市 |
| Odawara Line Odakyu "Aiko Ishida" walk 23 minutes 小田急小田原線「愛甲石田」歩23分 |
| Land area all 10 compartments 46 ~ 56 square meters + parking two is possible! The outer wall fire protection ・ Thermal insulation properties ・ Shopping is convenient because there are supermarkets and convenience stores in the standard specification close to the superior power board to sound insulation! 土地面積全10区画46 ~ 56坪+駐車2台可能です!外壁は防火性・断熱性・遮音性に優れたパワーボードを標準仕様近隣にはスーパーやコンビニがございますので買い物も便利です! |
Features pickup 特徴ピックアップ | | Corresponding to the flat-35S / Parking two Allowed / Land 50 square meters or more / Super close / Facing south / System kitchen / Bathroom Dryer / Yang per good / Siemens south road / LDK15 tatami mats or more / Or more before road 6m / Japanese-style room / Shaping land / Washbasin with shower / Face-to-face kitchen / Toilet 2 places / Bathroom 1 tsubo or more / 2-story / Double-glazing / Warm water washing toilet seat / Underfloor Storage / The window in the bathroom / TV monitor interphone / Walk-in closet / All room 6 tatami mats or more / Water filter / City gas / roof balcony / Readjustment land within フラット35Sに対応 /駐車2台可 /土地50坪以上 /スーパーが近い /南向き /システムキッチン /浴室乾燥機 /陽当り良好 /南側道路面す /LDK15畳以上 /前道6m以上 /和室 /整形地 /シャワー付洗面台 /対面式キッチン /トイレ2ヶ所 /浴室1坪以上 /2階建 /複層ガラス /温水洗浄便座 /床下収納 /浴室に窓 /TVモニタ付インターホン /ウォークインクロゼット /全居室6畳以上 /浄水器 /都市ガス /ルーフバルコニー /区画整理地内 | Event information イベント情報 | | Local sales meetings (Please be sure to ask in advance) schedule / Every Saturday, Sunday and public holidays time / 10:00 ~ 18:00 現地販売会(事前に必ずお問い合わせください)日程/毎週土日祝時間/10:00 ~ 18:00 | Price 価格 | | 31,800,000 yen ~ 37,800,000 yen 3180万円 ~ 3780万円 | Floor plan 間取り | | 4LDK 4LDK | Units sold 販売戸数 | | 10 units 10戸 | Total units 総戸数 | | 10 units 10戸 | Land area 土地面積 | | 154.15 sq m ~ 187.23 sq m 154.15m2 ~ 187.23m2 | Building area 建物面積 | | 99.36 sq m 99.36m2 | Completion date 完成時期(築年月) | | January 2014 late schedule 2014年1月下旬予定 | Address 住所 | | Isehara, Kanagawa Prefecture Takamori 1839 No. 1, 神奈川県伊勢原市高森1839番1、他9筆 | Traffic 交通 | | Odawara Line Odakyu "Aiko Ishida" walk 23 minutes Odawara Line Odakyu "Isehara" bus 4 minutes Naruse junior high school entrance walk 5 minutes 小田急小田原線「愛甲石田」歩23分 小田急小田原線「伊勢原」バス4分成瀬中学校入口歩5分
| Related links 関連リンク | | [Related Sites of this company] 【この会社の関連サイト】 | Person in charge 担当者より | | Rep Yabiku Yuji Age: 30s My home looking for is very, It is fun. Look for fun together. Since there are accent in Okinawa and raised in Okinawa born, If not Ppoku salesman, Well it is said from customers (^ - ^) But is not it boast, Knowledge is wealth. 担当者屋比久 勇治年齢:30代マイホーム探しは大変ですが、楽しいです。一緒に楽しく探しましょう。沖縄生まれの沖縄育ちでなまりがあるので、営業マンっぽくないと、よくお客様から言われます(^‐^) 自慢じゃないですが、知識は豊富です。 | Contact お問い合せ先 | | TEL: 0800-602-5936 [Toll free] mobile phone ・ Also available from PHS Caller ID is not notified Please contact the "saw SUUMO (Sumo)" If it does not lead, If the real estate company TEL:0800-602-5936【通話料無料】携帯電話・PHSからもご利用いただけます 発信者番号は通知されません 「SUUMO(スーモ)を見た」と問い合わせください つながらない方、不動産会社の方は
| Most price range 最多価格帯 | | 35 million yen (4 units) 3500万円台(4戸) | Building coverage, floor area ratio 建ぺい率・容積率 | | Kenpei rate: 60%, Volume ratio: 200% 建ペい率:60%、容積率:200% | Time residents 入居時期 | | Consultation 相談 | Land of the right form 土地の権利形態 | | Ownership 所有権 | Structure and method of construction 構造・工法 | | Wooden 2-story 木造2階建 | Use district 用途地域 | | One dwelling 1種住居 | Land category 地目 | | Residential land 宅地 | Overview and notices その他概要・特記事項 | | Contact: Yabiku Yuji, Building confirmation number: first H25SBC- Make 00292M No. (Building 2) 担当者:屋比久 勇治、建築確認番号:第H25SBC-確00292M号(2号棟) | Company profile 会社概要 | | <Mediation> Governor of Kanagawa Prefecture (1) No. 027426 (Ltd.) Oceans Estate Yubinbango254-0002 Hiratsuka, Kanagawa Prefecture Yokouchi 3774-2 <仲介>神奈川県知事(1)第027426号(株)オーシャンズエステート〒254-0002 神奈川県平塚市横内3774-2 |
Local photos, including front road前面道路含む現地写真  Local (December 16, 2013) Shooting
現地(2013年12月16日)撮影
![Local photos, including front road. Local (December 16, 2013) Shooting [9 ・ 10 Building]](/images/kanagawa/isehara/030a960063.jpg) Local (December 16, 2013) Shooting [9 ・ 10 Building]
現地(2013年12月16日)撮影 【9・10号棟】
Livingリビング ![Living. Indoor (December 12, 2013) Shooting [10 Building]](/images/kanagawa/isehara/030a960053.jpg) Indoor (December 12, 2013) Shooting [10 Building]
室内(2013年12月12日)撮影 【10号棟】
Floor plan間取り図  (Takamori Phase 3 2 Building), Price 32,800,000 yen, 4LDK, Land area 154.15 sq m , Building area 99.36 sq m
(高森3期 2号棟)、価格3280万円、4LDK、土地面積154.15m2、建物面積99.36m2
Local appearance photo現地外観写真 ![Local appearance photo. Local (December 16, 2013) Shooting [10 Building]](/images/kanagawa/isehara/030a960064.jpg) Local (December 16, 2013) Shooting [10 Building]
現地(2013年12月16日)撮影 【10号棟】
Livingリビング  Indoor (December 12, 2013) Shooting
室内(2013年12月12日)撮影
Bathroom浴室  Indoor (December 12, 2013) Shooting
室内(2013年12月12日)撮影
Kitchenキッチン  Indoor (December 12, 2013) Shooting
室内(2013年12月12日)撮影
Non-living roomリビング以外の居室  Indoor (December 12, 2013) Shooting
室内(2013年12月12日)撮影
Entrance玄関  Example of construction
施工例
Wash basin, toilet洗面台・洗面所  Example of construction
施工例
Receipt収納  Indoor (December 12, 2013) Shooting
室内(2013年12月12日)撮影
Toiletトイレ  Example of construction
施工例
Local photos, including front road前面道路含む現地写真  Local (December 1, 2013) Shooting
現地(2013年12月1日)撮影
Balconyバルコニー  Example of construction
施工例
Supermarketスーパー  Yutakaraya to Isehara shop 644m
ユータカラヤ伊勢原店まで644m
Same specifications photos (Other introspection)同仕様写真(その他内観)  Example of construction
施工例
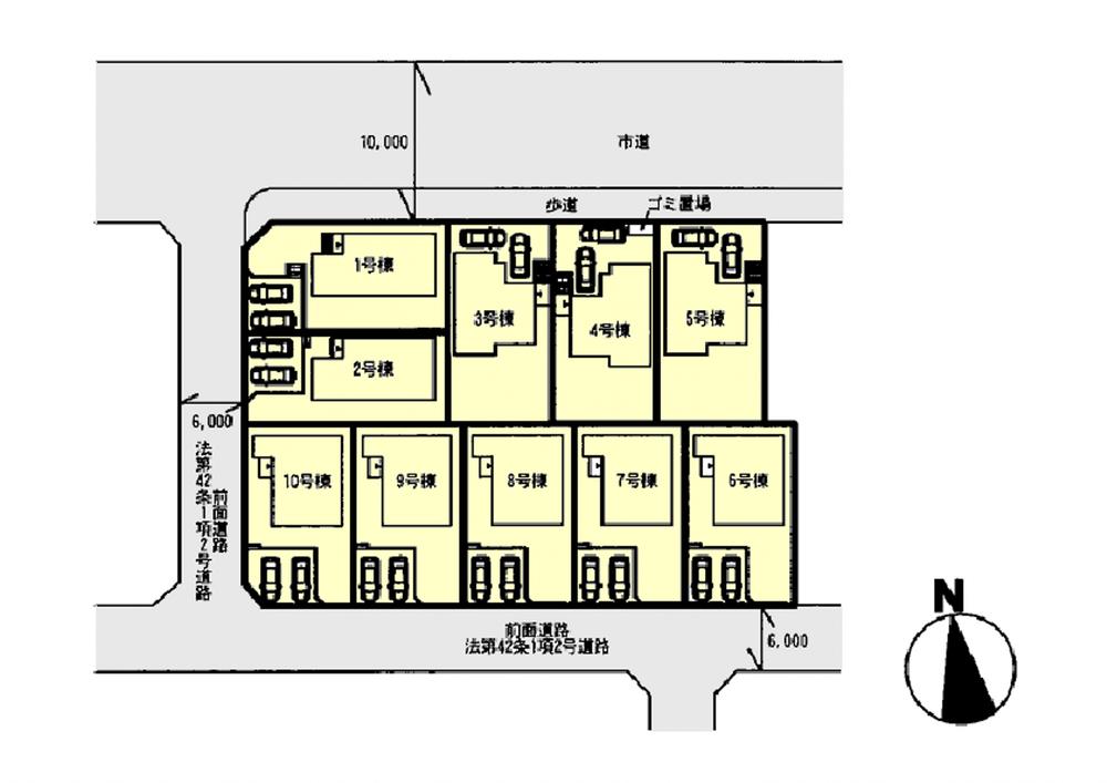
 The entire compartment Figure
全体区画図
Floor plan間取り図  (Takamori Phase 3 3 Building), Price 32,800,000 yen, 4LDK, Land area 172.22 sq m , Building area 99.36 sq m
(高森3期 3号棟)、価格3280万円、4LDK、土地面積172.22m2、建物面積99.36m2
Non-living roomリビング以外の居室  Indoor (December 12, 2013) Shooting
室内(2013年12月12日)撮影
Receipt収納  Example of construction
施工例
Location
|