New Homes » Kanto » Kanagawa Prefecture » Isehara
 
| | Isehara City, Kanagawa Prefecture 神奈川県伊勢原市 |
| Odawara Line Odakyu "Isehara" walk 20 minutes 小田急小田原線「伊勢原」歩20分 |
| The rest 1 building! ☆ Car space is two Allowed ☆ ◆ Good is per positive in all the living room facing south! ◆ Living is a 15-Pledge popular face-to-face kitchen of room! Flat 35S corresponding Property 残り1棟です!☆カースペース2台可です☆◆全居室南向きで陽当り良好です!◆リビングゆとりの15帖人気の対面キッチンです!フラット35S対応物件 |
| Corner lot, Corresponding to the flat-35S, Parking two Allowed, Facing south, System kitchen, Bathroom Dryer, All room storage, LDK15 tatami mats or moreese-style room, Washbasin with shower, Face-to-face kitchen, 2-story, 2 or more sides balcony, South balcony, Double-glazing, Zenshitsuminami direction, Warm water washing toilet seat, Underfloor Storage, TV monitor interphone, City gas 角地、フラット35Sに対応、駐車2台可、南向き、システムキッチン、浴室乾燥機、全居室収納、LDK15畳以上、和室、シャワー付洗面台、対面式キッチン、2階建、2面以上バルコニー、南面バルコニー、複層ガラス、全室南向き、温水洗浄便座、床下収納、TVモニタ付インターホン、都市ガス |
Features pickup 特徴ピックアップ | | Corresponding to the flat-35S / Parking two Allowed / Facing south / System kitchen / Bathroom Dryer / All room storage / LDK15 tatami mats or more / Corner lot / Japanese-style room / Washbasin with shower / Face-to-face kitchen / 2-story / 2 or more sides balcony / South balcony / Double-glazing / Zenshitsuminami direction / Warm water washing toilet seat / Underfloor Storage / TV monitor interphone / City gas フラット35Sに対応 /駐車2台可 /南向き /システムキッチン /浴室乾燥機 /全居室収納 /LDK15畳以上 /角地 /和室 /シャワー付洗面台 /対面式キッチン /2階建 /2面以上バルコニー /南面バルコニー /複層ガラス /全室南向き /温水洗浄便座 /床下収納 /TVモニタ付インターホン /都市ガス | Price 価格 | | 24,800,000 yen 2480万円 | Floor plan 間取り | | 4LDK 4LDK | Units sold 販売戸数 | | 1 units 1戸 | Total units 総戸数 | | 2 units 2戸 | Land area 土地面積 | | 116.09 sq m (registration) 116.09m2(登記) | Building area 建物面積 | | 96.88 sq m (registration) 96.88m2(登記) | Completion date 完成時期(築年月) | | January 2014 will 2014年1月予定 | Address 住所 | | Isehara, Kanagawa Prefecture wooden door 神奈川県伊勢原市板戸 | Traffic 交通 | | Odawara Line Odakyu "Isehara" walk 20 minutes 小田急小田原線「伊勢原」歩20分
| Related links 関連リンク | | [Related Sites of this company] 【この会社の関連サイト】 | Person in charge 担当者より | | Rep Enari Kota Age: will the 30s we would like the property and looking hard! Request that seems to be difficult even Please feel free to contact us. 担当者江成 光太年齢:30代ご希望の物件を一生懸命お探しします!難しいと思われるご要望もお気軽にご相談下さい。 | Contact お問い合せ先 | | TEL: 0800-602-4998 [Toll free] mobile phone ・ Also available from PHS Caller ID is not notified Please contact the "saw SUUMO (Sumo)" If it does not lead, If the real estate company TEL:0800-602-4998【通話料無料】携帯電話・PHSからもご利用いただけます 発信者番号は通知されません 「SUUMO(スーモ)を見た」と問い合わせください つながらない方、不動産会社の方は
| Building coverage, floor area ratio 建ぺい率・容積率 | | Kenpei rate: 60%, Volume ratio: 200% 建ペい率:60%、容積率:200% | Time residents 入居時期 | | Consultation 相談 | Land of the right form 土地の権利形態 | | Ownership 所有権 | Structure and method of construction 構造・工法 | | Wooden 2-story 木造2階建 | Use district 用途地域 | | Two dwellings 2種住居 | Other limitations その他制限事項 | | Quasi-fire zones 準防火地域 | Overview and notices その他概要・特記事項 | | Contact: Enari Kota, Building confirmation number: the H25 building certification No. KBI03866 The H25 confirmation building No. KBI03868 担当者:江成 光太、建築確認番号:第H25確認建築KBI03866号 第H25確認建築KBI03868号 | Company profile 会社概要 | | <Mediation> Minister of Land, Infrastructure and Transport (1) the first 008,392 No. Century 21 Taise housing Corporation Atsugi headquarters Yubinbango243-0018 Atsugi City, Kanagawa Prefecture Nakamachi 4-16-6 <仲介>国土交通大臣(1)第008392号センチュリー21タイセーハウジング(株)厚木本社〒243-0018 神奈川県厚木市中町4-16-6 |
Same specifications photos (living)同仕様写真(リビング)  Example of construction popular face-to-face kitchen! It is a 15-Pledge of leeway ☆
施工例人気の対面キッチン!ゆとりの15帖です☆
Local photos, including front road前面道路含む現地写真  Local (12 May 2013) Shooting Car space two Allowed!
現地(2013年12月)撮影 カースペース2台可!
Local appearance photo現地外観写真  Zenshitsuminami direction
全室南向き
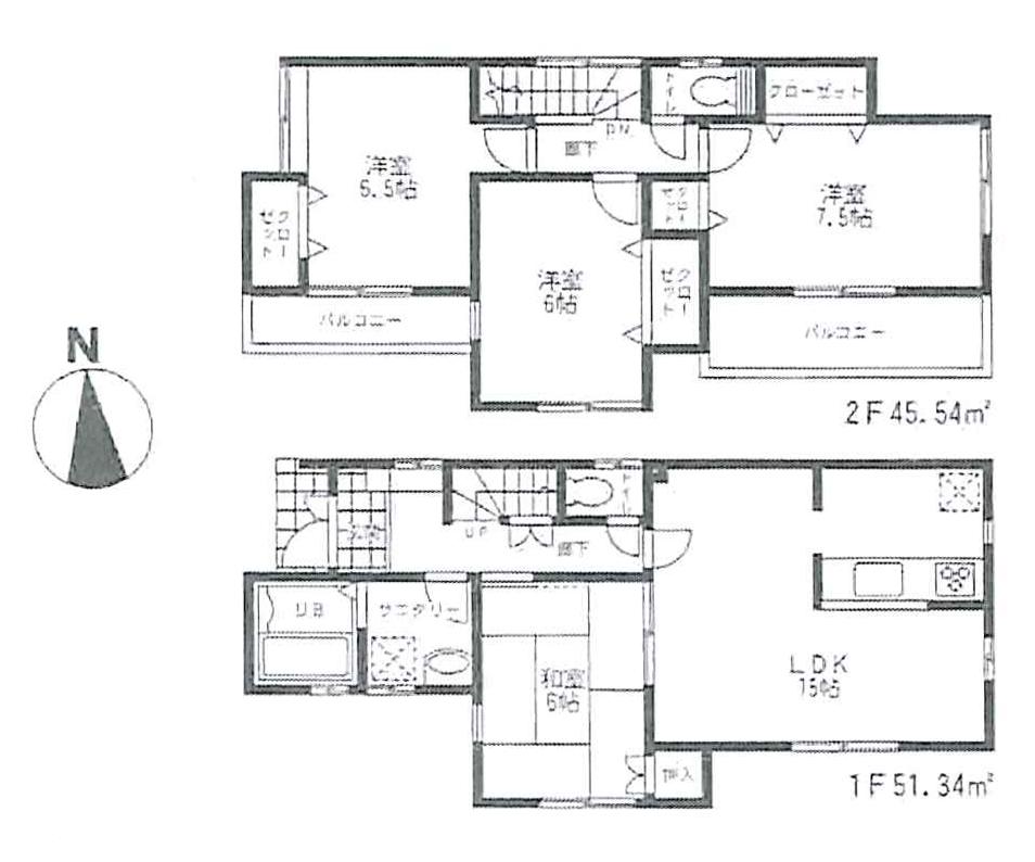
Floor plan間取り図  (1 Building), Price 24,800,000 yen, 4LDK, Land area 116.09 sq m , Building area 96.88 sq m
(1号棟)、価格2480万円、4LDK、土地面積116.09m2、建物面積96.88m2
Same specifications photo (bathroom)同仕様写真(浴室)  Example of construction Bathroom heating dryer
施工例 浴室暖房乾燥機
Same specifications photo (kitchen)同仕様写真(キッチン)  Example of construction
施工例
Convenience storeコンビニ  451m to Circle K Isehara wooden door shop
サークルK伊勢原板戸店まで451m
 The entire compartment Figure
全体区画図
Location
|