|
|
Isehara City, Kanagawa Prefecture
神奈川県伊勢原市
|
|
Odawara Line Odakyu "Isehara" walk 25 minutes
小田急小田原線「伊勢原」歩25分
|
|
Newly built single-family with the location of Isehara Station walk about 25 minutes is the 17.8 million yen! Already completed for, Immediately visit possible !! is ready-to-move-in !!
伊勢原駅 徒歩約25分という立地に新築戸建が1780万円です!!完成済みの為、即見学可能!!即入居可能です!!
|
|
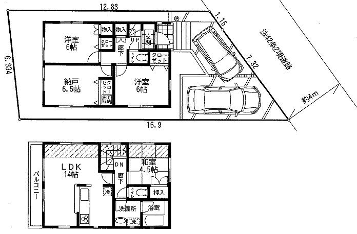
■ "Isehara" station walk about 25 minutes Ota Elementary School about 700m walk 9 minutes Isehara junior high school about 2000m walk 25 minutes ■ Shopping of every day because Coop Kanagawa of about 250m 4-minute walk can be a breeze! ■ It is a residential area calm atmosphere drifts !! ■ Car space has been laid is 2 car dirt floor concrete !!
■「伊勢原」駅 徒歩約25分 太田小学校 約700m 徒歩9分 伊勢原中学校 約2000m 徒歩25分■コープかながわ 約250m 徒歩4分なので毎日のお買いものは楽々可能です!!■穏やかな雰囲気が漂う住宅街です!!■カースペースは2台分土間コンクリートが敷かれてます!!
|
Features pickup 特徴ピックアップ | | Corresponding to the flat-35S / Pre-ground survey / Parking two Allowed / Immediate Available / System kitchen / Bathroom Dryer / All room storage / Japanese-style room / Shaping land / garden / Washbasin with shower / Face-to-face kitchen / Security enhancement / Toilet 2 places / Bathroom 1 tsubo or more / 2-story / Southeast direction / South balcony / Double-glazing / Warm water washing toilet seat / Nantei / The window in the bathroom / TV monitor interphone / High-function toilet / Water filter / All rooms are two-sided lighting フラット35Sに対応 /地盤調査済 /駐車2台可 /即入居可 /システムキッチン /浴室乾燥機 /全居室収納 /和室 /整形地 /庭 /シャワー付洗面台 /対面式キッチン /セキュリティ充実 /トイレ2ヶ所 /浴室1坪以上 /2階建 /東南向き /南面バルコニー /複層ガラス /温水洗浄便座 /南庭 /浴室に窓 /TVモニタ付インターホン /高機能トイレ /浄水器 /全室2面採光 |
Price 価格 | | 17.8 million yen 1780万円 |
Floor plan 間取り | | 3LDK + S (storeroom) 3LDK+S(納戸) |
Units sold 販売戸数 | | 1 units 1戸 |
Total units 総戸数 | | 1 units 1戸 |
Land area 土地面積 | | 102.85 sq m (31.11 square meters) 102.85m2(31.11坪) |
Building area 建物面積 | | 85.86 sq m (25.97 square meters) 85.86m2(25.97坪) |
Driveway burden-road 私道負担・道路 | | Nothing 無 |
Completion date 完成時期(築年月) | | October 2013 2013年10月 |
Address 住所 | | Isehara, Kanagawa Prefecture Numame 5 神奈川県伊勢原市沼目5 |
Traffic 交通 | | Odawara Line Odakyu "Isehara" walk 25 minutes 小田急小田原線「伊勢原」歩25分
|
Related links 関連リンク | | [Related Sites of this company] 【この会社の関連サイト】 |
Person in charge 担当者より | | Person in charge of real-estate and building Sasaki Kanjin Age: 30 Daigyokai experience: standing in six years our customers' point of view, It will be full support! From the introduction of the property, Since we will be happy to help firmly until the after-sales service after delivery, Thank you very much! ! 担当者宅建佐々木 寛仁年齢:30代業界経験:6年お客様の目線に立って、フルサポートさせて頂きます!物件のご紹介から、引渡し後のアフターサービスまでしっかりとお手伝いさせて頂きますので、どうぞ宜しくお願い致します!! |
Contact お問い合せ先 | | TEL: 0120-779620 [Toll free] Please contact the "saw SUUMO (Sumo)" TEL:0120-779620【通話料無料】「SUUMO(スーモ)を見た」と問い合わせください |
Time residents 入居時期 | | Immediate available 即入居可 |
Land of the right form 土地の権利形態 | | Ownership 所有権 |
Structure and method of construction 構造・工法 | | Wooden 2-story 木造2階建 |
Overview and notices その他概要・特記事項 | | Contact: Sasaki Kanjin, Parking: car space 担当者:佐々木 寛仁、駐車場:カースペース |
Company profile 会社概要 | | <Mediation> Kanagawa Governor (2) No. 026309 (Ltd.) clip Yubinbango254-0822 Hiratsuka, Kanagawa Prefecture Sumiredaira 19-1 <仲介>神奈川県知事(2)第026309号(株)クリップ〒254-0822 神奈川県平塚市菫平19-1 |