New Homes » Kanto » Kanagawa Prefecture » Kawasaki City Asao-ku
 
| | Kawasaki City, Kanagawa Prefecture Aso-ku 神奈川県川崎市麻生区 |
| Tamasen Odakyu "Kasuga field" walk 6 minutes 小田急多摩線「はるひ野」歩6分 |
| Walk to Odakyū Tama Line "Kasuga field" Station 6 ~ 9 minutes, Walk to the Keio Sagamihara Line "Wakabadai" Station 13 ~ 16 minutes, South tiers of sunny all 73 compartments. [New Year January 4, 2014 (Saturday) Model home open! ! ] 小田急多摩線「はるひ野」駅へ徒歩6 ~ 9分、京王相模原線「若葉台」駅へ徒歩13 ~ 16分、南ひな壇の陽光溢れる全73区画。【新春2014年1月4日(土) モデルホームオープン!!】 |
| ● land area: 165 sq m more than ● all 73 House ● Tamasen Odakyu "Kasuga field" station walk 6 ~ 8 minutes, "Wakabadai" station walk 13 ~ 15 minutes ● Kawasaki's first! small ・ Medium cooperation schools [Kasuga field Small ・ Junior high school] 12 mins ~ 14 minutes ●土地面積:165m2超●全73邸●小田急多摩線「はるひ野」駅徒歩6 ~ 8分、「若葉台」駅徒歩13 ~ 15分●川崎市初!小・中連携校[はるひ野小・中学校]徒歩12分 ~ 14分 |
Local guide map 現地案内図 | | Local guide map 現地案内図 | Features pickup 特徴ピックアップ | | Design house performance with evaluation / Measures to conserve energy / Parking two Allowed / 2 along the line more accessible / It is close to golf course / It is close to the city / Facing south / Bathroom Dryer / Yang per good / Siemens south road / A quiet residential area / LDK15 tatami mats or more / Or more before road 6m / Corner lot / garden / Washbasin with shower / Face-to-face kitchen / Wide balcony / Toilet 2 places / 2-story / South balcony / Warm water washing toilet seat / Nantei / Underfloor Storage / Leafy residential area / Dish washing dryer / Walk-in closet / Or more ceiling height 2.5m / Water filter / Located on a hill / roof balcony / Flat terrain / Floor heating 設計住宅性能評価付 /省エネルギー対策 /駐車2台可 /2沿線以上利用可 /ゴルフ場が近い /市街地が近い /南向き /浴室乾燥機 /陽当り良好 /南側道路面す /閑静な住宅地 /LDK15畳以上 /前道6m以上 /角地 /庭 /シャワー付洗面台 /対面式キッチン /ワイドバルコニー /トイレ2ヶ所 /2階建 /南面バルコニー /温水洗浄便座 /南庭 /床下収納 /緑豊かな住宅地 /食器洗乾燥機 /ウォークインクロゼット /天井高2.5m以上 /浄水器 /高台に立地 /ルーフバルコニー /平坦地 /床暖房 | Event information イベント情報 | | = Until January 26, New Year your coming campaign held in = ● 1, etc. Pair hotel voucher, such is the first (Japanese-style room Superior corresponding / 1 Hakuyu ・ With Breakfast) ● 2, etc. Mac card 1000 yen ※ On top of your visit, Those who fill out your tour and a predetermined questionnaire of model home will be subject to. ※ Lottery will be once a family. ※ Gift give you such as 1 will be at a later date. Give you location is "hill of Harushia" Information Center. ※ Because there is a limited commodity, No it will end as soon as. = New life support campaign = ● 20 Man point worth of gifts to choose! (1 point 1 yen worth) ~ Consumer electronics course ・ Interior course ・ From department store course, You can choose your favorite course. ~ ※ Those who delivery will be subject to the 2014 end of March. Product will be passing after delivery. ※ It can not be used in conjunction with other campaigns. For more information, please contact. (1 household one-time) =1月26日まで新春ご来場キャンペーン開催中=●1等 はつはなペア宿泊券(和室スーペリア対応/1泊夕・朝食付)●2等 マックカード1000円分※ご来場の上、モデルホームのご見学および所定のアンケートにご記入いただいた方が対象となります。※抽選は1家族1回となります。※1等のプレゼントお渡しは後日となります。お渡し場所は「ハルシアの丘」インフォメーションセンターとなります。※商品に限りがございますので、なくなり次第終了とさせていただきます。=新生活応援キャンペーン=●20万ポイント分の選べるプレゼント!(1ポイント1円相当) ~ 家電コース・インテリアコース・百貨店コースから、お好きなコースをお選びいただけます。 ~ ※2014年3月末までにお引渡しの方が対象となります。商品はお引渡し後のお渡しとなります。※他のキャンペーンと併用はできません。詳しくはお問い合わせください。(1世帯1回限り) | Property name 物件名 | | Hill Harushia 4th secondary ハルシアの丘第4期2次 | Price 価格 | | 50,300,000 yen ・ 55,700,000 yen 5030万円・5570万円 | Floor plan 間取り | | 4LDK 4LDK | Units sold 販売戸数 | | 2 units 2戸 | Total units 総戸数 | | 73 units 73戸 | Land area 土地面積 | | 165.21 sq m ・ 165.25 sq m (49.97 tsubo ・ 49.98 tsubo) (Registration) 165.21m2・165.25m2(49.97坪・49.98坪)(登記) | Building area 建物面積 | | 103.17 sq m ・ 105.53 sq m (31.20 tsubo ・ 31.92 square meters) 103.17m2・105.53m2(31.20坪・31.92坪) | Driveway burden-road 私道負担・道路 | | Public road about about 6m, About 8m asphalt pavement 公道約約6m、約8mアスファルト舗装 | Completion date 完成時期(築年月) | | January 2014 late schedule 2014年1月下旬予定 | Address 住所 | | Kawasaki City, Kanagawa Prefecture Aso-ku Kasuga field 5-13-4 神奈川県川崎市麻生区はるひ野5-13-4他(地番) | Traffic 交通 | | Tamasen Odakyu "Kasuga field" walk 6 minutes Keio Sagamihara Line "Wakabadai" walk 13 minutes 小田急多摩線「はるひ野」歩6分 京王相模原線「若葉台」歩13分
| Related links 関連リンク | | [Related Sites of this company] 【この会社の関連サイト】 | Contact お問い合せ先 | | "Hill of Harushia" Information Center TEL: 0120-092-170 (mobile phone ・ Also available from PHS. ) Please contact the "saw SUUMO (Sumo)" 「ハルシアの丘」インフォメーションセンターTEL:0120-092-170(携帯電話・PHSからもご利用いただけます。)「SUUMO(スーモ)を見た」と問い合わせください | Sale schedule 販売スケジュール | | Registration January 25, ~ January 25, / Lottery Date January 25, [4th secondary registration schedule] Registration date and time January 25, 2014 (Sat) 10:00 ~ 13:00 public agency lottery date and time January 25, 2014 (Sat) 14:00 ~ Registration ・ Public agency lottery location "Hill of Harushia" Information Center ※ At the time of your registration, Your personal seal ・ 2012 years' worth of income certificate ・ Health insurance card ・ Please bring your ID certificate. 登録受付1月25日 ~ 1月25日/抽選日1月25日【第4期2次登録スケジュール】登録受付日時 2014年1月25日(土)10:00 ~ 13:00公開代理抽選日時 2014年1月25日(土)14:00 ~ 登録受付・公開代理抽選場所 「ハルシアの丘」インフォメーションセンター※ご登録の際には、お認印・平成24年分の収入証明書・健康保険証・身分証明書をご持参ください。 | Building coverage, floor area ratio 建ぺい率・容積率 | | Building coverage: 50% (corner lot relaxation 60%), Volume rate of 100% 建ぺい率:50%(角地緩和60%)、容積率100% | Time residents 入居時期 | | March 2014 in late schedule 2014年3月下旬予定 | Land of the right form 土地の権利形態 | | Ownership 所有権 | Structure and method of construction 構造・工法 | | Wooden 2-story (framing method) 木造2階建(軸組工法) | Construction 施工 | | Ltd. Odakyu housing ・ Seibukensetsu Co., Ltd. (building), Ltd. Odakyu land flora ・ Co., Ltd. stone wins Exterior (outer structure) 株式会社小田急ハウジング・西武建設株式会社(建物)、株式会社小田急ランドフローラ・株式会社石勝エクステリア(外構) | Use district 用途地域 | | One low-rise 1種低層 | Land category 地目 | | Residential land 宅地 | Overview and notices その他概要・特記事項 | | Building confirmation number: first H25SBC- Make 01042Y No. other (fiscal date 25 June 28), ※ Transportation: Tamasen Odakyu "Kasuga field" station walk 6 ~ 8 minutes Keio Sagamihara Line "Wakabadai" station walk 13 ~ 15 minutes 建築確認番号:第H25SBC-確01042Y号他(平成25年6月28日付)、※交通:小田急多摩線「はるひ野」駅徒歩6 ~ 8分 京王相模原線「若葉台」駅徒歩13 ~ 15分 | Company profile 会社概要 | | <Seller ・ Business owner ・ Seller ・ Sales company> Minister of Land, Infrastructure and Transport (12) No. 001168 (Corporation) (during the update procedure) (one company) Real Estate Association (one company) Property Distribution Management Association (Corporation) metropolitan area real estate Fair Trade Council member Odakyu Real Estate Co., Ltd. ( <売主・事業主・売主・販売会社>国土交通大臣(12)第001168号(公社)(更新手続中)(一社)不動産協会会員 (一社)不動産流通経営協会会員(公社)首都圏不動産公正取引協議会加盟小田急不動産(株)〒151-0061 東京都渋谷区初台1-47-1 小田急西新宿ビル<売主>国土交通大臣(2)第006809号(一社)不動産流通経営協会会員 (一社)不動産協会会員 (公社)首都圏不動産公正取引協議会会員相鉄不動産販売(株)〒220-0004 神奈川県横浜市西区北幸2-9-14 相鉄本社ビル6階 |
Sale already cityscape photo分譲済街並み写真  While claiming individuality, European mansion to draw a beautiful cityscape with a sense of unity. Sophisticated exterior design shine in leafy streets. It was narrowing created to carefully one House one House. Phase 3 subdivision already the city average (April 2013 shooting)
個性を主張しながらも、統一感のある美しい街並みを描く欧風邸宅。緑豊かな街並みに映える洗練の外観デザイン。一邸一邸ていねいに創り込みました。第3期分譲済街並(2013年4月撮影)
Local appearance photo現地外観写真  Odakyu line "Kasuga field" station walk 6 ~ 8 minutes, Keio Sagamihara Line "Wakabadai" station walk 13 ~ 15 minutes, 2 station 2 line Available. Town of parenting with excellent environment. ※ Local (September shooting 2013) is a composite of the person.
小田急線「はるひ野」駅徒歩6 ~ 8分、京王相模原線「若葉台」駅徒歩13 ~ 15分、2駅2路線利用可。環境に優れた子育ての街。※現地(2013年9月撮影)に人物を合成したものです。
Livingリビング  Dining wrapped in bright sunshine. Also impetus conversation with family. (Model Home ・ 2013 November shooting)
明るい陽射しに包まれるダイニング。家族との会話も弾みます。(モデルホーム・2013年11月撮影)
Kitchenキッチン  Open kitchen that can housework while talking with family, Communication deepens. (Model Home ・ 2013 November shooting)
家族と話しながら家事ができるオープンキッチン、コミュニケーションが深まります。 (モデルホーム・2013年11月撮影)
Bathroom浴室  Adopting the hot water is cold hard Thermo bus lights. Also, It adopted a clean floor and Kururin poi, And it reduces the time and effort of cleaning. Sale already dwelling unit (November 2013) Shooting
お湯が冷めにくいサーモバスライトを採用。また、キレイ床やくるりんポイを採用し、お掃除の手間を軽減します。 分譲済住戸(2013年11月)撮影
Otherその他  Reading Ya be utilized in the family, Also it has established the available study counter as the personal computer space. (Model Home ・ 2013 November shooting)
家族で利用する読書や、パソコンスペースとしても利用できるスタディカウンターを設置しています。 (モデルホーム・2013年11月撮影)
Garden庭  In the bright, large family terrace, Spend the gardening and tea time. Fun will spread. (Model Home ・ 2013 November shooting)
明るく大きなファミリーテラスでは、ガーデニングやティータイムを過ごしたり。楽しみが広がります。 (モデルホーム・2013年11月撮影)
Otherその他  A large garden with a feeling of opening on the south-facing. Pool play of gardening and children can enjoy <Bright stage>. Landscape overlooking the green Kurokawa Yatsu park. Can feel the rich natural <Airy stage>.
南向きで開放感のある広い庭。ガーデニングやお子様のプール遊びが楽しめる<ブライトステージ>。黒川谷ツ公園の緑を望む風景。豊かな自然をかんじることができる<エアリーステージ>。
 The location of the sun full of a hill south of terraced. It is a hill location of good south terraced as an excellent residential area in daylight and sense of openness.
南ひな壇の陽射し溢れる高台の立地。採光や開放感に優れ住宅地として良好な南ひな壇の高台ロケーションです。
Local photos, including front road前面道路含む現地写真  Rich symbiosis of city and nature have been made, City that some people have with the green also lively, New streets will be the birth of the 73 House in this Haruhi field. (Already sale already dwelling unit: October 2012 shooting)
都市と自然の豊かな共生がなされ、人も緑も活き活きとしている街、このはるひ野に73邸の新しい街並みが誕生します。(既分譲済住戸:2012年10月撮影)
Otherその他  One for each residence, Planting a large economic tree or symbol tree and the family tree. It produces a cool rhythm to the streets. ※ Image Photos
各邸に1本、大景木またはシンボルツリーとファミリーツリーを植樹。街並に涼しげリズムを生み出します。※イメージ写真
Primary school小学校  Municipal Kasuga field Small ・ Small to be Kawasaki's first in the 890m April 2008 until junior high school ・ Medium cooperation schools opened. Program to continue to respond to established and educational challenges of today's human form has been practiced through the nine years. (A 12-minute walk ~ 14 minutes)
市立はるひ野小・中学校まで890m 平成20年4月に川崎市初となる小・中連携校が開校。9年間を通して人間形成の確立や今日の教育課題に対して対応していくプログラムが実践されています。(徒歩12分 ~ 14分)
Floor plan間取り図  While claiming individuality, European mansion to draw a beautiful cityscape with a sense of unity. Sophisticated exterior design shine in leafy streets. It was narrowing created to carefully one House one House.
個性を主張しながらも、統一感のある美しい街並みを描く欧風邸宅。緑豊かな街並みに映える洗練の外観デザイン。一邸一邸ていねいに創り込みました。
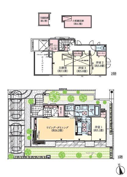
 (No.58), Price 50,300,000 yen, 4LDK, Land area 165.25 sq m , Building area 103.17 sq m
(No.58)、価格5030万円、4LDK、土地面積165.25m2、建物面積103.17m2
Kindergarten ・ Nursery幼稚園・保育園  A bright and relaxed child a 590m "health to private buddy sports kindergarten, Listed sports and through same to foster "the day care to education policy, play ・ Through sports, We brought up the power and confidence to carry through on their own. (Walk 8 ~ 10 minutes)
私立バディスポーツ幼児園 まで590m 「健康で明るく伸びやかな子どもを、スポーツと保育を通 じて育成する」を教育方針に掲げ、遊び・スポーツを通じ、自分でやり遂げる力と自信を育てています。(徒歩8 ~ 10分)
Hospital病院  650m internal medicine until Kasuga field Medical Village, Pediatrics, Dentistry, Dermatology, Orthopedics, Medical Village gynecological are aligned. (Walk 9 ~ 11 minutes)
はるひ野メディカルヴィレッジまで650m 内科、小児科、歯科、皮膚科、整形外科、婦人科が揃うメディカルヴィレッジ。(徒歩9 ~ 11分)
Other Equipmentその他設備  Adopt a quiet and energy saving in excellent dishwasher. Is out easily pull-out in a comfortable position.
静かさと省エネに優れた食器洗い乾燥機を採用。楽な姿勢で出し入れしやすい引き出し式です。
Cooling and heating ・ Air conditioning冷暖房・空調設備  Carefully warm the entire room from the feet, Temperature control and timer set also easy operation possible. Because it does not even wound up dust, hygienical. Available with confidence in your family there are small children.
部屋全体を足元からじっくり暖め、温度調節やタイマーセットも簡単操作可能。ほこりも巻き上げないので、衛生的。小さなお子さまがいるご家族にも安心してご利用いただけます。
Other Equipmentその他設備  To be able to bathe at any time, Thermo bus lights in double warming by a heat insulator of a dedicated set lid and tub, Hot water was devised so hard to cool down. Temperature even after four hours does not fall only about 2 ℃.
いつでも入浴できるように、サーモバスライトは専用の組フタと浴槽の保温材によるダブル保温で、お湯が冷めにくいように工夫しました。4時間後でも温度は約2℃しか下がりません。
Local guide map現地案内図  "Kasuga field" station, "Wakabadai" a comfortable living area of 2 station station can enjoy "hill of Harushia". Wrapped in rich natural, Living environment blessed with living-friendliness and the child-rearing facility.
「はるひ野」駅、「若葉台」駅の2駅の快適な生活圏を享受できる「ハルシアの丘」。豊かな自然に包まれて、暮らしやすさと子育て施設に恵まれた住環境。
Cooling and heating ・ Air conditioning冷暖房・空調設備  In addition to ventilatory function, Drying of clothes of heating function and rainy day to warm the winter of bathroom, One is a multi-functional facilities of the four roles that can be used for a refreshing cool breeze of summer day.
換気機能のほか、冬場の浴室を暖める暖房機能や雨の日の衣類の乾燥、夏の日の爽やかな涼風に使える1台4役の多機能な設備です。
Other Equipmentその他設備  System which purifies all "water" in the house that "drinking water" is of course stuck to "water touching the skin". The purification system that gained a reputation as "I want to use even if the move" from many people in your home who use comes standard with. It reduces material considered offensive, including the chlorine contained in tap water. Leave the minerals contained in tap water. Beverage ・ bath ・ shower ・ Toilet, etc., It will supply safe water to all the house.
“飲む水”はもちろん“肌に触れる水”にもこだわった住まいの「水」全てを浄化するシステム。ご利用いただいたご家庭の多くの方から「転居しても使いたい」と好評を得た浄化システムを標準装備しています。水道水に含まれる塩素をはじめとする不快と考えられる物質を低減します。水道水に含まれるミネラル分を残します。飲料・お風呂・シャワー・トイレ等、家中すべてに安全な水を供給します。
 living ・ Adopted Haisasshi of about 2200mm in the opening part of the dining. In addition living ・ dining, The ceiling height of the Japanese-style room and about 2600mm (with some exceptions), We have to create a bright and open space.
リビング・ダイニングの開口部には約2200mmのハイサッシを採用。さらにリビング・ダイニング、和室の天井高を約2600mm(一部除く)とし、明るく開放的な空間を創出しています。
The entire compartment Figure全体区画図 ![The entire compartment Figure. So far Bright stage inherited the charm of Harushia of (7 House), Airy stage in pursuit functional lifestyle (4 House). [The entire compartment Figure]](/images/kanagawa/kawasakishiasao/9cf9b00212.jpg) So far Bright stage inherited the charm of Harushia of (7 House), Airy stage in pursuit functional lifestyle (4 House). [The entire compartment Figure]
これまでのハルシアの魅力を継承したブライトステージ(7邸)と、機能的なライフスタイルを追及したエアリーステージ(4邸)。【全体区画図】
Shopping centreショッピングセンター  780m grocery to Kasuga field Shopping Center is a Kurishima, Daily necessities are necessities of life are aligned Zurarito and in kawachii. Store passage also widely, Shopping with children is smooth. (A 9-minute walk ~ 11 minutes)
はるひ野ショッピングセンターまで780m 食料品はクリシマで、日用品はカワチでと生活必需品がずらりと揃う。店舗通路も広く、お子様との買い物もスムーズです。(徒歩9分 ~ 11分)
Supermarketスーパー  Sanwa Wakabadai shop ・ Shopping center of around 1280m Wakabadai to Yunidi Wakabadai shop is also a comfortable area that can be used as a living area. (Walk 16 ~ 17 minutes)
三和若葉台店・ユニディ若葉台店まで1280m 若葉台周辺のショッピングセンターも生活圏として使える快適なエリアです。(徒歩16 ~ 17分)
Shopping centreショッピングセンター  1260m super until Frespo Wakabadai, Casual, Sports club, Consumer electronics specialty store, A shopping center that is constituted by a cram school. (Walk 16 ~ 17 minutes)
フレスポ若葉台まで1260m スーパー、カジュアル衣料、スポーツクラブ、家電専門店、学習塾などで構成されているショッピングセンターです。(徒歩16 ~ 17分)
Park公園  It has spread lush living environment such as parks and green spaces in the 910m around until Maruyama Komorebi park. While there within 30 minutes to Shinjuku, It alive is very a lot of green. (A 12-minute walk ~ 14 minutes)
丸山こもれび公園まで910m 周辺には公園や緑地など緑豊かな住環境が広がっています。新宿へ30分圏内にありながら、たいへん多くの緑が息づいています。(徒歩12分 ~ 14分)
Other Environmental Photoその他環境写真  The green space that rich green spread to many 80m local peripheral to Tama Yokoyama of the road, Perfect for a walk course. (Walk 1 ~ 5 minutes)
多摩よこやまの道まで80m 現地周辺には豊富な緑が広がる緑地が多く、お散歩コースにもぴったり。(徒歩1 ~ 5分)
 Keio Rinado Wakabadai Wakabadai continuing a store such as 1160m eateries and drug stores to. It is convenient facilities of the station directly connected. (Walk 15 ~ 17 minutes)
京王リナード若葉台まで1160m 飲食店やドラッグストア等の店舗が連なる若葉台。駅直結の便利な施設です。(徒歩15 ~ 17分)
Location
|