New Homes » Kanto » Kanagawa Prefecture » Kawasaki City Asao-ku
 
| | Kawasaki City, Kanagawa Prefecture Aso-ku 神奈川県川崎市麻生区 |
| Odakyu line "Yomiuri Land before" walk 19 minutes 小田急線「読売ランド前」歩19分 |
| Odakyu line Yomiuri land before Station walk 19 minutes ・ Yurikeoka Station walk 20 minutes ・ ShinYurikeoka Station bus 12 minutes and 3 Station available good location! It is new construction sale of all six buildings of long-term high-quality housing! Please do not contact us once! 小田急線 読売ランド前駅 徒歩19分・百合ヶ丘駅 徒歩20分・新百合ヶ丘駅 バス12分と3駅利用可能な好立地!長期優良住宅の全6棟の新築分譲です!是非一度お問い合わせ下さいませ! |
| Long-term high-quality housing, Corresponding to the flat-35S, Pre-ground survey, Parking two Allowed, LDK20 tatami mats or more, Facing south, System kitchen, Bathroom Dryer, Yang per good, All room storage, Siemens south road, A quiet residential area, Or more before road 6m, Corner lotese-style room, Face-to-face kitchen, Wide balcony, Barrier-free, Toilet 2 places, Bathroom 1 tsubo or more, 2-story, 2 or more sides balcony, South balcony, loft, Underfloor Storage, The window in the bathroom, TV monitor interphone, Leafy residential area, Mu front building, Ventilation good, All living room flooring, Walk-in closet, Living stairs, City gas 長期優良住宅、フラット35Sに対応、地盤調査済、駐車2台可、LDK20畳以上、南向き、システムキッチン、浴室乾燥機、陽当り良好、全居室収納、南側道路面す、閑静な住宅地、前道6m以上、角地、和室、対面式キッチン、ワイドバルコニー、バリアフリー、トイレ2ヶ所、浴室1坪以上、2階建、2面以上バルコニー、南面バルコニー、ロフト、床下収納、浴室に窓、TVモニタ付インターホン、緑豊かな住宅地、前面棟無、通風良好、全居室フローリング、ウォークインクロゼット、リビング階段、都市ガス |
Features pickup 特徴ピックアップ | | Long-term high-quality housing / Corresponding to the flat-35S / Pre-ground survey / Parking two Allowed / It is close to the city / Facing south / System kitchen / Bathroom Dryer / Yang per good / All room storage / Siemens south road / A quiet residential area / LDK15 tatami mats or more / Or more before road 6m / Corner lot / Japanese-style room / Face-to-face kitchen / Wide balcony / Barrier-free / Toilet 2 places / Bathroom 1 tsubo or more / 2-story / 2 or more sides balcony / South balcony / loft / Underfloor Storage / The window in the bathroom / TV monitor interphone / Leafy residential area / Urban neighborhood / Mu front building / Ventilation good / All living room flooring / Walk-in closet / City gas 長期優良住宅 /フラット35Sに対応 /地盤調査済 /駐車2台可 /市街地が近い /南向き /システムキッチン /浴室乾燥機 /陽当り良好 /全居室収納 /南側道路面す /閑静な住宅地 /LDK15畳以上 /前道6m以上 /角地 /和室 /対面式キッチン /ワイドバルコニー /バリアフリー /トイレ2ヶ所 /浴室1坪以上 /2階建 /2面以上バルコニー /南面バルコニー /ロフト /床下収納 /浴室に窓 /TVモニタ付インターホン /緑豊かな住宅地 /都市近郊 /前面棟無 /通風良好 /全居室フローリング /ウォークインクロゼット /都市ガス | Price 価格 | | 30,800,000 yen 3080万円 | Floor plan 間取り | | 3LDK 3LDK | Units sold 販売戸数 | | 1 units 1戸 | Total units 総戸数 | | 6 units 6戸 | Land area 土地面積 | | 131.01 sq m (39.63 square meters) 131.01m2(39.63坪) | Building area 建物面積 | | 95.64 sq m (28.93 square meters) 95.64m2(28.93坪) | Driveway burden-road 私道負担・道路 | | Road width: 5.5m ~ 6.48m, Concrete pavement 道路幅:5.5m ~ 6.48m、コンクリート舗装 | Completion date 完成時期(築年月) | | In mid-August 2013 2013年8月中旬 | Address 住所 | | Kawasaki City, Kanagawa Prefecture Aso-ku Higashiyurigaoka 1 神奈川県川崎市麻生区東百合丘1 | Traffic 交通 | | Odakyu line "Yomiuri Land before" walk 19 minutes Odakyu line "Yurikeoka" walk 20 minutes Odakyu line "Shinyurigaoka" Taif 7 minutes of the bus in 12 minutes 小田急線「読売ランド前」歩19分 小田急線「百合ヶ丘」歩20分 小田急線「新百合ヶ丘」バス12分中の台歩7分
| Related links 関連リンク | | [Related Sites of this company] 【この会社の関連サイト】 | Person in charge 担当者より | | Person in charge of real-estate and building FP Sugiyama Toyoji Age: 30 Daigyokai Experience: 9 years buying and selling our strengths in close contact with the local specialty shop, We run around every day so that customers can introduce the "regret of not the best house" in a square. I myself are also born and raised in Kawasaki City Miyamae-ku,, Such as information of local also Please feel free to contact us. 担当者宅建FP杉山 豊司年齢:30代業界経験:9年売買専門店で地域に密着した弊社の強み、お客様が方に「後悔のない最高のお家」をご紹介できるように日々走り回っております。私自身も川崎市宮前区で生まれ育っており、地域の情報などもお気軽にご相談下さい。 | Contact お問い合せ先 | | TEL: 0800-602-6173 [Toll free] mobile phone ・ Also available from PHS Caller ID is not notified Please contact the "saw SUUMO (Sumo)" If it does not lead, If the real estate company TEL:0800-602-6173【通話料無料】携帯電話・PHSからもご利用いただけます 発信者番号は通知されません 「SUUMO(スーモ)を見た」と問い合わせください つながらない方、不動産会社の方は
| Building coverage, floor area ratio 建ぺい率・容積率 | | Kenpei rate: 50%, Volume ratio: 80% 建ペい率:50%、容積率:80% | Time residents 入居時期 | | Consultation 相談 | Land of the right form 土地の権利形態 | | Ownership 所有権 | Structure and method of construction 構造・工法 | | Wooden 2-story (2 × 4 construction method) 木造2階建(2×4工法) | Use district 用途地域 | | One low-rise 1種低層 | Land category 地目 | | Residential land 宅地 | Overview and notices その他概要・特記事項 | | Contact: Sugiyama Toyoji 担当者:杉山 豊司 | Company profile 会社概要 | | <Mediation> Governor of Kanagawa Prefecture (1) the first 027,972 No. Century 21 Home Life Co., Ltd. Yubinbango214-0013 Kawasaki City, Kanagawa Prefecture Tama-ku, Noboritoshin cho address 409 <仲介>神奈川県知事(1)第027972号センチュリー21ホームライフ(株)〒214-0013 神奈川県川崎市多摩区登戸新町409番地 |
Local appearance photo現地外観写真  Local (10 May 2013) shooting 5 Building
現地(2013年10月)撮影5号棟
 Local (10 May 2013) Shooting Building 3
現地(2013年10月)撮影 3号棟
 Local (10 May 2013) Shooting 1 Building
現地(2013年10月)撮影 1号棟
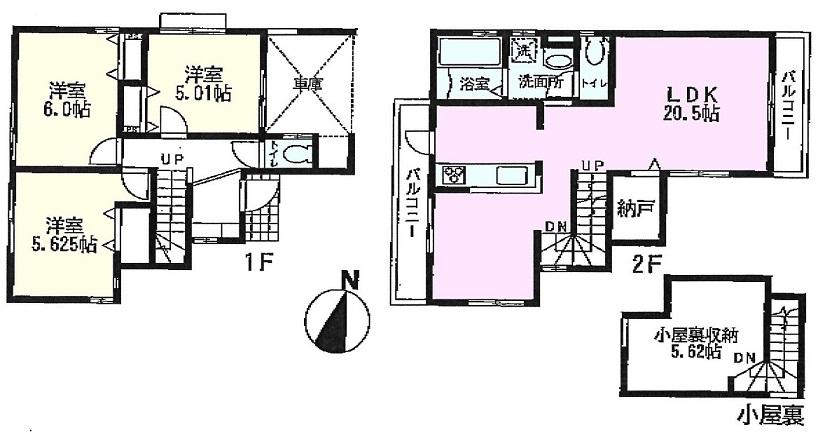
Floor plan間取り図  (6 Building), Price 30,800,000 yen, 3LDK, Land area 131.01 sq m , Building area 95.64 sq m
(6号棟)、価格3080万円、3LDK、土地面積131.01m2、建物面積95.64m2
Local appearance photo現地外観写真  Local (10 May 2013) Shooting Building 2
現地(2013年10月)撮影 2号棟
Livingリビング  Local (10 May 2013) Shooting
現地(2013年10月)撮影
Bathroom浴室  Local (10 May 2013) Shooting
現地(2013年10月)撮影
Kitchenキッチン  Local (10 May 2013) Shooting
現地(2013年10月)撮影
Non-living roomリビング以外の居室  Local (10 May 2013) Shooting
現地(2013年10月)撮影
Entrance玄関  Local (10 May 2013) Shooting
現地(2013年10月)撮影
Wash basin, toilet洗面台・洗面所  Local (10 May 2013) Shooting
現地(2013年10月)撮影
Receipt収納  Local (10 May 2013) Shooting
現地(2013年10月)撮影
Toiletトイレ  Local (10 May 2013) Shooting
現地(2013年10月)撮影
Garden庭  Local (10 May 2013) Shooting
現地(2013年10月)撮影
Balconyバルコニー  Local (10 May 2013) Shooting
現地(2013年10月)撮影
Other introspectionその他内観  Local (10 May 2013) Shooting
現地(2013年10月)撮影
Local appearance photo現地外観写真  Local (10 May 2013) Shooting
現地(2013年10月)撮影
Livingリビング  Local (10 May 2013) Shooting
現地(2013年10月)撮影
Kitchenキッチン  Local (10 May 2013) Shooting
現地(2013年10月)撮影
Non-living roomリビング以外の居室  Local (10 May 2013) Shooting
現地(2013年10月)撮影
 Local (10 May 2013) Shooting
現地(2013年10月)撮影
Location
|