New Homes » Kanto » Kanagawa Prefecture » Kawasaki City Asao-ku
 
| | Kawasaki City, Kanagawa Prefecture Aso-ku 神奈川県川崎市麻生区 |
| Odakyu line "Shinyurigaoka" bus 11 minutes Ayumi Mukaihara 2 minutes 小田急線「新百合ヶ丘」バス11分向原歩2分 |
| Leafy quiet residential area. All seven buildings of the development condominiums. Colorful equipment standard equipment Storage is also abundant. Parking space two Bun'yu Long-term quality housing certification 緑の多い閑静な住宅街。全7棟の開発分譲住宅です。多彩な設備標準装備 収納も豊富です。駐車スペース2台分有 長期優良住宅認定 |
Features pickup 特徴ピックアップ | | Long-term high-quality housing / Vibration Control ・ Seismic isolation ・ Earthquake resistant / Seismic fit / Parking two Allowed / It is close to golf course / Facing south / System kitchen / Bathroom Dryer / Yang per good / All room storage / LDK15 tatami mats or more / Japanese-style room / Washbasin with shower / Face-to-face kitchen / Toilet 2 places / 2-story / South balcony / Double-glazing / Warm water washing toilet seat / Underfloor Storage / The window in the bathroom / TV monitor interphone / Leafy residential area / Ventilation good / Dish washing dryer / City gas / All rooms are two-sided lighting / terrace 長期優良住宅 /制震・免震・耐震 /耐震適合 /駐車2台可 /ゴルフ場が近い /南向き /システムキッチン /浴室乾燥機 /陽当り良好 /全居室収納 /LDK15畳以上 /和室 /シャワー付洗面台 /対面式キッチン /トイレ2ヶ所 /2階建 /南面バルコニー /複層ガラス /温水洗浄便座 /床下収納 /浴室に窓 /TVモニタ付インターホン /緑豊かな住宅地 /通風良好 /食器洗乾燥機 /都市ガス /全室2面採光 /テラス | Price 価格 | | 42,500,000 yen 4250万円 | Floor plan 間取り | | 4LDK 4LDK | Units sold 販売戸数 | | 1 units 1戸 | Land area 土地面積 | | 143.7 sq m (measured) 143.7m2(実測) | Building area 建物面積 | | 96.05 sq m (measured) 96.05m2(実測) | Driveway burden-road 私道負担・道路 | | Nothing, East 6m width 無、東6m幅 | Completion date 完成時期(築年月) | | February 2014 2014年2月 | Address 住所 | | Kawasaki City, Kanagawa Prefecture Aso-ku Mukaihara 3 神奈川県川崎市麻生区向原3 | Traffic 交通 | | Odakyu line "Shinyurigaoka" bus 11 minutes Ayumi Mukaihara 2 minutes 小田急線「新百合ヶ丘」バス11分向原歩2分
| Related links 関連リンク | | [Related Sites of this company] 【この会社の関連サイト】 | Person in charge 担当者より | | Rep Okazaki Personage Age: 30 Daigyokai experience: In two years, Ltd. Anshin My Home, To dispel concerns about real estate purchase even a little, We offer peace of mind as a professional real estate sales. "Appropriate purchase price," "mortgage rates comparison," "disaster", etc., Please feel free to contact us. 担当者岡崎 人士年齢:30代業界経験:2年株式会社あんしんマイホームでは、不動産購入に対する不安を少しでも払拭し、不動産販売のプロとして安心をご提供いたします。「適正な購入価格」「住宅ローン金利比較」「災害」等、お気軽にご相談下さい。 | Contact お問い合せ先 | | TEL: 0800-602-5886 [Toll free] mobile phone ・ Also available from PHS Caller ID is not notified Please contact the "saw SUUMO (Sumo)" If it does not lead, If the real estate company TEL:0800-602-5886【通話料無料】携帯電話・PHSからもご利用いただけます 発信者番号は通知されません 「SUUMO(スーモ)を見た」と問い合わせください つながらない方、不動産会社の方は
| Building coverage, floor area ratio 建ぺい率・容積率 | | 40% ・ 80% 40%・80% | Time residents 入居時期 | | March 2014 schedule 2014年3月予定 | Land of the right form 土地の権利形態 | | Ownership 所有権 | Structure and method of construction 構造・工法 | | Wooden 2-story 木造2階建 | Use district 用途地域 | | One low-rise 1種低層 | Other limitations その他制限事項 | | Regulations have by the Landscape Act, Residential land development construction regulation area, Height district, Height ceiling Yes, Shade limit Yes, Setback Yes 景観法による規制有、宅地造成工事規制区域、高度地区、高さ最高限度有、日影制限有、壁面後退有 | Overview and notices その他概要・特記事項 | | Contact: Okazaki Personage, Facilities: Public Water Supply, This sewage, City gas, Building confirmation number: No. SHC116476, Parking: car space 担当者:岡崎 人士、設備:公営水道、本下水、都市ガス、建築確認番号:SHC116476号、駐車場:カースペース | Company profile 会社概要 | | <Mediation> Governor of Kanagawa Prefecture (1) the first 027,909 No. FP housing counseling network Co., Ltd. Anshin My Home Yubinbango213-0011 Kawasaki City, Kanagawa Prefecture Takatsu-ku, Hisamoto 3-13-10 <仲介>神奈川県知事(1)第027909号FP住宅相談ネットワーク(株)あんしんマイホーム〒213-0011 神奈川県川崎市高津区久本3-13-10 |
Floor plan間取り図  42,500,000 yen, 4LDK, Land area 143.7 sq m , Building area 96.05 sq m floor plan
4250万円、4LDK、土地面積143.7m2、建物面積96.05m2 間取図
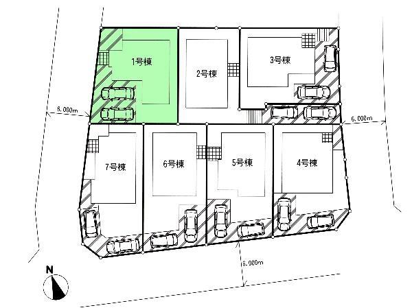
Compartment figure区画図  42,500,000 yen, 4LDK, Land area 143.7 sq m , Building area 96.05 sq m compartment view
4250万円、4LDK、土地面積143.7m2、建物面積96.05m2 区画図
Location
|