New Homes » Kanto » Kanagawa Prefecture » Kawasaki-ku
 
| | Kawasaki-shi, Kanagawa-ku, Kawasaki 神奈川県川崎市川崎区 |
| Keikyū Daishi Line "Suzukicho" walk 18 minutes 京急大師線「鈴木町」歩18分 |
| There is a bright and airy at the front road 6m, And out of your car is a rich Ease! small ・ Junior high school and park, A new life in an environment such as supermarkets and hospitals fulfilling within walking distance! 前面道路6mで明るく開放感があり、お車の出し入れがラクラクな立地です!小・中学校や公園、スーパーや病院などが徒歩圏内に充実した環境で新生活を! |
| 2 along the line more accessible, Super close, Or more before road 6m, Shaping land, City gas, Building plan example there 2沿線以上利用可、スーパーが近い、前道6m以上、整形地、都市ガス、建物プラン例有り |
Features pickup 特徴ピックアップ | | 2 along the line more accessible / Super close / Or more before road 6m / Shaping land / City gas / Building plan example there 2沿線以上利用可 /スーパーが近い /前道6m以上 /整形地 /都市ガス /建物プラン例有り | Price 価格 | | 21.6 million yen ・ 22.6 million yen 2160万円・2260万円 | Building coverage, floor area ratio 建ぺい率・容積率 | | Kenpei rate: 80% ・ 60%, Volume ratio: 300% ・ 200% 建ペい率:80%・60%、容積率:300%・200% | Sales compartment 販売区画数 | | 3 compartment 3区画 | Total number of compartments 総区画数 | | 3 compartment 3区画 | Land area 土地面積 | | 48.03 sq m ~ 49.75 sq m (registration) 48.03m2 ~ 49.75m2(登記) | Driveway burden-road 私道負担・道路 | | Road width: 6.0m 道路幅:6.0m | Land situation 土地状況 | | Vacant lot 更地 | Address 住所 | | Kawasaki City, Kanagawa Prefecture, Kawasaki-ku, Fujisaki 4 神奈川県川崎市川崎区藤崎4 | Traffic 交通 | | Keikyū Daishi Line "Suzukicho" walk 18 minutes JR Keihin Tohoku Line "Kawasaki" bus 9 minutes Lingang hospital before walking 1 minute JR Tokaido Line "Kawasaki" bus 9 minutes Lingang hospital before walking 1 minute 京急大師線「鈴木町」歩18分 JR京浜東北線「川崎」バス9分臨港病院前歩1分 JR東海道本線「川崎」バス9分臨港病院前歩1分
| Related links 関連リンク | | [Related Sites of this company] 【この会社の関連サイト】 | Person in charge 担当者より | | Personnel Morito Kumabe Age: 20 Daigyokai Experience: 1 year salesman of living life is knowledge also rich in, We have to take care of the attentive. You should be looking always satisfactory properties. We look forward with all employees smile! ! * Not for each property attaches responsible for each customer 担当者隈部守人年齢:20代業界経験:1年リビングライフの営業マンは知識も豊富で、気配りを大事にしています。必ず満足のいく物件探しができるはずです。社員一同笑顔でお待ちしております!! *物件毎ではなくお客様毎に担当がつきます | Contact お問い合せ先 | | TEL: 0800-603-1506 [Toll free] mobile phone ・ Also available from PHS Caller ID is not notified Please contact the "saw SUUMO (Sumo)" If it does not lead, If the real estate company TEL:0800-603-1506【通話料無料】携帯電話・PHSからもご利用いただけます 発信者番号は通知されません 「SUUMO(スーモ)を見た」と問い合わせください つながらない方、不動産会社の方は
| Most price range 最多価格帯 | | 21 million yen (two-compartment) 2100万円台(2区画) | Land of the right form 土地の権利形態 | | Ownership 所有権 | Building condition 建築条件 | | With 付 | Time delivery 引き渡し時期 | | Mid-January 2014 2014年1月中旬予定 | Land category 地目 | | Residential land 宅地 | Use district 用途地域 | | Two dwellings, Residential 2種住居、近隣商業 | Other limitations その他制限事項 | | Height district, Quasi-fire zones 高度地区、準防火地域 | Overview and notices その他概要・特記事項 | | Contact: Morito Kumabe, Facilities: Public Water Supply, This sewage, City gas 担当者:隈部守人、設備:公営水道、本下水、都市ガス | Company profile 会社概要 | | <Mediation> Minister of Land, Infrastructure and Transport (2) No. 007124 (Corporation) All Japan Real Estate Association (Corporation) metropolitan area real estate Fair Trade Council member (Ltd.) living life Kawasaki branch Yubinbango210-0012 Kawasaki City, Kanagawa Prefecture, Kawasaki-ku, Miyamae-cho, 2-3 living life Kawasaki building <仲介>国土交通大臣(2)第007124号(公社)全日本不動産協会会員 (公社)首都圏不動産公正取引協議会加盟(株)リビングライフ川崎支店〒210-0012 神奈川県川崎市川崎区宮前町2-3 リビングライフ川崎ビル |
Local land photo現地土地写真  Local (2013 November shooting)
現地(平成25年11月撮影)
Local photos, including front road前面道路含む現地写真  Local (2013 November shooting)
現地(平成25年11月撮影)
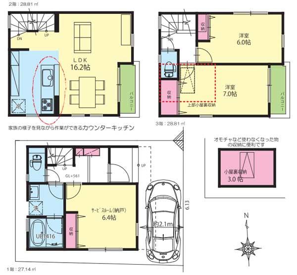
Building plan example (floor plan)建物プラン例(間取り図)  Building plan example (A section) 2LDK + S, Land price 21.6 million yen, Land area 49.75 sq m , Building price 12.2 million yen, Building area 84.76 sq m
建物プラン例(A区画)2LDK+S、土地価格2160万円、土地面積49.75m2、建物価格1220万円、建物面積84.76m2
Primary school小学校  650m to the Kawasaki Municipal Fujisaki Elementary School
川崎市立藤崎小学校まで650m
 The entire compartment Figure
全体区画図
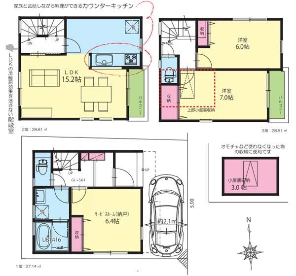
Building plan example (floor plan)建物プラン例(間取り図)  Building plan example (B compartment) 2LDK + S, Land price 21.6 million yen, Land area 48.03 sq m , Building price 12.2 million yen, Building area 84.76 sq m
建物プラン例(B区画)2LDK+S、土地価格2160万円、土地面積48.03m2、建物価格1220万円、建物面積84.76m2
Junior high school中学校  450m to Kawasaki City Kawanakajima junior high school
川崎市立川中島中学校まで450m
Building plan example (floor plan)建物プラン例(間取り図)  Building plan example (C partition) 2LDK + S, Land price 22.6 million yen, Land area 49.57 sq m , Building price 12.2 million yen, Building area 84.76 sq m
建物プラン例(C区画)2LDK+S、土地価格2260万円、土地面積49.57m2、建物価格1220万円、建物面積84.76m2
Park公園  950m to Sakuragawa park
桜川公園まで950m
 1100m to Fujimi Park
富士見公園まで1100m
Shopping centreショッピングセンター  Ito-Yokado 1000m until Kawasaki port city shop
イトーヨーカドー川崎港町店まで1000m
Hospital病院  NKK 1300m to the hospital
日本鋼管病院まで1300m
 500m to Kawasaki cooperative hospital
川崎協同病院まで500m
 1600m, up to a total Shinkawa Bridge Hospital
総合新川橋病院まで1600m
Supermarketスーパー  800m up to life Kawasaki Sakura head office
ライフ川崎桜本店まで800m
Location
|