New Homes » Kanto » Kanagawa Prefecture » Kawasaki Miyamae-ku
 
| | Kawasaki City, Kanagawa Prefecture Miyamae-ku, 神奈川県川崎市宮前区 |
| Denentoshi Tokyu "Miyazakidai" walk 15 minutes 東急田園都市線「宮崎台」歩15分 |
Property name 物件名 | | Deer Star Court Miyazakidai / Notice advertising ディアスタコート宮崎台/予告広告 | Price 価格 | | 64 million yen ~ 77 million yen (planned) 6400万円 ~ 7700万円台(予定) | Floor plan 間取り | | 3LDK ・ 4LDK 3LDK・4LDK | Units sold 販売戸数 | | Undecided 未定 | Total units 総戸数 | | 16 houses 16戸 | Land area 土地面積 | | 125.03 sq m ~ 125.13 sq m 125.03m2 ~ 125.13m2 | Building area 建物面積 | | 98.94 sq m ~ 99.98 sq m (measured) 98.94m2 ~ 99.98m2(実測) | Driveway burden-road 私道負担・道路 | | About 5.0m ・ About 4.5m development road ※ Asphaltic pavement, North about 6.5m on public roads, South about 12.0m on public roads 約5.0m・約4.5m開発道路※アスファルト舗装、北側約6.5m公道、南側約12.0m公道 | Completion date 完成時期(築年月) | | October 2013 2013年10月 | Address 住所 | | Kawasaki-shi, Kanagawa-ku, Miyamae Miyazaki 6-3-3, 神奈川県川崎市宮前区宮崎6-3-3、他 | Traffic 交通 | | Denentoshi Tokyu "Miyazakidai" walk 15 minutes Tokyu "Miyazaki fourth park" walk 1 minute Denentoshi Tokyu "Miyamaedaira" walk 14 minutes 東急田園都市線「宮崎台」歩15分 東急バス「宮崎第四公園」歩1分東急田園都市線「宮前平」歩14分
| Related links 関連リンク | | [Related Sites of this company] 【この会社の関連サイト】 | Contact お問い合せ先 | | "Deer Star Court Miyazakidai" Information Center TEL: 0120-033-016 [Toll free] (mobile phone ・ Also available from PHS. ) Please contact the "saw SUUMO (Sumo)" 「ディアスタコート宮崎台」インフォメーションセンターTEL:0120-033-016【通話料無料】(携帯電話・PHSからもご利用いただけます。)「SUUMO(スーモ)を見た」と問い合わせください | Sale schedule 販売スケジュール | | Sales start from late January 2014 January 11, 2011 [soil] More New Year model house open! [By appointment only] Phase 1 primary ・ Secondary registration thanks! The next sale ・ Petition being accepted! Until you start selling you can not apply for a contract or reservation. Also, Measures for Protection of the order application will not be taken. Please note. Site area ・ The building area is the one corresponding to the next time the number of sales House. The number of sales House will be announced at the time of this ad. It plans to sell time / 2014 in late January 1月下旬より販売開始2014年1月11日[土]より新春モデルハウスオープン![完全予約制]第1期1次・2次登録御礼!次回販売・要望書受付中!販売を開始するまでは契約または予約の申し込みはできません。また、申込み順位の確保に関する措置は講じられません。予めご了承ください。敷地面積・建物面積は次回販売邸数に対応したものです。販売邸数は本広告時にお知らせいたします。販売予定時期/平成26年1月下旬 | Event information イベント情報 | | Model house (Please be sure to ask in advance) schedule / Every Saturday, Sunday and public holidays time / 10:00 ~ 18:00 January 11, 2014 [soil] More New Year model house open! [By appointment only] モデルハウス(事前に必ずお問い合わせください)日程/毎週土日祝時間/10:00 ~ 18:002014年1月11日[土]より新春モデルハウスオープン![完全予約制] | Building coverage, floor area ratio 建ぺい率・容積率 | | Building coverage / 50% (corner lot relaxation 60%), Floor-area ratio / 80% 建ぺい率/50%(角地緩和60%)、容積率/80% | Time residents 入居時期 | | December 2013 2013年12月 | Land of the right form 土地の権利形態 | | Ownership 所有権 | Structure and method of construction 構造・工法 | | Wooden frame construction ・ Two-story 木造枠組壁工法・2階建て | Construction 施工 | | Tsudasangyo Co., Ltd. 津田産業株式会社 | Use district 用途地域 | | One low-rise 1種低層 | Land category 地目 | | Residential land 宅地 | Other limitations その他制限事項 | | Residential land development construction regulation area, Height district 宅地造成工事規制区域、高度地区 | Company profile 会社概要 | | <Seller> Minister of Land, Infrastructure and Transport (9) No. 003126 No. Ryoju Estate Co., Ltd. Yubinbango108-0014 Shiba, Minato-ku, Tokyo 5-34-6 Nitta-cho Building 8th floor <marketing alliance (agency)> Minister of Land, Infrastructure and Transport (9) <売主>国土交通大臣(9)第003126号菱重エステート(株)〒108-0014 東京都港区芝5-34-6 新田町ビル8階<販売提携(代理)>国土交通大臣(9)第002885号(更新中)(一社)不動産協会会員東京建物不動産販売(株)住宅販売部〒160-0023 東京都新宿区西新宿1-25-1 新宿センタ-ビル |
Local photos, including front road前面道路含む現地写真  Feel the changing of the seasons, In a green living environment, All 16 House House Street District birth! (2013 November shooting)
季節の移り変わりを感じられる、緑豊かな住環境に、全16邸 戸建て街区誕生!(2013年11月撮影)
![Local photos, including front road. [No. 2 House model House appearance] Material in pursuit of quality to the graceful appearance. Design and attention to detail. (September 2013 shooting)](/images/kanagawa/kawasakishimiyamae/9633ad0059.jpg) [No. 2 House model House appearance] Material in pursuit of quality to the graceful appearance. Design and attention to detail. (September 2013 shooting)
【2号邸モデルハウス外観】優美な外観に上質を追求したマテリアル。ディテールにまでこだわった設計。(2013年9月撮影)
![Local photos, including front road. [Premium Park reception area] Miyazaki fourth park 1 minute of the permanent House District on the south side. (2013 November shooting)](/images/kanagawa/kawasakishimiyamae/9633ad0078.jpg) [Premium Park reception area] Miyazaki fourth park 1 minute of the permanent House District on the south side. (2013 November shooting)
【プレミアムパークフロント エリア】南側に宮崎第四公園1分の永住邸区。(2013年11月撮影)
![Local photos, including front road. [Breeze Terrace area] Area of the hill home to difference in height of about 2.0m between the north and south. (2013 November shooting)](/images/kanagawa/kawasakishimiyamae/9633ad0079.jpg) [Breeze Terrace area] Area of the hill home to difference in height of about 2.0m between the north and south. (2013 November shooting)
【ブリーズテラス エリア】南北間で約2.0mの高低差を擁する高台のエリア。(2013年11月撮影)
The entire compartment Figure全体区画図 ![The entire compartment Figure. Premium Park Front ~ From along the park to the south terraced, light, Wind, As green is spread to all. [Sky balcony by the issue House, Step storage will have been planning. ]](/images/kanagawa/kawasakishimiyamae/9633ad0037.jpg) Premium Park Front ~ From along the park to the south terraced, light, Wind, As green is spread to all. [Sky balcony by the issue House, Step storage will have been planning. ]
プレミアムパークフロント ~ 公園沿いから南ひな壇へ、光、風、緑がすべてに行き渡るように。【号邸によりスカイバルコニー、ステップストレージがプランニングされております。】
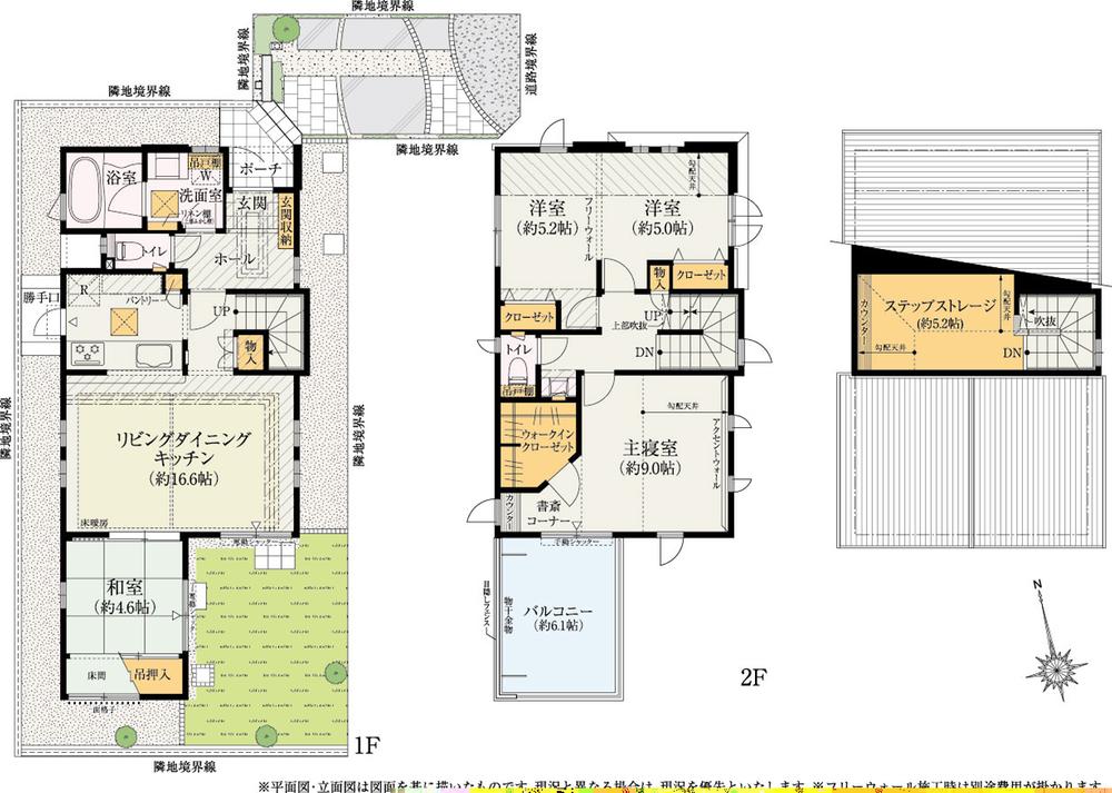
 Floor plan
間取り図
 Floor plan
間取り図
 Floor plan
間取り図
 Floor plan
間取り図
Model house photoモデルハウス写真  Folding on the ceiling, Living who created the quality of the space in the full open kitchen ・ Dining (No. 2 House, 2013 September shooting)
折上天井、フルオープンキッチンで空間の上質を創造したリビング・ダイニング(2号邸2013年9月撮影)
Kitchenキッチン  Also stocked various functions, Stylish kitchen up a notch. (No. 2 House, 2013 September shooting)
多彩な機能も揃えた、ワンランク上のスタイリッシュキッチン。(2号邸2013年9月撮影)
Balconyバルコニー ![Balcony. [Sky balcony] Under the sky of, Loose and the green of the park, A space where you can enjoy in private. (No. 2 House, 2013 September shooting)](/images/kanagawa/kawasakishimiyamae/9633ad0061.jpg) [Sky balcony] Under the sky of, Loose and the green of the park, A space where you can enjoy in private. (No. 2 House, 2013 September shooting)
[スカイバルコニー]空の下、公園の緑をゆったりと、プライベートに楽しめる空間を。(2号邸2013年9月撮影)
Non-living roomリビング以外の居室  Equipped with a walk-in closet of a large capacity, The main bedroom of gradient high ceiling. (No. 2 House, 2013 September shooting)
大容量のウォークインクローゼットを備えた、勾配高天井の主寝室。(2号邸2013年9月撮影)
Receipt収納 ![Receipt. [Step storage] Storage of course, Space that can be used for multi-purpose. (No. 1 House, 2013 September shooting)](/images/kanagawa/kawasakishimiyamae/9633ad0063.jpg) [Step storage] Storage of course, Space that can be used for multi-purpose. (No. 1 House, 2013 September shooting)
[ステップストレージ]収納はもちろん、多目的に使える空間。(1号邸2013年9月撮影)
Supermarketスーパー  Convenient to 590m day-to-day shopping to Tokyu Store Tokyu Store Chain. Shopping is conveniently located in Tokyu Miyamaedaira Shopping Park complex in the facility.
東急ストアまで590m 日々の買い物に便利な東急ストア。東急宮前平ショッピングパーク複合施設内にありお買いものが便利です。
Shopping centreショッピングセンター  Tokyu Miyamaedaira Shopping Park complex that would solo 590m each specialty store to. Education facilities and internal medicine, such as nursery school ・ Department of Gastroenterology ・ Pediatrics ・ We move also clinic that specializes in surgery.
東急宮前平ショッピングパークまで590m 各専門店がそろう複合施設。保育園などの教育施設や内科・消化器科・小児科・外科を専門とするクリニックも入居しています。
Junior high school中学校  Is also known as junior high school of Bunburyodo that he stands out in the national level in club activities at 360m academic until the municipal Miyamaedaira junior high school.
市立宮前平中学校まで360m 学業でも部活動でも全国的なレベルでの活躍が目立つ文武両道の中学校として知られています。
Station駅  Until miyazakidai station 1200m Denentoshi Tokyu "Miyazakidai" the city directly from the station, You can approach smoothly to where to go.
宮崎台駅まで1200m 東急田園都市線「宮崎台」駅から都心直結、どこへ行くにもスムーズにアプローチできます。
Library図書館  There is also a chair and table 550m children's size to Miyamae Library, You can also read the book on the spot. There is also a cloth of the picture book to play touch, It is popular with small child.
宮前図書館まで550m 子どもサイズの椅子とテーブルもあり、その場で絵本を読むこともできます。触って遊べる布の絵本もあり、小さい子に人気です。
Government office役所  When I think of the 630m day-to-day life to Kawasaki City Miyamae Ward Office, It is also an important element that administrative, such as city hall has been enhanced within walking distance.
川崎市宮前区役所まで630m 日々の生活を考えた時、市役所などの行政が徒歩圏に充実していることも大切な要素です。
 Floor plan
間取り図
Park公園  Rich in lush green trees as forest bathing can enjoy Miyazaki fourth natural beauty overflowing park that has been made using the slope of the 20m land to the park.
宮崎第四公園まで20m 土地の傾斜を利用して作られた自然美あふれる公園で森林浴が楽しめるほどの緑豊かな木々が豊富。
Primary school小学校  Private Fujimidai elementary school is often a child with 670m living overseas experience to elementary school.
私立富士見台小学校まで670m 海外在住経験のある子が多い小学校。
Hospital病院  In one minute than 70m local to Miyazakidai Medical Plaza, There are Miyazakidai Medical Plaza, It is encouraging facilities to child-rearing households.
宮崎台メディカルプラザまで70m 現地より1分には、宮崎台メディカルプラザがあり、子育て世帯には心強い施設です。
Local guide map現地案内図  Quiet and empty wide living environment birth to the first kind low-rise exclusive residential area of charm!
閑静で空の広い住環境が魅力の第一種低層住居専用地域に誕生!
Location
|